REASON FOR THE BUILDING
Lauba, an example of the total architectural reconstruction of an abandoned industrial facility into premises for public and private programmes, is unique in Croatia due to the amalgam of functions of this office and exhibition space. Succinctly defined as a Building for People and Art, this black and mysterious building in Zagreb’s Črnomerec district won the Bernardo Bernardi Prize of the Association of Croatian Architects for the most successful accomplishment in the field of interior design in 2011.
Its unusual name probably originates from the German word Laub, denoting ‘leaves’. It is also the children’s name for the distinctive round tree alley in Vrbovec, where Tomislav Kličko, the collection’s owner, used to play and have adventures as a boy. To climb trees, jumping from one crown to another in the circle, not touching the ground, and thus conquering the entire Lauba - that was a triumph of epic proportions.
According to Morana Vlahović, the architect behind the new appearance of Lauba, the term play was a leitmotif of the project from the very start. Kličko’s initial drawing of a circle made of trees, was the key to enter the project, the reason for the building.
ARCHEOLOGY OF THE SITE
It may be worthwhile gradually peeling off the forensic layers of Lauba, the construction originally erected as a menege in the Archduke Franz Ferdinand cavalry barracks. It was designed by the then leading Zagreb construction company Eisner & Ehrlich in 1910. After only ten years the complex lost its military function and was turned into a cotton industry plant. Over time this factory grew into an industrial complex with over a thousand workers – Zagreb Combined Textile Industries (Tekstilni Kombinat Zagreb, TKZ). Nevertheless, as production gradually ceased and relocated, most of the industrial buildings were also vacated and removed. The architecturally valuable manege remained under the protection of the Directorate for Cultural Heritage Protection (Gradski zavod za zaštitu spomenika kulture i prirode) and served as the factory’s warehouse.
In January 2007, the collection and company Filip Trade announced an invitation for an architectural competition for the project of adapting the former TKZ warehouse into a gallery and business premises. Among famous Croatian architects participating, the competition was won by AGP Dizajn and the authors Alenka Gačić Pojatina, Branka Petković and Ana Krstulović.
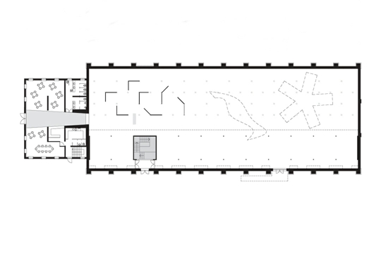
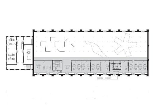
The winning project stood out with its simple and highly functional concept of the most important requirement – a high-quality cohabitation of business and artistic operations. The solution consisted of an interpolated, elongated office cuboid, raised on pillars, stretching along the entire southern side of the building. The 60 x 22 m floor plan area, with a maximum height of 12 m, houses the eight-metre-wide cuboid without compromising the basilican proportions of the interior.
During the reconstruction, the authors and conservators referred to the initial material state of the Austro-Hungarian cavalry barracks. All protected elements were returned to their original state: the architectural sculpture on the exterior, window formats, window bars, the interior’s uniqueness and the roof construction. It is interesting that the building today, a hundred years after its construction, stands in accordance with the original plans for the first time, since the architectural sculpture was never realized as planned. In fact, the old menege has finally revealed its true face.
After changes in business relations in studio AGP Dizajn, which finished the reconstruction of the building, architect Morana Vlahović took over the interior design, the system of exhibition panels and the artistic transformation of the façade.
FROZEN CONSTRUCTION SITE
According to Morana Vlahović, the purpose of the project was to preserve the existing bountiful layers and to expose them to visitors. The concept included, besides the exhibition, the layered display of the building. The interior was realized with minimum funding. The idea of a frozen, conserved construction site was executed by frequent and conscious cessations of construction operations, at some points also by the unavoidable, hygienic phases of artisanal activities. The interior walls of the main exhibition hall were stripped to the brick, treated solely with an impregnation that does not change their original appearance. Thus it is possible to read every phase of the building’s life. Many of the designer’s interior solutions were inspired by the construction site. For example, the illumination of the exhibition hall was devised during initial visits to the site – while construction machinery was digging out the floor inside the hall, the light came from a black construction spotlight. This scene led the architect to illuminate the entire exhibition space with such spotlights so that they landed on the ceiling grid like black bugs.
As a counterpoint to the principally low-tech approach and aesthetics, the interpolated office cuboid functions as a contemporary addition with high-tech overtones. Formed as an enigmatic parasitic body, covered with black, reflecting glass, it hides the offices. On the other side of this black mirror, the linearly arranged offices are exceptionally suitable for work and occupation, they are multi-side oriented and interconnected.
The main staircase leading to the office floor is one more example of the designer’s play of simulating the climb through the Lauba’s tree crowns. Despite the initial expressive impression of the staircase’s railing, this is not pure formalism. The architect used excess materials from the construction of the glass and plate steel banister on the inner galleries, so-called junk, for the railing on the main staircase. Lamellas made of glass, steel and wood, 15 cm wide and of various length, are arranged in 3D, following the proscribed vertical and horizontal intervals. The load-bearing vertical frame was, on the other hand, inspired by typical bearers for the protective fence such as that used on this staircase during construction.
The memory of the stables is visible in the use of uncommon, almost anachronous materials, such as the wooden floor that recalls sand and hay by its colour and smell. The choice of a delicate, warm floor does in a way render the artistic production on site somewhat more difficult, even the manipulation of the exhibits, but is an important and constant reminder that this is a different, special, even private and intimate space for art, unlike the prevailing anaemic white cube galleries. Lauba does not have white unwritten walls.
It is important to emphasize for the entire project that, unlike many cosmetic reconstructions in the world where large sums are invested in aging the object so that new materials acquire a false patina, all the materials here were used in their authentic forms – what is old, is old, what is new, is new and will age naturally.
The building attained its final exterior appearance of a black monolith due to the owner’s venture to request a special nuance of black for the façade. In agreement with the conservators, the black façade was the only requested concession, so that the building can relate to contemporary contents, and Morana Vlahović added the specific glossy façade paint – the finishing acrylic plaster with a metallic paint layer. The black shine is modern, even timeless, simultaneously respecting and negating the profiled façade with pilasters, creating an effect of estrangement equally on the building’s very surface, its plasticity and a kind of erasure within the urban space.
EXHIBITION MACHINE
After the first phase of reconstruction the author did not wish to interpolate a new static construction for exhibiting the Collection within the original spacious interior. Considering that the building does not provide space for storing artworks and an intervention below ground level was not permitted for the protected monument, the Collection’s storage functions within the exhibition space itself.
This solution was designed by Morana Vlahović through a system of aluminium montage panels that turn the building into an exhibition machine concept close to modernism. In this manner, the architect restored the need for a 150-metre-long exhibition wall for two-dimensional artworks from the Collection.
The exhibition panels in their zero position cover the hall’s entire northern wall and their two-level, electrically driven hanging storage is visible. This montage panel system was designed to enable a certain grading of presenting the multi-layered building. Each panel taken off the northern wall automatically becomes part of the spatial constellations on the wooden floor where the exhibition is presented. The aluminium panel system was designed to facilitate numerous variations of exhibition formations, from an open space concept to a dense labyrinth.
According to the architect, Lauba transforms its interior like pleomorphic organisms capable of shape-shifting during their life spans. With this concept which juxtaposes the variable dynamic intervention and the conserved layers of previous construction, the architect creates space of various identities, constantly exploring Lauba’s vitality.
The difference between temporary exhibitions and the collection, defined as a ‘non-permanent exhibition’ by the Filip Trade Collection’s curator, Vanja Žanko, no longer exists. They are arranged side-by-side, mutually feeding each other. Simultaneously, there are varied parallel events and educative projects. Such an ambitious programme transforms Lauba into a genuine meeting place for the audience, a place to experience, learn, have fun and interact socially.
Lauba, however, does not bear the obligation of standard, museum visitor education and articulation of the historical art narrative as public museums do. The Collection primarily reflects the individual taste of its private owner who has the right to his own contemporary image and to use the assistance of professionals to shape this image and display it in public. Each presentation and art mediation in Lauba is subject to the direct visual effect of the exhibited artwork. And indeed, all exhibited works from the Collection are intensely aesthetically attractive, although sometimes leaning towards borderline aesthetics or even shocking repulsion.
Lauba’s distancing from conventional conceptions of private contemporary art collections, museums or galleries may, therefore, be regarded as one of the alternatives to the (co)existence of modern art exhibition spaces, and not only as a counterpoint to corresponding public institutions but as a slice of contemporariness which opens new options for future production paradigms and art presentations.