The interior of Istria has become more and more popular as a countryside holiday destination, whether houses for rent or privately owned weekend houses. A large number of these holiday homes are situated in a specific environment on the edges of small Istrian towns whose harmonious features present a continuation of the remarkable and multi-layered urban and building history of Istria. Nevertheless, we have seen only a few at least decent architectural ideas in this genre of building, while innovatively conceived recycling of existing buildings and learning from the context are rare phenomena. Instead of contemporary ideas, a specific iconography has developed, that of stancija (homesteads), and other holiday houses with greyish or brown stone façades which used to be plastered in the past, but today after refurbishment reveal smaller or irregular wall structures with no representative ambition. Almost paradoxical, this search for picturesqueness and surrogate ‘historicalness’ leads to the fact that town or residential houses are visually treated as traditional farm buildings. The interiors of these houses are, on the contrary, designed as ambiences in which contemporary and ‘traditional’ elements are combined in a rather controlled manner, which explains their popularity in various newspapers and interior design magazines. This demand for ‘contextuality’, but also contemporary comfort, has quickly become so established that it is already difficult to offer any alternative. Nevertheless, what new values could be offered by new buildings or reconstructions of holiday houses in the first place?

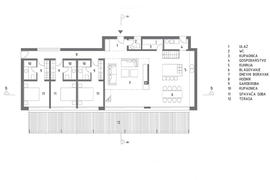
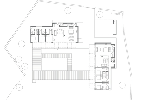
Against the background of these circumstances and questions, the architectural team Arhitektri met when designing a small countryside complex near the hamlet of Bratovići, in the vicinity of the somewhat larger settlement of Majkusi in central Istria. The estate is to some extent separated from Bratovići, and is surrounded by meadows and groves, criss-crossed with dry stone walls. The authors conceived the project by relying on a formally specific dispositional solution which resulted from the fact that the estate was commissioned by two families who decided to build a shared countryside space. Two identical, low, and simple houses of archetypal cross section are placed at right angles to each other, and a smallish outbuilding is built nearby. Since the site is mainly flat, there were no topographic conditions on which to develop an architectural theme. The geometrically strict arrangement of the two elongated prisms accentuated the role of the in-between space which is perceived as a clearly defined and integral part of the project that extends further into the landscape. The houses turn their ‘backs’ to the access road and by means of large glazed walls open up entirely towards a shared courtyard with swimming pool which is the place for ‘socializing’ and countryside life together. Let us remind ourselves that a group of two houses with a courtyard represents a traditional typology of rural assemblies in Istria. In the traditional version one building is residential and the other is an outbuilding, and they are placed closer together. In this case the distance between the buildings was carefully measured so that a satisfactory level of intimacy for each house is realized and the courtyard still keeps its spatial readability in the process.
Spacious porches stretch along the houses with wooden decks forming an inhabitable zone of transition between the courtyard and the interior. The living rooms, porches, and courtyard are individual segments of the space which are used as one entirety in the everyday scenarios of usage. The hosts gladly invite guests so that socializing, partying and relaxation fill all the spaces, and the courtyard becomes a kind of stage for scenes of countryside life. The formal positioning of identical buildings and the regular front division do not seem rigid, but simply well articulated. The harmonious horizontal proportions, low height of the buildings, and homogeneity of the façade and roof materials in thinly cut Istrian stone, all correspond well with both the ‘marginal’ context and countryside contents and, at the same time, leave the impression of being specific and ‘ordinary’. The stone façades are the result of very precise, painstaking, and meticulous workmanship and even a new vein of stone was found in the local quarry for the needs of the stone masonry.

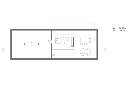
The interiors are, on the other hand, designed in contemporary and ‘urban’ style, and the living rooms with the kitchen and gallery space are especially attractive. Barely visible wooden beams and roof boards suggest a certain ‘rusticity’. The low attics are also inhabitable and each building also has a small basement.
Such a specific project is also successful thanks to the very close collaboration and mutual understanding between the architects and clients. The architects responded to the programmatic demands very directly, reducing the number of formative and design themes to the minimum. Both the form and material of the buildings refer to the local context, but a deviation from traditional construction is made in the texture, proportions and geometrically strict articulation of the volumes. Here, the project also offers everything that is in general promoted as the quality of countryside houses in the media today: a regional atmosphere coupled with cultivated ‘neo-modernist’ aesthetics. The authentic cultural contribution of the project is visible in the coordination of formal ambitions, communication with the context, and decent relation to the environment and the real achievement is quality of life and specific scenarios of communal life realized in this, totally basic, but very comfortable ambience.