The feeling of stopping the car in the middle of the desert is, in a way, liberating. There is a moment of silence, and when we step out of the vehicle, we face the emptiness and an immovable monumental horizon. We feel as if we have lost the centre; the colours of the sky become important. Baudrillard wrote about the desert in America. There are no deserts in Slovenia; the cultural landscape of the province is of a different character than the vast landscape of the continent across the Atlantic. It has a different meaning.
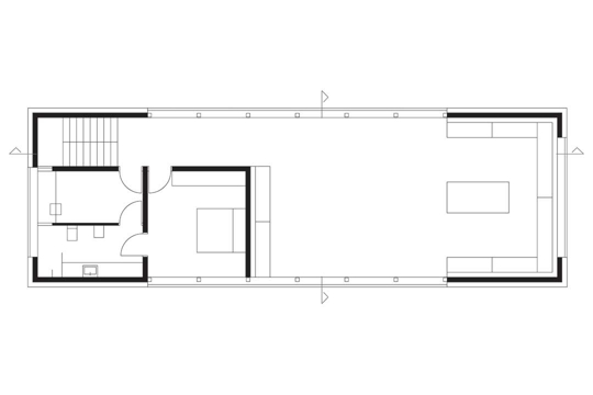
In Dolenjska, at the far end of a panoramic hill a house designed by Boštjan, Aleš and Peter Gabrijelčič has opened its doors and windows. It has been placed perpendicularly to the hill; it closes the village area and, with the residential facility and a wooden pavilion, forms a spacious inner grass yard of the existing estate. The maple interior carved from the black envelope creates a void which opens the space to the view over the forest hills, and the hilly landscape deep into the perspective.
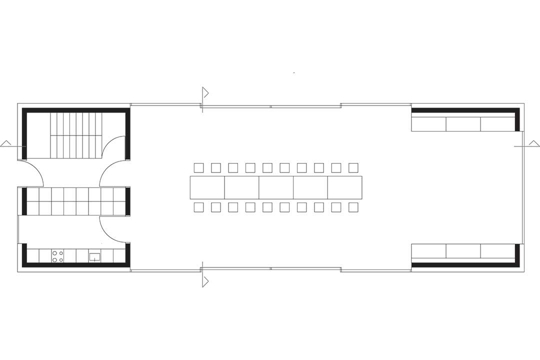
The three-storey structure is not an business facility, a family house, or a holiday retreat. It reminds us of a contemporary protocol facility, designed for meetings of business partners, and as an occasional place of rest. In such situations, we do not need much at first sight. We only need a building intelligently placed in the landscape, and specifically framed views that connect it with that landscape. The void cannot be based on the bare function. The rituals which will occupy the area are yet to be formed. In the meantime, the space for the rituals needs to be opened, one that will appear monumental and local at the same time. The dilemma is thus all the more important: how to reduce the plan to its very core, so that it can offer opportunities for a modern ritual, and connect it with its surroundings.
At the top of the hill thus emerged an enigmatic black volume. Considering that the landscape is not an empty sheet of paper, the meaning of the volume in our memory is permeated with traces of an architectural tradition.
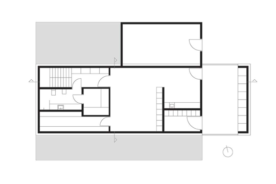
In the Slovenian landscape nothing is more monumental than kozolec (the threshing barn). Its proportions and the ambience below the roof are typical of this area. It is eternal, even Ravnikar used to speak about it in this way, says one of the authors, Peter Gabrijelčič. He continues: With its size, appearance, colour and the logic of the organization of the interior the facility relates to the tradition of the kozolec toplar (a double threshing barn) with stone corner pillars. Four strong corner pillars were placed on the corners of the new facility. A 12-m long bridge structure stretches between the corners thus enabling the formation of large unified areas on the ground level and in the attic. The structure is made of reinforced concrete, while the roof is made of steel.

The ambitious concept allows for the ground area to be widely opened by a slide door. There is no flat horizon; the house itself sets the horizon. It stands at its position resolutely; at first sight even self-sufficiently. But soon one notices subtly shaped elements which articulate the views. With this project the architectural idea relates a new function, and a sophisticated disguise to the tradition. Kozolec with the new skin and bones stands differently, facilitates a different feeling of the landscape, and a different movement through it. Where the roof and the facade meet, there is no eave. We perceive both elements as skin designed to visually connect the photovoltaic cells to the wall. Since the main entrance and the exit to the terrace need protection, the black envelope is lifted; it protects the visitor and frames the view.
External walls and the roof thus seem unified, and the relation between the empty and the full, between the space which it opens and closes or hides, proves to be significant. The challenge is how to design both in a meaningful whole. The area on the first floor is intended for specific business activities during the summer and for socializing around the pool table in the winter period. There is also the fitness area. One can access the cellar directly from the agricultural land. It is used mostly for pouring and storing honey, and for pressing and storing fruit. There is also a bathroom with a sauna and a heat pump to regulate the temperature in the house.
The central part of the house enables perception of something new; it is a significant part of the understanding that at a specific location we can shape the experience of space in our own way. It reveals our perception and understanding of our own time. If we wish to be consistent when defining the meaning of a facility, we cannot avoid the question: How do we perceive the space we inhabit today?

The landscape and with it the view of the landscape has long since become a part of the media apparatus, which offers numerous possibilities of its (re)shaping. The interpretation of an individual facility depends on its purpose, which is connected with this apparatus and relates to it. We cannot avoid the trap; we can only wonder what an honest perception of spending the, so-called, free time, and the space where these activities are conducted, might look like. Literal repetition of traditional patterns would, naturally, be pointless. The important question is how to relieve the shape, empty it, and let the life inside its walls be formed. Herein lays the achievement and the charm of the black house – the feeling of purification, of emptiness, which gives a new outlook to that which already exists.
It is easy to merely fill an empty space, and make it attractive, or even meaningful. However, in the process the project loses its greatest potential – a possibility of being transformed into something different. It is a specific interpretation of the already existent which will, without a doubt, be changed and space will not be liberated to accomodate new changes anymore. The empty spaces are crucial, irrespective of whether they are in the vast desert, or on the hills of Dolenjska.
Despite everything, a structure can still be shaped in a thousand and one way. The architectural idea of the project relates to the archetypal form, and to the technology which on the one hand enables the space to be opened through a purified plan, and, on the other, speaks of the energy self-sufficiency and ecological awareness: dark photovoltaic cells on the roof allow the meaningful incorporation of the object into the visual appearance of the landscape; it uses renewable energy and stores the connection with the rituals of the environment in the basement. As a result of a well-thought-out decision, the inner and the outer membrane hide its capillaries, which allow the functioning of a demanding infrastructure, and the unhindered view of the landscape.
The intimacy of a moment in a vast desert can be compared to an evening on an open terrace which does not offer shelter. America has come closer to Europe in numerous meanings of the word. Speaking of the house whose purpose is to draw the analogy with the semantic outline of the landscape, we can make a comparison with the variability of different landscape contexts and their meaning in everyday life. The contemplation about the landscape is one step away from the idea of the global village, and the question of construction technology is but one step away from the realization that it is technology that connects the global village. Two lines, one leading to the other. Fortunately, here we can speak of spaces offering new perspectives. The house cannot move like a car which speeds through the desert. It is fixed in space where it will be standing for a long time to come. With its views, the colours of the sky also become important, reminding us that we share the same space, although with a time shift, and in different contexts of the landscape.