Irritating and thrilling at the same time, the Fond Régional d’Art Contemporain du Nord-Pas de Calais (Regional Contemporary Art Fund of Nord-Pas-de-Calais) in Dunkirk, France is an extraordinary art complex at the service of the local community. An unusual combination of a heavy industrial structure and an airy hall, this project is an unexpected result of the interweaving of the two opposing evolutions—the collapse of an industry sector and the innovative cultural policies. Following a progressive decrease in activity, the shipyards—the pride of the port of Dunkirk—closed their doors in 1988 for good. The city was left with a 150-hectare plot of land of the former shipbuilding yards. After the gradual removal of the workshops and hangars, to make room for a mediocre residential community, what eventually remained from the former shipyard complex, was merely the historic Prefabrication Workshop No. 2 (ap2), once used for assembling the ships. Nicknamed the cathedral because of its massive size (75m in length, 25m in width, and 30m in height), this impressive concrete structure enabled the fabrication of entire portions of ships before their final assembly, providing shelter from bad weather. The city wished to preserve that last witness of their former industrial glory. However, no one knew for what purpose the hall ap2 could be used, and, for a long time, it stood as an isolated giant, seemingly lost at the end of the port, and protected from the impact of the sea from the north by a seawall. Until another evolution, this time a cultural one—the astonishing development of the Fracs (the French abbreviation for the Regional Contemporary Art Funds)—found a new function for it, at the same time freeing the city officials from their doubts.

The creation of the Fracs in the early 1980s, under the leadership of the former Minister of Culture Jack Lang, was part of an extensive decentralization movement that marked the arrival of French President Francois Mitterrand to power. The Fracs, one for each region, have had, and still have, a mission to acquire the works of contemporary art, and to circulate them (in the form of loans and temporary exhibitions) in order to bring contemporary art closer to a wider audience. Carried out with certain perseverance, this original acquisition policy soon generated positive results. Thirty years later, some of the collections became so extensive that the regions responsible for them were forced to find suitable places to enable their proper storage and protection. The Frac Nord-Pas-de-Calais, in particular, was faced with such a situation, having gathered a collection of nearly 1,500 works of art and design objects, all united around an important center consisting of art works belonging to the Arte Povera movement, as well as Minimalism and Conceptualism.
Housing the collection in the cathedral seemed an alternative that obviously suited everyone: the Frac’s managers, who thus ensured a 5,000 sqm space required for storage and exhibitions, the regional deputies, and the mayor, who finally found a worthy purpose, a cultural one, for that site of memory. Everything fitted together. Once again, the transfer of the collection from the Frac Nord-Pas-de-Calais into the halle ap2 demonstrated the architects’ skill at converting rough industrial structures into elegant palaces of culture, under whose refined decorum faded either the emotional, or social charge of such locations. The last in this series was the transformation of the old Löwenbraü brewery in Zurich by Gigon / Guyer Architects.
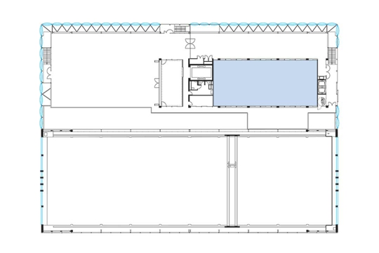
But they were not counting with the presence of Anne Lacaton and Jean-Philippe Vassal, the two architects among the five shortlisted candidates. For them, as for their colleagues, the encounter with the halle ap2—with its huge volume, its strong structure, and its monumental entryway—was a sort of shocking. They started to imagine possible solutions to accommodate in it the content required. But as their research progressed, it became all the more evident that, ultimately, any intervention in the halle would irrevocably destroy the tremendous beauty of this space, as well as the memory of this location. Hence their astonishing suggestion: leave the halle ap2 intact, and attach to it a symmetrical hall of the same geometry and identical dimension on the side facing the sea so that, even with the same budget, it can easily accommodate the program required.
The jury, enchanted, voted for their design. But at the same time, they remained cautious, leaving open the possibility for the selection of the runner-up design if the architects failed to fulfill their promise. But the promise would indeed be fulfilled!
The architects Anne Lacaton and Jean-Philippe Vassal are well-known for their obsession of providing more space than required by the program, yet finding a way to stay within the limits of approved budgets. Not for the sake of acknowledgement, but because, for the user, more space always means more comfort, freedom, and flexibility. Their Frac Dunkirk design was a new and truly radical development of that philosophy, having been previously tested in a family home (Bordeaux), and applied to social housing (Mulhouse, Saint-Nazaire), university buildings (Grenoble, Bordeaux), the Ecole d’architecture (Nantes), and the renovation of a residential tower (Paris).
Costing less than initially budgeted—€12.2 million net of tax compared to €18 million net of tax—the Frac Dunkirk is now a space that is two times larger than originally required: 6,000 sqm of usable floor space (instead of 5,300 sqm anticipated by the program), to which 5,000 sqm of space was added: the halle ap2, the highest level of the new hall, and several unheated, but usable areas. In order to complete their project, the architects developed a rigorous construction protocol, adhering to it at all times. Their low-cost, low-tech strategy included the use of only a limited number of industrial-type materials.
The new hall is by no means luxurious: rough concrete of minimal final treatment, and technical aids intentionally left visible. The prefabricated concrete structure, built next to the old hall, defines the free, flexible levels tailored to content needs. Each level comprises a storage space in the back, and an exhibition space in the front. The light exterior envelope is constructed of Lexan panels, and complemented with thermoplastic panels in a steel frame in the upper part, which the architects have used for the first time. As in all Lacaton and Vassal’s designs, two types of space dominate the interiors of the Frac of Nord-Pas-de-Calais. On one side, the premises are perfectly insulated either by glazing (entrance area, exhibition spaces, etc.) or by sandwich panels used for unheated spaces. The premises on the other side are protected only by the exterior envelope: vertical communications, intermediate galleries between the two halls and the façade, and, the large upper volume, of course. The use of thermoplastic panels in steel frame structures on the roof slopes and the façade provides better insulation than that obtained simply by Lexan paneling. As in a greenhouse, protection from the sun is provided by horizontal sliding screens.
The hall ap2 remained untouched by interventions. There was only a small-scale investment, which included refurbishing the space for events with up to 2,000 visitors, and installing a footbridge.
The communication between the two halls is false. At the level R+1, they are separated by a covered indoor street which is planned to extend to a passage providing access to the high seawall surrounding the location. By incorporating into their design this link, imposed upon them by the general development plan of the site, the architects added a cultural experience to the seafront promenade: when passing by the Frac, strollers and cyclists (!) will have a view of the hall ap2 on one side, and a view of the exhibition on the other.
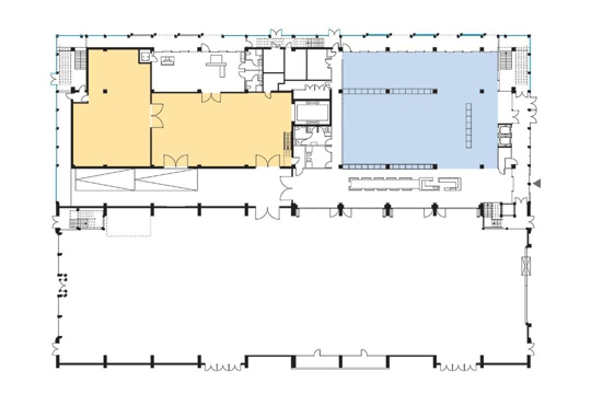
The first contact with the Frac of Nord-Pas-de-Calais is confusing. The two halls seem more impressive in their size than in their construction, one of them of mass concrete, the other wrapped in a light, transparent envelope. If it was not for the Sibylline sentence and red neon letters on the front of one of the halls, we would not believe that we are standing in front of an important art complex. We even have to look for the entry, which merges with the Lexan panels of the façade.
Looking at the two elevators located at the front, a reception desk, a bar squeezed between the hall ap2 and the exhibition hall, the least we can say is that the entrance area lacks space.
Let us add that the architectural promenade between the areas, which are open to the public, is rather unusual. To pass from one hall to another, it is necessary to change the level, and to use the elevator, or the stairs, located along the front, in the uninsulated interstitial space.

But such initial frustrations fade away if we accept the architects’ stance. In this, as in all their designs, it is not about building a beautiful structure, it is about designing the most useful tool, even the most generous one, we might add, that would serve the community. Above all, the Frac is an extraordinary tool of culture. Situated to the north, the exhibition halls have beautiful natural daylight. The connection between the two halls makes the Frac an equally excellent facility for the storage of art works, as for their extensive manipulation, required by systematic loan policies, and constant changes of temporary exhibitions.
The hall ap2 and the footbridge allow the accommodation of large format works. The connection between the two halls, directly on the ground floor and at the fourth level, opens up the possibility of holding major exhibitions of international character. In this regard, the Frac’s location is also very important as the North of France, Belgium and the Netherlands are the regions with major collectors of contemporary art. It remains only to find an animator who would be able to develop the programs, and take advantage of multiple opportunities provided by the duality of the halls. And also, to tame that giant of raw beauty, which the halle ap2 indeed is. It obviously was not the case at the inaugural exhibition. Several works presented gave the impression of objects forgotten in the corner of the hall. It is true that this space can also function separately, and host spectacles (a festival of film, theater...), or any other type of events.
Trying to house the program in the halle ap2, the architects were well aware of the following requirement: in order to provide visitors with a view of the sea, it was necessary to allow their access to the highest parts of the building. On the lower floors, the landscape is, in fact, hidden behind the seawall. Also, instead of the classical horizontal sequencing of the halls, the program is developed vertically, with single elements located at each level. Protected to the south by the old hall, the exhibition spaces take in the natural daylight from the north.
Situated along the façade, the vertical communication areas form a thermal buffer between the outer polycarbonate layer of the building, and the exhibition spaces. At the highest level, there is a belvedere—600 sqm of accessible space situated outside of the program of the complex, and protected by a greenhouse screened with thermoplastic materials. On one side, the belvedere offers panoramic views of the shoreline and the sea to the north, on the other, not least impressive, the views of the areas of the old hall. The impressive, functional complex of the Frac of Nord-Pas-du-Calais is also a significant response to the location, the landscape, this special oceanic climate of northern seas; full of intelligence and sensitivity.
Slowly climbing to the top of the building, the visitor not only discovers the sea of the north and its long beaches, but also its particular and ever-changing light. In favorable weather, the edges of the façade let the sea air enter the building through the buffer areas. The Frac reveals the subtlety of the work of the architects Lacaton & Vassal, generating simple emotions with the help of such banal materials as Lexan or thermoplastic panels. At night, their architecture reveals new heights of its evocative power: the Frac transforms into a glowing lantern at the outskirts of the city.