A Threshold Does Not Have To Be a Boundary

architects ARTEC Architekten - Bettina Götz, Richard Manahl
project Apartment building Tokiostrasse, Vienna, Austria
written by Vera Grimmer

PDF Download: Click here.
 

Since the end of the 19th century, housing has become one of the most important issues insociety, and residential construction a tool for social changes. For architects of the heroic epoch of modernism it was the residential house, more precisely the family house, that represented a laboratory for the investigation of new architectural methods and in the process these experiences were also transferred to collective housing construction. Committed contemporary housing construction attempts to adapt to i.e. to satisfy diverse new lifestyles, which refers to the opportunity to work as well as to form human communities. Such a task is very complex since a high quality residential complex should generate both and the sense of community of its residents, and all this further­more needs to be placed within a possible economic frame. However, it is residential architecture that will be an indicator of the social sensibility and humane engagement of its authors, beyond all sensationalism and self-representation.

 

ARTEC Architects, Bettina Götz and Richard Manahl, have been dealing with housing issues vigorously since the very beginning of their combined work. In their oeuvre we can find the radically individualized ‘Space Zita Kern’ (Oris, issue 1), as well as a high density residential block in Vienna’s Laxen­burgerstrasse (Oris, issue 12). They have developed and per­fected the methods and strategy used in Laxenburgerstrasse in their new residential project Tokiostrasse in an ‘outer’ Vienna district across the Danube – an area that possesses potential for extension of the city.

 

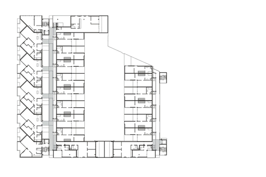
These methods refer to very significant parameters that will determine quality of living, but also the quality of the environment. On a plot surrounded with streets on three sides and only to the east connected to another new peripheral construction, the archi­tects composed and structured individual tracts in such a way that an autonomous neighbourhood came into being that, nevertheless, also materializes a very subtle interaction with public space. Each and every detail supports the whole, but is also dependent on it. In this manner, a city fabric appears with which the architects want to link the incompatible: dense city construction and individual family living. This is then an individualization of collective residence, but certainly many other things as well.

 

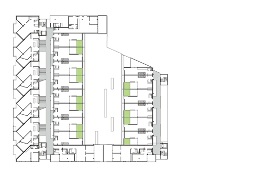
Gradations of space from public, via semi-public to private are exemplarily manifested in the western tract, which is oriented towards Tokiostrasse, a local road with a broad central green belt. The transparent entrance zone with a membrane made of stretched tin (a texture that at the same time connects and separates) is recessed so that the width of the arcade allows public gatherings in its sheltered space – for example, self-organized flea markets or small neighbourhood parties, common events in Vienna. As filter between the public space of the street and the intimate zone of the flats, a structure of two-floor loggias, has been installed: a staggered formation in a horizontal and vertical sense. The loggias leave an impression of a gigantic honeycomb with, in addition, a ‘spider web,’ made of metal spatial ornamentation, extending all over its surface. The very expressive facade structure which recalls primordial organic habitats is a surprising novelty within the oeuvre of ARTEC Architects. As a reference for the two-floor loggias that compensate for the rather small height of the flats, the architects mention the residential building ‘Nid d’abeille’ (honeycomb) in Casablanca by architects Candilis and Woods from 1952.

 

Only the flats oriented towards Tokiostrasse to some extent match the typology of a multi-apartment building, while all the others represent models of individual housing surrounded by ve­getation. This individualization within concentrated (sub)urban construction is achieved by means of vertical stacking of four different types: loft with private gardens on the ground floor, duplex with atrium, semi-detached house and ‘garden pavilion’ on the top of the building. No matter whether the flats are situated on the level of the courtyard or on the fifth floor, a green surface is included and it is possible to plant this surface individually. All the passages to the exterior spaces of loggias or terraces are on the same level as the flats. Further­more, spatial luxury with freely standing staircases and galleries, glazed surfaces from floor to ceiling, and direct illumination of secondary rooms –all these qualities of residing in a family house are found in this apartment building, which is a subsidised housing project.

 

Thanks to the vigorous cooperation of the architects and a committed structural engineer (A. Harrer), the very economically dimensioned construction manages without lintels, visible beams and similar items. Here, there are mostly two-floor wall supports with a span of 6.30 metres. Since there are strict limitations for flat area in subsidized housing constructions, the architects looked hard for every possibility of achieving generously proportioned space, which they see as the basis for dignified living. In this sense, preciseness was especially necessary with the types of ‘garden pavilions’ on the top of the building where a sensible usable comfort has still been achieved in the three-metres-wide space. In fact, these ‘pavilions’ are indicators of the working method of the architects. Their staggered nature and conical narrowing provide a certain quality of play to an otherwise almost harsh complex, and since each decision here has at least two meanings, they enable even more illumination and sunlight in the interior of the block. The need for optimal insolation and illumination of relatively deep outlines, as well as for protection of privacy, is supported by plastic modelling of the constructional corpus as well as by positioning of the openings, in fact glazed surfaces.

 

‘Residing as social and cultural, partly private, partly public practice’ (according to Werner Sewing) is a large issue related to this housing neighbourhood and it is manifested primarily in commu­ni­cational zones. Vertically set interior streets, staggered bridges, semi-transparent platforms – all these should enable possibilities for meeting and communication in a well illu­minated space by means of roof glazing.Behind the creation of these unique Piranesian spaces (without the Piranesian gloominess) is the architects’ desire to generate a communal feeling. In the time of the visit to the building, it seemed that this desire had a chance to be realized: young mothers in conversation, children storing their toys and bicycles in front of their flats’ doors, pots with rosemary and basil on sufficiently broad access bridges, but to certain extent benches as well, similar to those which we find in the streets on islands or in front of the houses in Burgenland villages. The space for the joint activities of the residents was alone still untouched in terms of the aesthetics of its unique dark orange colour. The colour – sunny yellow for communication spaces and bright red for staircases – is an efficient means for the creation of atmosphere for free, which is why ARTEC Architects use it frequently.

 

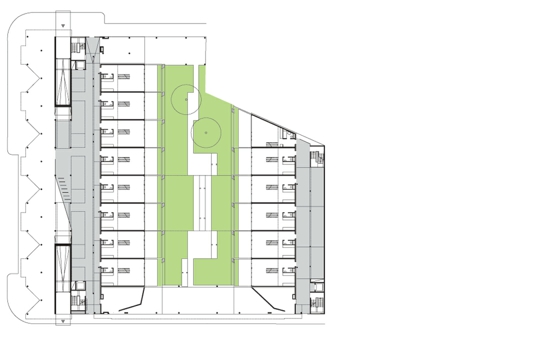
The central communication space, the interior courtyard, which is as wide as an average city street in Vienna, provides a sufficient distance between the eastern and western tract, while the southern and northern tracts with only two floors enable the permeability of the entire complex to the public space with its free ground floor. Since the courtyard is no more than a garage roof with greenery, the architects here turned disadvantage into advantage as well. In other words, airshafts for ventilation of the garage serve as reduced garden mobiles and determine the composition of the entire garden.

 

In Vienna’s social housing construction (for example, in residential buildings by architect H. Glück from the 1970s and 1980s), a proved generator of communication – a roof swimming pool, is here additionally supplemented with a spacious meadow which has a view over the city in the distance and vineyard hills of the Vienna Woods.

 

Many other themes could be elaborated in relation to the Tokiostrasse building – about truthfulness and directness of treatment of materials and construction, about the rigidity of details reduced to the essential, about the unwillingness to conceal or embellish, about the incredible integration of opposites without cuts and injuries. Nevertheless, in the end it seems important to point out the precise work of the architects on the realization of flats which will most probably provide their users with the opportunity to enjoy living here and interrelating with the people around them.