To See and Be Seen

architects Lyndon Neri, Rossana Hu
project Waterhouse Hotel, Shangai, China
written by Aric Chen

PDF Download: Click here.
 

There’s a kind of poetic, circular irony to the Waterhouse, the 19-room boutique hotel designed by Neri&HuDesign and Research Office (nhdro) in Shanghai. Inspired in part by the city’s historic lane houses, or nong tang, the project takes great pains to sensitively adapt aformer industrial building, while the actual nong tang are rapidly disappearing not far away. Perhaps such is the fate of historic districts throughout the world’s older, developing cities: to become mere memories to be ‘quoted’ in new construction. (Adding another twist, the new construction in this case is inserted within a different typology of old construction.) Or maybe it speaks of the perverse logic of our current cosmopolitanism, by which notions of ‘local’ seem to exist mostly for global consumption.

 

Whatever the case may be, NHDRO has created a project that deftly fulfils the contemporary imperatives of a boutique hotel while incorporating a rich sense of layered history.

 

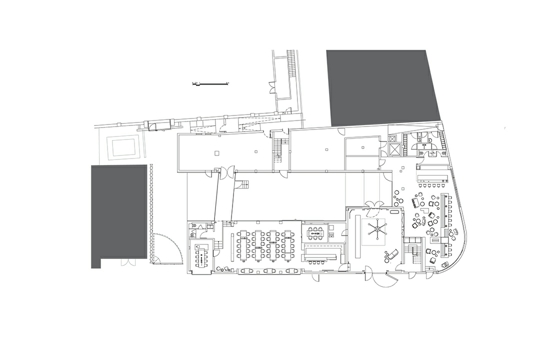
Located in the new Cool Docks development of repurposed warehouse and dock buildings on Shanghai’s South Bund riverfront, the Waterhouse primarily occupies a 1930s former Japanese army headquarters. In determining a new configuration for the gutted three-storey, concrete and masonry structure, NHDRO looked to the nong tang because they ‘define the unique spatial flavour of the city,’ says Lyndon Neri, who serves as principal of the Shanghai-based firm with his wife, Rossana Hu.

 

The nong tang are small gabled houses that date from the early 20th century. While stylistically significant for combining Western and Chinese features, their greater relevance perhaps lies in the densely-packed urban fabric they create, in which public and private spheres blur together in a tangle of peek-a-boo spaces and alleyways. In the case of the Waterhouse, the nong tang were not only a useful nod to the local context, but also a perfect fit for the see-and-be-seen exhibitionism of many boutique hotels. ‘We wanted to mimic the human tendency to be put on show,’ Neri says.

 

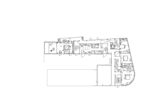
Hints of this appear immediately upon entering the three-storey-high lobby where, above the reception desk, a vertical window looks directly into a guestroom. (And yes, guests have been known to expose themselves naked.) Similarly, two cuts above the restaurant open into other guestrooms above – though they’re too narrow to see anything – while guestroom shutters, mirrored on the inside, expose what’s going on within when opened to an outdoor courtyard. Throughout the hotel, which is in fact three buildings cobbled together, long corridors, ramps and strategic openings create further voyeuristic opportunities. ‘It’s like a vertical nong tang,’ Neri explains.

 

But while paying homage to the nong tang, Neri and Hu also sought to preserve the historic narrative of the site itself. A clear distinction was drawn between the old and new, with the former left intact to the greatest extent possible. Plaster was left crumbling, and old paint-jobs left chipped. Water stains remain. Where floor slabs were removed, their outlines were kept visible. Meanwhile, wood salvaged from the rotting roof now shows up as communal tables in the restaurant, and on the outside surfaces of the mirrored guestroom shutters. ‘We wanted to express a kind of preservation that’s never really been done here,’ says Neri, citing a broader tendency to make everything look brand new.

 

Indeed, there’s an honesty to the designers’ interventions. Clad in Cor-Ten steel, a newly-added fourth floor and roof terrace is clearly that: a new addition. So is a set of reinforcing steel columns and beams. In the guestrooms, with their oak, concrete and glass finishes, built-in cabinetry is reserved for specially-erected walls, thus allowing the existing ones to stay in their deteriorated condition.

 

In the end, NHDRO has created not an assemblage of local clichés, but rather a thoughtful response in which history, and not just guests, are flaunted without apology.