Ugasiti auto usred pustinje oslobađa na neki način. Nastupa trenutak tišine, a kad izađemo oko nas je praznina, nepomičan monumentalni horizont. Osjećaj je to gubitka sredine; boje neba postaju značajne. O pustinji je i Baudrillard pisao u Americi. U Sloveniji nema pustinje; kulturni krajolik provincije ima drugačiji karakter od prostranog pejzaža na kontinentu onkraj Atlantika. Ima drugačije značenje.
U Dolenjskoj, na kraju jedne panoramske uzvisine, svoje je prozore i vrata otvorila kuća čiji su autori Boštjan, Aleš i Peter Gabrijelčič. Postavljena je na brdo pod pravim kutom, zatvara prostor zaseoka te sa stambenim objektom i drvenim paviljonom oblikuje prostrano travnato unutarnje dvorište postojećeg imanja. Iz crne ovojnice izdubljeni javorov interijer stvara prazninu koja otvara prostor pogledu na šumske obronke i krajolik nizova brežuljaka u dubini perspektive.
Trokatni objekt nije gospodarski objekt, obiteljska kuća ili ferijalno utočište. Njegova uloga podsjeća na suvremeni protokolarni objekt, namijenjen sastancima poslovnih partnera i na povremeni prostor za odmor. Na prvi pogled, u takvim slučajevima ne trebamo mnogo. Trebamo tek objekt pametno smješten u krajolik i specifično oblikovane poglede koji ga za krajolik vežu. Praznina se u tom slučaju ne može temeljiti na goloj funkciji. Rituali koji će zaposjesti taj prostor, tek će se zaista formirati. U međuvremenu im treba otvoriti prostor koji će djelovati monumentalno, a istovremeno lokalno. Stoga je to veća dilema, kako tloris ekstrahirati do njegove biti, tako da može ponuditi mogućnosti suvremenom ritualu i vezati ga za prostor.
Dakle, na vrhu brežuljka nastao je enigmatični crni volumen. Budući da krajolik nije prazni list papira, značenje volumena u našem sjećanju prožeto je siluetama arhitektonske tradicije.
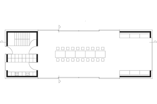
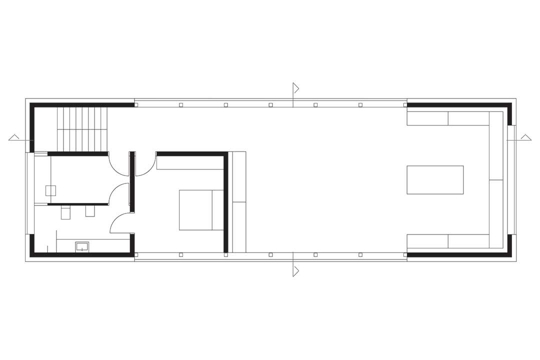
U slovenskom krajoliku ništa nije monumentalnije od kozolca (sjenika). Njegove proporcije i ambijent ispod krova koji uspostavlja, pripadaju ovim prostorima. Vječan je. Tako je već Ravnikar govorio, riječi su jednog od autora, Petera Gabrijelčiča. On nastavlja: Objekt se gabaritima, izgledom, bojom i logikom unutarnje raščlambe veže za tradiciju kozolca toplara (dvostruki sjenik) s ugaonim stupovima od kamena. Na uglovima novog objekta postavljena su četiri jaka ugaona stupa, između kojih je postavljena dvanaest metara dugačka mostovna konstrukcija, što omogućava oblikovanje velikih jedinstvenih prostora u prizemlju i u potkrovlju objekta. Konstrukcija je od armiranog betona, krovište od čelika.

Ambiciozni konstrukcijski koncept omogućava da se prizemni prostor kliznim vratima naširoko otvara. Nema ravnog horizonta, kuća ga sama uspostavlja. Stoji tu beskompromisno; na prvi pogled mogli bismo kazati, samodostatno. Ubrzo zamjećujemo suptilno oblikovane elemente koji artikuliraju vizure. Arhitektonska misao ovim se projektom tradiciji otvorila novom funkcijom i sofisticiranim preoblačenjem. Kozolec s novom kožom i kostima, koji se drugačije postavlja, omogućava drugačije osjećanje krajolika i drugačije kretanje krajolikom. Dodir krova i fasade zbog fotovoltažnih ćelija nije oblikovan preko strehe pa tako percipiramo u smislu kože oba elementa istovremeno. Ali glavni ulaz i izlaz na terasu trebaju zaštitu. Stoga se crna ovojnica podiže te oblikuje zaštitu i tako uokviruje pogled.
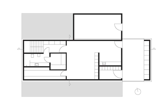
Vanjski zidovi i krov tako djeluju jedinstveno, a za oblikovanje volumena postaje značajnom odredba odnosa između praznog i punog; između prostora koji otvara i prostora koji zatvara, krije. Umjetnost je uhvatiti oba u smislenu cjelinu. Prostor na katu namijenjen je specifičnim gospodarskim djelatnostima u ljetnom razdoblju, a zimi druženju uz biljarski stol i fitnessu. Podrum je dostupan preko gospodarskog puta, neposredno od poljoprivrednog zemljišta i služi točenju i pohrani meda, prešanju i pohrani voća. U podrumu se nalazi toplinska crpka za grijanje i hlađenje objekta te podrumska kupaonica sa saunom.
Središnji dio kuće omogućava razumijevanje nečega novog, značajni je dio saznanja da na točno određenoj lokaciji možemo oblikovati iskustvo prostora na vlastiti način. Govori o tome kako vidimo i shvaćamo vlastito vrijeme pa ako želimo biti dosljedni pri definiciji značenja objekta, ne možemo izbjeći pitanje: kako danas shvaćamo prostor koji naseljavamo?
Krajolik, a s tim i pogled na njega, već je odavno postao dijelom medijskog aparata koji našim predodžbama nudi bezbroj mogućnosti njegovog (pre)oblikovanja. Interpretacija pojedinačnog objekta istovremeno je ovisna o namjeni koja se na taj aparat vezuje i obraća mu se. Zamku ne možemo izbjeći, možemo se tek pitati kakva bi mogla biti iskrena predodžba o obliku provođenja takozvanog slobodnog vremena, a tako i prostora u kojem bi se odvijalo. Doslovno ponavljanje tradicionalnih uzoraka bilo bi dakako besmisleno. Itekako je smisleno pitanje kako rasteretiti oblik, isprazniti ga i dopustiti da se život unutra tek oblikuje? I upravo je u tome dostignuće i istovremeno čar crne kuće – stvaranje osjećaja pročišćenosti, praznine, a to predstavlja novi pogled na već postojeće.

Prazni prostor jednostavno je ispuniti i učiniti dopadljivim ili čak smislenim, ali objekt time istovremeno gubi svoj najveći potencijal – mogućnost da se pretvori u nešto drugo. Radi se o specifičnoj interpretaciji trenutnog, koja će se bez sumnje promijeniti. Praznine su, bilo u beskonačnoj pustinji ili na dolenjskim brežuljcima, itekako značajne.
Objekt je unatoč svemu još uvijek moguće oblikovati na tisuću i jedan način. Arhitektonska ideja tog projekta veže se za arhetipski oblik i za tehnologiju koja s jedne strane omogućava otvaranje prostora prema van, pomoću iščišćenog tlocrta, a s druge strane govori o energetskoj samodostatnosti i ekološkoj svijesti. Tamna fotovoltaža na krovu dopušta smisleno uključivanje objekta u likovni izgled krajolika, objekt koristi obnovljive izvore energije, u podrumu skladišti povezanost s ritualima okoline. Nadasve promišljeno, koža prema van i prema unutra sakriva svoje kapilare, koje omogućavaju funkcioniranje zahtjevne infrastrukture, a istovremeno dopušta slobodni pogled prema van.
Intimnost trenutka u beskrajnoj pustinji možemo možda usporediti s večeri na otvorenoj terasi koja ne nudi zaklonište. Amerika se približila Europi u brojnim značenjima te riječi. Govorimo li o kući čija je namjena uspostavljanje analogije sa semantičkim likom krajobraza, onda je na mjestu i usporedba s promjenjivosti različitih pejzažnih konteksta i njihovog značenja u svakodnevnom životu. Razmišljanje o krajoliku je naime udaljeno tek korak od misli na globalno selo, a pitanje o tehnologiji građenja tek korak od činjenice da tehnologija povezuje to globalno selo. Dvije linije koje vode jedna k drugoj. U slučaju ovog projekta, srećom možemo govoriti i o prostorima koji otvaraju nove perspektive. Kuća se ne kreće poput auta koji juri kroz pustinju. Nepomično stoji u prostoru i tamo će stajati još dugo vremena. S pogledima koje otvara postaju značajne i boje neba, što nas podsjeća na činjenicu da dijelimo isti prostor, iako uz vremenski pomak i u različitim pejzažnim kontekstima.