Razgovarali u Zagrebu 10. svibnja 2008.
ORIS: Htjeli bismo razgovarati o nekoliko tema vezanih za vaš rad, prije svega o vašim crtežima kao svojevrsnom zaštitnom znaku i o objavljenim istraživanjima te, s druge strane, o vašim izgrađenim radovima, posebice mikro mjerilu obiteljskih kuća i hiperkontekstualnosti takve arhitekture u odnosu spram specifičnosti lokacije. Možda bismo mogli započeti s vašom posljednjom knjigom Graphic Anatomy. U predgovoru postoji vrlo interesantna paralela između vaših arhitektonskih crteža i ilustracija u biologiji i prirodoslovlju. Moglo bi se reći da su vaši crteži po objektivnosti načina prikazivanja i vrlo preciznom načinu crtanja vrlo slični ilustracijama botaničara ili anatomista. Također je zanimljivo što se takva vrsta prikaza mijenja od projekta do projekta, od jednog mjerila do drugog. U knjigama Pet Architecture i Made in Tokyo imate jednu vrstu arhitektonskih crteža, a ovdje sasvim drugačiju, vrlo preciznu i naprednu. Možete li nam reći nešto o načinu na koji se služite crtežima kao arhitektonskim alatima?
BOW–WOW: Uvijek stremimo pronalaženju jedinstvene prezentacije onoga što želimo prikazati. U našoj prvoj knjizi Made in Tokyo htjeli smo prikazati vrlo normalan okoliš, ne samo za Japance nego i za strance. Za ljude iz drugog grada i druge kulture fotografija možda ne obuhvaća dovoljno. Potom počnemo crtati ono što vidimo i objašnjavati što je osobito u svakom slučaju. Primjerice, Super Car School iz knjige Made in Tokyo je samo supermarket, ali koji na svom krovu ima i vozačku školu. Ima poligon za vožnju, ulične svjetiljke, automobile, nizbrdice za vježbanje kočenja. I u knjizi Pet Architecture Guide Book elementi koji izviru iznutra vrlo su bitni za shvaćanje prostornog iskustva svakog pojedinca. Mi tu kvalitetu prostora - da je zgrada sličnog mjerila kao i klima uređaj ili samoposlužni automat - nazivamo ‘prilagođavanjem’.
ORIS: U svojoj drugoj knjizi Pet Architecture Guide Book koristite prikaz čovjeka sa psom, što je vrlo zgodno za stjecanje utiska o veličini zgrade koja je zapravo vrlo malena.
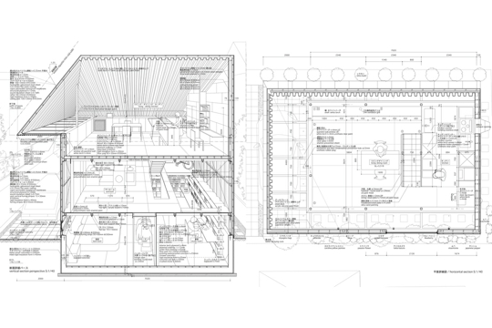
BOW–WOW: Sama zgrada je vrlo mala, tako da elementi koji su kasnije dodani oko nje, kao samoposlužni aparat ili vanjska jedinica klimatizacijskog uređaja, imaju vrlo jak utjecaj na njen izgled. Made in Tokyo i Pet Architecture Guide Book pomoći će vam u spoznavanju Tokyja kroz njegovu arhitekturu. U tom slučaju ljudi mogu čitati arhitekturu, analizirati je ili promatrati kao dio urbanog krajobraza. U četvrtoj knjizi, u Graphic Anatomy pokušali smo pokazati i naše arhitektonske detalje i ljudsko ponašanje prema svakodnevnim predmetima. U njoj je nacrtan odnos između ljudskog ponašanja i građevnih elemenata i prostorne organizacije. Primjerice, u tako malim kućama prozori postaju iznimno bitni. Ti su crteži prvotno nacrtani u našem uredu kao tehnički nacrti i detalji za gradnju, a potom su studenti dodali perspektive sa svakodnevnim predmetima i životnim situacijama kao što su sjedenje u kući ili uživanje okoliša iz unutrašnjosti kuće. Prozori, osim toga, omogućuju stjecanje životnih vještina kontroliranjem odnosa unutarnjeg i vanjskog. Knjiga je izdana kao katalog naše izložbe u Tokyju da bi se lakše shvatili modeli u mjerilu 1:20, izloženi u galeriji. Publika je ponijela knjigu sa sobom u izložbeni prostor kako bi mogla uspoređivati naše crteže i modele. Ta je knjiga i naš odgovor na prethodne knjige o detaljima, poput knjiga s detaljima arhitekata Makija i Anda, iz kojih smo učili dok smo bili studenti.

ORIS: Prema tome, proučavanje načina crtanja detalja i načina prikaza arhitektonskog mišljenja kroz crtež može biti vrlo korisno i edukativno. Objavljivanje tih crteža pruža mogućnost predstavljanja vašeg načina razmišljanja i rada široj publici.
BOW–WOW: Publikacije su za nas vrlo važne jer nas zanima širi okvir djelovanja arhitekture. Ukoliko širi okvir projekta nije dobar, onda samo trošimo energiju bez učinkovitog rezultata. Pronalaženje odgovarajućeg okvira djelovanja za svaki projekt jedna je od najvažnijih uloga arhitekata danas u eri bez snažnog socijalnog, arhitektonskog kanona. Do 60-ih godina prošlog stoljeća jezik arhitekture je imao snažan kanon kojeg je društvo dijelilo, no danas svaki arhitekt može iznova definirati i izumiti arhitektonski jezik. Okvir djelovanja projekta mora biti dobro promišljen ako se želi da taj jezik bude uvjerljiv. Prve dvije knjige bile su vrlo bitne za nas jer su promatranjem postojećeg okoliša uspostavile određeni okvir djelovanja arhitektonskim radovima u Tokyju. Druga motivacija bila je stvoriti stil crtanja. Budući da se knjiga Made in Tokyo bavi hibridnim uvjetima različitih programa u gradu, dovoljan je jedan crtež nalik na pasicu stripa za prikazivanje različitih programskih elemenata. Jednostavna metoda crtanja bitna je i u radu sa studentima. Tom metodom crtanja eliminirali smo razliku između crtanja svakog pojedinog studenta u svrhu optimiziranja svih prikaza građevine i našu studiju učinili znanstvenijom. U knjizi Pet Architecture Guide Book, osim ako ih nisu dizajnirali arhitekti, morali smo crtati detaljnije, jer knjiga govori o građevini sastavljenoj od svakodnevnih predmeta. U vezi s knjigom Graphic Anatomy mogu reći da smo smatrali da je došlo vrijeme da skupimo sve detalje već primijenjene u našim prethodnim projektima. Htjeli smo izraditi neku vrstu arhive za nastavak naše prakse na sličan no bolji način. Potom smo shvatili da bi crteži u mjerilu 1:20, karakterističnog presjeka većine naših crteža, mogli stati na format 31cm x 62cm da se rastvore. Poslovna zgrada visoka sto metara ne može se nacrtati u mjerilu 1:20 u tom formatu. No u njemu možemo prikazati detalje zgrade i prostornu konfiguraciju zbog njihovih malih dimenzija.
ORIS: Gledajući crteže kuća u vašoj knjizi Graphic Anatomy, sve se čine vrlo ‘gustima’, vrlo povezanima s tijelom, gotovo antropometrijskim. Ovdje bismo mogli povući paralelu s ručno izrađenim sushijem. Radi se o nečemu vrlo kompaktnom s raznovrsnim okusima, metaforički rečeno, o nečem vrlo intenzivnom i zanimljivom.
BOW–WOW: Izuzetna blizina svakodnevnih predmeta kao što su namještaj ili elektronski uređaji jedna je od presudnih uvjeta moderne japanske kuće. Vrlo pažljivo pristupamo razmještanju namještaja, posebice vezano za njegovu orijentaciju. U malom prostoru je vrlo neugodno ako dva komada namještaja stoje jedan nasuprot drugome. U istom kontekstu ‘orijentacije’ ponovo smo otkrili prozore, te na koncu i ljudsko tijelo. O malim se kućama sada može raspravljati kao o skupu različitih orijentacija putem različitih sredstava. Sinteza tih različitih smjerova postaje operabilni arhitektonski poredak. Un Art contextuel, Flammarion, 2002., Furnicycle predstavlja odraz tog razmišljanja u mjerilu instalacije. U ovom slučaju spojili smo tricikl sa stolicama, krevetom i stolom u suprotnom položaju. Dok se voze cestom, radi se o triciklu, ali straga su ‘namještaj’ koji tvori instant dnevnu sobu na ulici. ‘Dog Chair’ je dizajnirana istom metodom. Orijentacija psa i stolice kombinirana je na temelju sličnosti četiri noge koje imaju i pas i stolica.
ORIS: Pogledate li knjigu kao što je Made in Tokyo, koja se bavi urbanim mjerilom, te potom knjigu Graphic Anatomy, koja se tiče vrlo malog mjerila, fascinantno je što postoji svojevrstan odnos poput odnosa unutarnje i vanjske strane rukavice. Prilično drugačije, pa opet na neki način veoma povezano. Čini se da je uvijek u pitanju svojevrsna metodologija kojom se pokušava utvrditi arhitektonsko rješenje ili pak razumijevanje složene arhitektonske situacije.
BOW–WOW: Knjigu smo nazvali priručnikom jer u tom trenutku nismo imali precizan zaključak našeg istraživanja. Urbani fenomeni sami sebe čine različitima. Smatrali smo da je bolje da ne bude previše nalik akademskom istraživanju. Forma priručnika je dovoljno otvorena i omogućava nam da dodajemo bilo što novo, bilo što zanimljivije, a tada vam skupina određenih zgrada počinje nešto govoriti. U tom trenutku nismo koristili termin ‘okvir djelovanja’, ali smatram da ga tako možemo zvati. Ako gledate grad kroz taj okvir, mnoge se stvari počinju činiti vrlo različitima.
ORIS: Pitanje koje sada otvarate tiče se grada u smislu arhitekture. Vi, dakle, na neki način šetate gradom hvatajući sve te različite vrste modela, sve te različite tipologije i pokušavate ih unijeti u praksu pojedinačnih kuća. Idete od velikog mjerila prema malom, no idete li u suprotnom smjeru kad obrnete procese? Pokušavate li vježbati iskustvo mjerila kuće i potom ga primijeniti na grad? Ako u vašem radu na kućama vidimo neku vrstu približavanja, postoji li i nešto nalik na udaljavanje?
BOW–WOW: Da, to je nešto što trenutno pokušavamo napraviti. Promatramo urbane fenomene i razumijevamo njihove mehanizme (=indukcija) te malo mijenjamo odnos između elemenata kako bismo učinili da taj mehanizam stvara različite urbane fenomene (=dedukcija). Taj proces koji spaja indukciju i dedukciju naziva se transdukcijom. Taj smo proces testirali s Furnicycleom i nekoliko projekata nazvanih ‘Micro Public Space’ u okviru umjetničke izložbe. U istom smislu, kad radimo na maloj kući, fokusiramo se na arhitektonski jezik. Kroz povijest su urbani oblici bili obilježeni i vizualizirani geometrijskim poretkom kao što je os, simetrija, zlatni rez, itd. ili uniformnošću vrste i stila zgrada. Takvo vizualno jedinstvo nedostaje u Tokyju. U opisu tog aspekta tokijske vizure je, posebice tijekom 80-ih godina prošlog stoljeća, često upotrebljavana riječ ‘kaos’. No ako pogledamo same zgrade, tipovi su ograničeni unutar raznolike pojavnosti. Disciplina vizure Tokyja je nasumično napramapostavljanje tih različitih vrsta i svaka vizura ulice je rezultat proporcionalnog izgleda tih tipova. Nas zanima stvaranje nove vrste generacije u redefiniranju lokalnog specifičnog arhitektonskog jezika. Kuće koje je projektirao Bow-Wow na neki su način slične svojim susjedima, no i drugačije zbog proširivanja bihevioralnog kapaciteta arhitekture. Smatramo da je to pravi način intervencije u urbanom krajobrazu.

ORIS: Radi li se o arhitektonskom jeziku kao arhitektonskom kodu ili on uopće ne pokušava postati kod? To utječe na definiciju diskriminacije.
BOW–WOW: Naravno, na nas su utjecali radovi Christophera Alexandera i Alda Rossija. Izradili smo tipološko istraživanje Kanazawe, starog grada-utvrde. Kanazawa nije bombardiran niti uništen u potresu tijekom 20. stoljeća tako da još uvijek ima svoju staru urbanu strukturu. U istraživanju smo se usredotočili na jednu ulicu, onu trgovačku. Zona duž te ulice, obojena u ružičasto, na ovoj karti označava trgovačku zonu, žuta je za samuraje, ljubičasta za hramove i svetišta. Trgovci su razvili tipologiju kuće s dućanom koja ima vrlo usku fasadu i iznimno dubok profil. Otkrili smo da je današnja vizura ulice samo nasumično napramapostavljanje raznolikih tipova nastalih kao preobrazba izvornog tipa. U promatranju preobrazbe tipa može se primijetiti nekoliko pritisaka na okoliš: standardi zaštite od požara, antiseizmička struktura s većim FAR-om za trgovačke zone zbog koji je teško održati izvorni dvokatni drveni tip. Potreba za parkiralištem imala je velikog utjecaja na tretman ulične strane građevina. Ako je izvorni tip prva generacija, onda druga, treća i četvrta generacija mogu definirati razinu preobrazbe. Drugu generaciju odlikuje prilagodba novim pritiscima na okoliš vezanim za održavanje drvene strukture. Jedna je otvorila prizemlje za parkiralište, druga je poput maske pokrila čitavu prednju stranu lažnom fasadom s uzorkom cigle. Četvrta generacija čini se vrlo udaljenom od izvornog tipa, tako da ljudi misle da se više ne radi o gradskoj kući, no to je još uvijek gradska kuća ako je gledate u slijedu preobrazbe. Ispitali smo svaku zgradu (preko 1300 zgrada) duž ulice i sve ih mapirali različitim bojama. Mapa tako pokazuje odnos između različitih tipova na svakoj ulici. Jedan dio većinom pokriva prva, a ostalo pokriva druga generacija ili se radi o kombinaciji.
ORIS: Čitavo vrijeme mapirate promjene u društvu i gospodarstvu pomću tipologije zgrada definirajući krajobraz grada tim promjenama.
BOW–WOW: Svakako. To nije nešto što neposredno primjećujemo, nego je nešto što se stvara u našoj glavi dok hodamo tom ulicom. Sada možemo predložiti petu generaciju gradske kuće u kontekstu preobrazbe tipologije. U Kanazawi putanja preobrazbe je jasna jer u gradu još uvijek vidimo izvorni tip, no u Tokyju je to malo teže. Unatoč tome moramo razmotriti tu vrstu okvira djelovanja da bismo mogli arhitektonski stvarati.
ORIS: Pokušavate li na neki način definirati urbano tkivo od dna do vrha? Je li to proces kojim, po vašem mišljenju, možete definirati strukturu grada?
BOW–WOW: To istraživanje nam je omogućilo sagledati raznolikost gradskih kuća u nizu. Novi, drugačiji prijedlog arhitekata bez takvog okvira bi lako postao slabom novinom. Nas to ne zanima. Novi prijedlog bi trebao biti sjajan i sadržajan te aktivirati potencijal lokalnih arhitektonskih resursa. Ako to ne učini, neće biti održiv.
ORIS: To me malo podsjeća na rodoslovlje. Može li se takva vrsta arhitektonske lingvistike primijeniti na metabolizam praznine tkiva predgrađa?
BOW–WOW: Kuće koje su projektirali moderni japanski arhitekti su najzanimljivije. Mi radimo neovisno i samostalno, no na neki način pokušavamo postići nešto slično. Počeo sam zvati ovaj okvir ‘metabolizmom praznine’. Smatram da je to dobro jer arhitekti moraju kolektivno reći nešto o gradu, o urbanom krajobrazu. Ako se pojedinačno razlikujemo jedan od drugog, mi kao struka nećemo u društvu imati nikakve moći. Značajka metabolizma praznine je međuovisni odnos između volumena i praznine stvorene između zgrada. Volumeni zgrada ispituju se kroz njihov utjecaj na kvalitetu praznog prostora, no i prazni se prostori također ispituju u smislu njihovog utjecaja na kvalitetu prostora unutar volumena. Niz povratnih informacija dok se ne nađe stabilno, uravnoteženo stanje između praznina i volumena je osebujan proces metabolizma praznine. Sve fizičke karakteristike kao što su usko ili tamno, visoko i svijetlo, dugo i kratko dobro su integrirane u prostornu organizaciju i daju vlastitu vrijednost. Ni jedan prostor nije zloupotrijebljen. Studija o povratnim informacijama vezanim za međuovisnosti volumena zgrada i praznog prostora je proces utvrđivanja boljeg okvira djelovanja kako bi se svaka različita prostorna kvaliteta tretirala kao jednako vrijedna.

ORIS: Dakle govorimo o environmentalnim jedinicama. Vjerujete li da arhitekti u Japanu mogu raditi kao urbani kustosi u većem mjerilu?
BOW–WOW: Smatram da mogu. Poznate frazu ‘environmental unit’.
ORIS: Mislim da je ta ideja vrlo zanimljiva. To je razmišljanje koje na grad gleda kao na organizam. Stvari koje se ne čine očito povezanima na neki su način povezane u ekosustav urbanizma. Smatram da je ta poanta u potpunosti različita od neke vrste kontekstualizma, vernakulizma ili nekog drugog oblika odnosa s ‘izgrađenim okolišem’ u arhitekturi.
BOW–WOW: Na ideju ‘environmental unita’ velikog je utjecaja imao ‘environmental world’ Uexkülla. On pokušava upotrijebiti postojeći element na lokaciji kako bi stvorio sadržajni set okoliša. Arhitektura služi kao ljepilo za spajanje različitih stvari koristeći se svojim organskim svojstvom prirode. To je okoliš stvoren putem teorije iskoristivosti prije nego teorije gradnje. Naš interes leži u ekosustavu stvorenom tim načinom razmišljanja, no u isto vrijeme i mutacijom arhitektonske forme u ovom okruženju - ‘environmental unita’.
ORIS: Dakle, vi smatrate da je budućnost arhitektonske djelatnosti sve usmjerenija na izvan strukovna iskustva, odnosno da arhitektura postaje sve otvorenija u smislu koordinacije između drugih disciplina u svrhu planiranja i projektiranja.
BOW–WOW: Da. Vjerujemo da se u tom procesu još uvijek mogu pojaviti individualni karakteri. Do 80-ih godina prošlog stoljeća arhitektonski dizajn u Japanu bio je previše orijentiran na pristup okrenut sebi: što sam ja, što si ti, što je moja arhitektura. To se moglo dogoditi zbog gustoće uvjeta u Japanu u tom trenutku. Sada je vrijeme globalizacije i smatram da bliskost u manjoj zajednici gubi svoju pouzdanost, tako da smatram da arhitekturu moramo više otvoriti prema igri sa svime što postoji u ovom svijetu.