Vidjeti i biti viđen

arhitekti Neri & Hu Design and Research Office
projekt Hotel Vodena kuća, Šangaj, Kina
napisao Aric Chen

PDF Download: Klikni ovdje.
 

Kod Vodene kuće postoji neka vrsta poetske ironije vraćanja na početak. Vodena kuća dizajn je hotela s devetnaest soba kojeg je projektirao Studio za dizajn i istraživanja Neri&Hu (Neri&Hu Design and Research Office, NHDRO) u Šangaju. Dijelom inspiriran povijesnim gradskim kućama između kojih se isprepliću vrlo uske uličice (nong tang), projekt pokazuje veliki trud adaptacije s osjećajem nekadašnje industrijske zgrade, dok nedaleko ubrzano nestaje pravi nong tang. Možda je takva sudbina povijesnih četvrti u svim starim gradovima svijeta koji se razvijaju: postati tek memorija koja se ‘citira’ u novim građevinama. (Kao još jedna neuobičajena značajka, nova konstrukcija je u ovom slučaju umetnuta unutar stare konstrukcije koja je bila drukčija tipologija.) Ili možda ovo govori o perverznoj logici našeg sadašnjeg kozmopolitizma prema kojemu, čini se, ideje o ‘lokalnom’ egzistiraju većinom za globalno konzumiranje.

 

Kako god, NHDRO je realizirao projekt koji vješto ostvaruje suvremene imperative jednog dizajn hotela i istovremeno inkorporira duboki osjećaj za slojevitost povijesti.

 

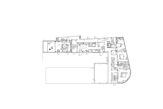
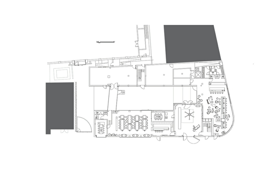
Smještena u novom naselju Cool Docks prenamijenjenih skladišnih prostora i lučkih zgrada na šangajskoj riječnoj obali South Bund, Vodena kuća zauzima nekadašnje sjedište japanske vojske iz 1930-ih. U određivanju nove konfiguracije za iznutra potpuno ogoljelu betonsku i zidanu strukturu od tri kata NHDRO su se orijentirali prema nong tangu zato jer ‘definira taj jedinstveni prostorni ton grada’, kaže Lyndon Neri koji upravlja tvrtkom sa sjedištem u Šangaju zajedno sa svojom suprugom Rossanom Hu.

 

Nong tang su male kuće s kosim krovovima koje datiraju s početka 20. stoljeća. I dok su stilski značajne zbog miješanja zapadnih i kineskih osobina, njihova još veća važnost možda leži u činjenici da stvaraju gusto zbijeno urbano tkivo u kojem se javna i privatna sfera stapaju u jednu zavrzlamu prostora i uskih uličica koje se iznenada pojavljuju i nestaju. U slučaju Vodene kuće, nong tang nisu samo korisno priznavanje lokalnog konteksta, nego su isto tako i savršeno prikladne za egzibicionizam ‘vidjeti i biti viđen’ mnogih dizajnerskih hotela. ‘Željeli smo imitirati ljudsku sklonosti prema vlastitom produciranju’, kaže Neri.

 

Nagovještaji toga pojavljuju se odmah pri ulasku u lobby visok tri kata gdje vertikalni prozor iznad recepcije gleda direktno u jednu hotelsku sobu. (I da, događalo se da su se gosti izlagali goli.) Slično tome, dva proreza iznad restorana otvaraju se u druge hotelske sobe koje se nalaze iznad – iako su previše uski da bi se išta vidjelo – dok kapci na prozorima soba za goste, koji imaju ogledalo sa svoje unutrašnje strane, izlažu pogledima ono što se događa unutra kada se otvore prema dvorištu. Kroz cijeli hotel – koji se u stvari sastoji od tri spojene zgrade– dugački hodnici, rampe i strateški otvori omogućavaju daljnje voajerske prilike. ‘To je kao vertikalni nong tang’, objašnjava Neri.

 

I dok iskazuju počast nong tangu, Neri i Hu isto tako pokušavaju sačuvati povijesni narativ same četvrti. Povučena je jasna granica između starog i novog, s time da je ovo prvo ostavljeno netaknuto koliko je god to bilo moguće. Žbuka je ostavljena da propada, a stari soboslikarski potezi ostavljeni su sa svim oštećenjima. Mrlje od vode su ostale. Tamo gdje su podne ploče uklonjene, njihovi tragovi su i dalje vidljivi. Drvo koje je spašeno s krova koji je trunuo sada se javlja u obliku zajedničkih stolova u restoranu i na vanjskim površinama kapaka s ogledalima u sobama za goste. ‘Željeli smo izraziti neku vrstu očuvanja kakvo se ovdje nikada nije dogodilo’, kaže Neri, pozivajući se na širu tendenciju da se sve napravi tako da izgleda kao sasvim novo.

 

Zaista, postoji iskrenost u intervencijama projektanata. Obložen Cor-Ten čelikom, novo nadodani četvrti kat i krovna terasa posve su jasno: novi dodatci. A isto to je i set čeličnih stupova i greda koji služe kao pojačanje. U sobama za goste s plohama od hrastovine, betona i stakla, ugrađeni ormari postavljeni su unutar posebno podignutih zidova tako dopuštajući postojećim zidovima da ostanu u svojem trošnom stanju.

 

Naposljetku, NHDRO nisu stvorili sklop lokalnih klišeja, nego prilično promišljeni odgovor u kojem se i povijest, a ne samo gosti, može pokazivati bez ispričavanja.