Pripremajući se za ovaj tekst, nanovo sam se uvjerio u kolikoj je mjeri prosudba stambenih zgrada i novih naselja ‘siva zona’. Iako količinski dominantan, to je dio arhitekture u kojem gotovo da nije moguć konsenzus jer ono što je meni ‘bijelo’ drugome je ‘crno’, pri čemu svi imamo pravo na isključivo mišljenje budući da svi svakodnevno živimo posljedice stanogradnje. Neki sam dan Sandru, autoru slikovnog dijela ovog priloga, jedva objasnio o kojim se zgradama u Sloboštini radi da bi na kraju ispalo da je on baš u jednoj od tih Odakovih živio. Nije se mogao načuditi da ih u Orisu tematiziramo jer to, valjda, znači ‘potvrdu’ da su primjer izvrsne ili barem zanimljive arhitekture. Zajedno smo obišli lokaciju, ušli u jednu od zgrada, hodali galerijama - čisti rašomon! Tamo gdje sam ja vidio finu prostornu strukturiranost, poticajnu otvorenost oblikovanja, polje socijalnih mogućnosti, itd., Sandro se prisjećao nesnosne buke sa susjedne brze gradske prometnice i osjećaja nelagode življenja u zgradi na čijim se mračnim i predugim galerijama stalno susreću nepoznati ljudi... Moj strukovni entuzijazam našao se sučelice sjećanju na prostor koji tjera čovjeka da se učahuri tamo gdje se jedino osjeća sigurno, tj. u privatnoj domeni stana. Socijalizacijske potencijale zgrade nije uočio ili ga nisu zanimali. Poučen tom rašomonskom situacijom pitam se dopušta li mi pogled izvana meritorno mišljenje kad razgovaram s onime tko je tu istu zgradu doživljavao iznutra; može li (treba li) Sandrovo ‘crno’ viđenje poljuljati moje ‘bijelo’ ili pak, s druge strane, treba li (može li) moje profesionalno motrište promijeniti ili ublažiti, barem post festum, Sandrov doživljaj. Ustvari, pitanje je jesmo li Sandro i ja na suprotnim stranama pa nam je doživljajni rašomon sudbinski predodređen.
-
Što je, danas i ovdje, stambena arhitektura, tj. postoji li način da se barem približno točno odrede parametri koji bi zadovoljili interese svih uključenih u proces stanogradnje - krajnjih korisnika, projektanata, razvojnih stratega gradova, investitora usmjerenih profitu? Već površni uvid u stanje stvari pokazuje da je došlo do polarizacije gdje su s jedne strane zarađeni (ili izgubljeni) euri i/ili politički poeni, a s druge egzistencijalna nužda i nemogućnost stvarnog odabira većine stanovništva; između ta dva pola djeluju planeri i projektanti. Planeri nastoje spriječiti razvoj gradova prema potpunom urbanom kaosu balansirajući između apsolutne vladavine investicijskog kapitala i osiguravanja barem minimalnog komunalnog standarda i socijalnih vrijednosti; projektanti, osiguravajući pritom vlastitu egzistenciju, ‘plivaju’ unutar datih okolnosti pokušavajući zadovoljiti sve uključene, no često iznevjeruju sve jer su kvadratni metri stambenog prostora prosječnim korisnicima daleko preskupi, a investitorima projekti nikada nisu dovoljno komercijalno isplativi.

Pogled na specijalizirane priloge ‘Nekretnine’ u novinama, a naročito iskustvo gotovo svega što oko sebe vidimo (tj. što živimo), tjera nas da zaključimo kako povećanje količine izgrađenog stambenog prostora obrnutom proporcionalnošću prati smanjenje njegove kvalitete, ali i smanjenje kvalitete urbanog prostora koji stanogradnjom nastaje. Je li uopće moguć konsenzus interesa svih uključenih strana? Ako u nedostatku konsenzusnog rješenja pogledamo unazad, vidjet ćemo da nas cjelokupna povijest (arhitekture) uči da je stambena arhitektura nepregledno more više ili manje amorfne izgrađene strukture koja u sebi udomljuje ljude te time gradi gradove. Znači li to, bilo gdje i zauvijek, neizbježnost ‘sivila’ unutar kojeg su do nerazlučivosti pomiješani svi ‘crni’ i ‘bijeli’ partikularni doživljaji i interesi? A opet, povijest modernističke (socijalno usmjerene) arhitekture uči nas, arhitekte-gradograditelje koji smo iz nje izrasli, da smatramo kako nema plemenitijeg zadatka od stvaranja stambene arhitekture i kao zbroja humanih osobnih staništa/utočišta i kao sredstva socijalne integracije - tj. da se od nas očekuje pozitivna ‘vizija’ razvoja gradova.
Možda je sad jasnije odakle izvire Sandrov i moj doživljajni rašomon - s jedne je strane (frustrirani) pojedinac s pravom na puno zadovoljenje osobnih stambenih potreba, ali bez ikakve stvarne mogućnosti za partikularno djelovanje, a s druge (nadobudni) arhitekt s prilikom da oblikuje gradotvorni model, ali bez kredibiliteta konsenzualnog nadsustava (arhitektonskog, urbanističkog, socijalnog, političkog...) i s investitorima koje sve to uopće ne zanima. Ako konačno pogledamo Odakove zgrade u Sloboštini u Zagrebu, možda se moramo upitati mogu li one biti referentan primjer/odgovor za rješenje današnjih stanogradbenih problema budući da su nastale prije tridesetak godina, tj. proizvod su drugog društveno-političkog, privrednog, socijalnog konteksta?
-
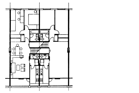
Nedvojbeno je da se Odak hrabro i sustavno uhvatio u koštac i sa stanogradnjom i s gradogradnjom, tj. da se bavio i ‘velikim’ (oblikovanje grada kućom) i ‘malim’ (oblikovanje individualnog staništa kućom/gradom) temama. Nedvojbeno je također da je, čak i za današnje hiperrestriktivne investicijske uvjete, stvorio izuzetno racionalan stanogradbeni sustav unutar kojeg su komunikacijski prostori svedeni na minimum (na tek dvije unutarnje galerije po zgradi), pa je odnos ukupne i komercijalne izgrađene površine izrazito povoljan.
Njegove stambene zgrade međusobnim odnosom i prostorno-sadržajnom dispozicijom uistinu nude model mogućeg rasta (tj. nisu samodostatne u zadovoljenju partikularnih interesa); strukturirane su s jasnom hijerarhijom sastavnih dijelova (oblikujući i segment novog dijela grada i konstelaciju pojedinačnih stambenih jedinica), pa se može reći da izrastaju gotovo organično.
Fizička struktura Odakovih kuća jasno se očituje kao entitet unutar kojeg su moguće mutacije pojedinačnosti. Odak je svjestan da se oblikovanjem stambene zgrade na elementarnoj razini progovara o biti arhitekture, ali i da se gradi prostorni okvir unutar kojeg će čovjek naći (ili ne) vlastitu ‘nišu’ u svijetu. Upravo zbog toga što je moguća zloporaba autorske pozicije (pod okriljem višeg cilja) on je dosljedno suzdržan u oblikovanju. Nakon što je uspostavio potpuno jasno strukturiranu cjelinu, on odustaje i od pretjeranog dizajniranja i od pretjeranog definiranja privatne domene stanova, pa se suzdržava od estetizacije; shvaća da ne može i ne treba sputavati buduće stanare suvišnim ‘pravilima’ budući da su oni istinski ‘kolonizatori’ - s pravom i mogućnošću da razviju ‘osobne estetike’ unutar zadanog okvira.

U domeni koja nastaje između osobnog staništa i cjeline zgrada Odak diskretno formira prostore za socijalnu integraciju - od zaštićenog ‘dvorišta’ s livadom i dječjim igralištem koje se ugnijezdilo između dviju zgrada do komunikacijskih prostora oblikovanih unutrašnjim galerijama. Premda su galerije na nižim etažama uistinu duge i mračne (kao što ih se sjeća Sandro), one na višim su pune svjetla, no i na jednim i na drugima ostvareni su ‘prostorni džepovi’ u kojima se Odak (arhitekt/demijurg) nada stvoriti prostorno-socijalnu ‘dodatnu vrijednost’.
Bez obzira na osobne afinitete mora se priznati (i poštivati) da je Odak svojim zgradama u Sloboštini izgradio vjerojatno jedan od zadnjih primjera potpuno sustavne i socijalno osviještene stanogradnje u Zagrebu.
-
Gaston Bachelard kaže da ‘slika kuće kao da postaje topografijom našeg intimnog bića’ te uzima kuću za ‘instrument analize ljudske duše’. Ako je ta ‘kuća’ osobna kuća, onda se Bachelardova konstatacija čini samorazumljivom; to vrijedi i ako se govori o stanu, tj. o osobnom stambenom prostoru. Međutim, što kad se govori o ‘kući’ koja je izgrađena (projektirana) da udomi mnoštvo ‘ljudskih duša’ koje ni na koji način ne mogu utjecati ni na njezin oblik ni na njezine sastavne dijelove? Što je s višestambenim zgradama, čega su one ‘topografija’ - ‘kolektivne duše’, arhitektove, investitorove?!
‘Slijedeći san o nastanjenju tih nenastanjivih mjesta ponovno smo došli do slika koje od nas koji ih doživljavamo, a u cilju da ih uzmognemo naseliti, traže da se poput gnijezda i školjki učinimo sitnima. Ne pronalazimo li, naime, čak i u vlastitim kućama zakutke i kutove u koje bismo se htjeli šćućuriti.’ Tematizirajući prostor i njegovu poetiku, Bachelard govori o intimnom prostoru ( ‘ladici’, ‘gnijezdu’, ‘školjci’...), o skrovitom mjestu na kojemu jedino može zaživjeti imaginacija koja daje smisao i punoću ljudskoj egzistenciji, tj. koja je istinsko polje čovjekove slobode i polazište za povezanost s nadsustavom apsoluta. ‘Može li se, kroz uspomene na sve kuće u kojima smo pronašli utočište, preko kuća o kojima smo sanjarili da u njima stanujem, izdvojiti intimna i konkretna bit koja bi bila obrazloženje jedinstvene vrijednosti svih naših slika zaštićene intimnosti?... Jer kuća je naš kutak u svijetu. Ona je - često se to znalo kazati - naš prvi svemir. Ona je uistinu kozmos. Kozmos u potpunom značenju te riječi. Intimno promatrano, nije li i najskromnija nastamba lijepa?... Naš je cilj sada jasan: trebamo pokazati da je kuća jedna od najvećih integracijskih sila za čovječje misli, uspomene, snove.’
Smijemo li (ili čak, usuđujemo li se) postaviti pitanja: razmišlja li o tome, ili barem o nečemu od toga, današnji arhitekt kad projektira višestambenu zgradu; je li i za njega (tj. za nas) višestambena zgrada ponajprije aglomeracija osobnih ‘kuća’, tj. zbroj ‘najvećih integracijskih sila za čovječje misli, uspomene, snove’; je li i nama, kao Bachelardu, kuća sinonim za kozmos? A ako i razmišljamo poput Bachelarda, postoje li danas naručitelji/investitori (bez obzira na to jesu li privatni ili društveni) koji imaju sklonost, ili barem dovoljno sluha, za takva razmišljanja?
Bez obzira na Sandrovo ‘crno’ ili moje ‘bijelo’ viđenje, pogled na Odakove zgrade u Sloboštini ipak budi nostalgiju; ali budi i nadu da nisu nepovratno izgubljena vremena u kojima su se stambene zgrade gradile i kao cjelovit sustav humanih individualnih skloništa i kao pozitivno sredstvo socijalne integracije.
svi navodi:
Gaston Bachelard: Poetika prostora, Ceres, Zagreb, 2000., prijevod Zorica Ćurlin