U desetak godina su, po narudžbi istog investitora - Vojno građevinske direkcije, nastale u Zagrebu tri građevine značajnih dimenzija, tipološki slične i sve tri visoke arhitektonske razine. Galerijska zgrada Ive Geršića (1950.) na raskrižju Držićeve i Vukovarske ulice kao da je izvađena iz funkcionalističko-konstruktivističkog kataloga 30-ih (Baršć, Vladimirov, Ginsburg). Svojom jednostavnošću i elegancijom plijeni pažnju, doduše više prolaznika i promatrača, a manje korisnika skromnih galerijskih stanova.
Kompleksna galerijska zgrada Drage Galića u Vukovarskoj, alias Proleterskih brigada, alias Moskovskoj, alias Varaždinskoj br. 35A iz 1953. ('Ne daj se, Ines... ') je sa Catalanovom modulacijom stana, Le Corbusierovim oblikovnim principom i Galićevom strogošću i dosljednošću u interpretaciji totala i detalja postala paradigmom stambene zgrade kolektivnog stanovanja. Raosova galerija u Zorkovečkoj ulici, posljednja u trolistu, projektirana je 1961. godine. Urbanistički gledano, radi se o krstarici koja se usidrila između brodica trešnjevačke periferije, između 'vrtova malih kuća... na kraju perspektive', a scena i mizanscena u dugih četrdeset i nešto godina nije se promijenila i Bogu hvala da je tako.
Park, zelena ploha sa južne strane odvojila je prigradsku usitnjenu gradnju od respektabilnog volumena kao element pomirenja dvaju različitih principa organizacije i korištenja prostora. Različiti volumeni i intenziteti u kreativnom međuodnosu samo dobivaju: sitna izgradnja, urbano disciplinirana ali amorfna u svojoj 'tepih' interpretaciji, Raosovom kućom dobiva završni identifikacijski i oblikovni akord, a nova zgrada dobivaju pitomi okoliš kojim superiorno vlada, no s druge strane u drugom mjerilu i drugim izražajnim i organizacijskim sredstvima, vertikalnim adiranjem stambenih jedinica nastavlja zatečenu funkcionalnu matricu. Umjesto crkve, škole, socijalne ustanove dogodio se 'stambenjak' koji u sebi sadržava potencijale razvoja zajedničkih i javnih prostora, što se naknadno i dogodilo. Koliko je Raos sudjelovao u oblikovanju mizanscene nije poznato, ali je vidljivo da se radi o smišljenom i brižljivo pripremljenom zahvatu u prostoru.

Odnosom prema tlu i nebu, znači osnovnim orisima, definiran je arhitektonski volumen. Igra između ta dva horizonta može biti suzdržana ili bogata, puna detalja ili jednostavna, ovisno o sadržaju, imperativima koji iz njega proizlaze, temperamentu i svjetonazoru autora, itd. Sve to može biti arhitektonski više ili manje uspješno, ali pogreška u osnovnim odnosima je nepopravljiva. Raosova krstarica je upravo u tom smislu sjajna. Prizemlje je transparentno i primjerenom visinom uspostavlja prirodan, ležeran odnos prema tlu. Transformacije koje su tijekom eksploatacije nastale nisu naudile cjelini. Sadržaji koji su bili isključivo u funkciji stambene zgrade (ne stanovanja, nego zgrade) zamijenjeni su javnim i trgovačkim prostorima, ali se ništa bitno nije dogodilo u osnovnoj proporciji.
Glede urastanja u funkcionalnu i socijalnu strukturu šireg okoliša pozitivan pomak je nesumnjiv. Osobina dobrog projekta je da daje životu šansu... Ona će biti iskorištena na nama nepredvidiv ali životan način. Nasuprot mekom i transparentnom prizemlju atika dimenzijom, geometrijom i likovnom interpretacijom neopozivo, čvrsto definira gornji rub okvira u koji je smješten 'ostatak' od osam katova zgrade. Malobrojni otvori atike naznačuju da se iza čiste, ravne plohe nalaze svrsishodni prostori koji mjestimično diskretno proviruju u svijet horizonta, a ne isključivo neba. Između prizemlja i atike postoje samo dinamične horizontale - galerija na sjeveru i lođa sa ostakljenim ogradama na jugu. Na prvi pogled čini se da je zgrada bez sitne strukture pročelja - prozora, vrata i svih onih neizbježnih, uglavnom remetilačkih elemenata. ^ak su se i pregrade lođa između stanova zagubile u materijalu (staklu) i obliku. Detalj, tamo gdje se pojavljuje, diskretan je, u funkciji cjeline. Ostakljenje i zaštita stubišta na galeriji doimlju se pomičnim; minimalističkim jezikom proporcije, oblika i materijala. Još je jednom pokazano da manje može biti više.

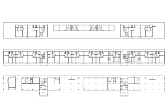
Unutarnja struktura je jednostavna, konstrukcija skeletna, stambena struktura ujednačena, na razini standarda vojno-građevinske direkcije. Dimenzioniranje i i dispozicija prostora su solidni. Zadatak je postavljen i savladan na razini Geršića, Galića, Vitića, Rašice, dakle onih koji su imali privilegiju projektirati za tada najvažnijeg investitora - vojsku. Stanovi u okviru poznatih shema za odabranu tipologiju - sjever komunikacija i servis, jug boravljenje, spavanje i vanjski prostori. Solidan standard. Da je standard solidan, blizu potreba i zahtjeva korisnika, pokazuje činjenica da je unatoč vremešnosti građevine vrlo malo intervencija koje su inače dio folklora i koje s jedne strane pokazuju manjak na kontu kulture prostora i njegove kontrole, a sa druge na nedostatak prostornog i inog standarda koji se nekontroliranim intervencijama krpa i 'popravlja'. Pri kraju priče: boja. Boja je sastavni dio arhitektonske interpretacije. Po definiciji crna i bijela nisu boje, nego ekstremi na granicama spektra, gdje jedan sve apsorbira, a drugi sve reflektira.

Ipak u ovom slučaju bijeli segment spektra, primijenjen na sve vidljive plohe pročelja, čini da zgrada sa mlječnim staklom ograde postaje transparentni odsjaj umočen u bjelinu. Istina, kroz sve ove godine i manjkavo održavanje malo je posivjela i pohabala se, ali ni to nije loše. Elementi oblikovanja i organizacije prostora koje Raos koristi nisu originalni; sve je to već viđeno i dio je usvojenog arhitektonskog vokabulara svog vremena, ali u datom kontekstu okoliša i građevine primijenjeno je senzibilno i promišljeno tako da možemo govoriti o rijetko postignutom suglasju namjere i rezultata ostvarenih jezikom i sredstvima svog vremena.
Uostalom, umjesto beskrajnih analiza postavimo pitanje: Što bi bilo da Raosova krstarica otplovi? Odgovor će reći sve ono što o ovoj sjajnoj kući u ovom tekstu nije rečeno. Konačno, važno je naglasiti da je realizaciju Raosovog idejnog projekta preuzeo biro arhitekta Slavka Jelineka koji je iskustvom, organizacijskom razinom i profesionalnošću u razradi svim sigurno pridonio arhitektonskom i graditeljskom rezultatu.