Razgovarali u Portu, 08.07.2006.
Već više desetljeća Alvaro Siza: zauzima izuzetno mjesto u arhitekturi. Prije svega zbog opsežnog opusa koji od najranijih radova do najrecentnijih pokazuje da ga svjetski trendovi nikada nisu zanimali. Njegova je arhitektura odraz svijeta u kojem živi, Porta i Portugala, a s druge strane i njegova potpunog uranjanja u vlastitu subjektivnost: 'Kad mislim na Arhitekturu, uvijek kao uzore uzimam pisce, pogotovo Pjesnike, najvještije izumitelje raspona i zvuka, stanovnike samoće.' Kada govori o značaju istinitosti, očito je da je za njega njegov unutarnji svijet barem toliko istinit koliko i vanjska realnost. Zato su njegove građevine istovremeno tako poetične i iznenađujuće prvobitne, u prostoru same po sebi razumljive, a da pritom nisu neupadljive; oblikovno suzdržane i skromne, a ujedno bezvremenske u bogatstvu ponuđenih doživljaja. Njegovo je djelo dokaz da arhitektura i u vremenu visoke tehnologije i globalizacije ostaje umjetnost, vezana uz prostor, kulturu, a time i tradiciju, pa i da je zadaća arhitekata prije svega stvaranje atmosfere, koja je, kako kaže Fernando Pessoa, 'duša stvari'.
ORIS: Počnimo od zgrade u kojoj se nalazimo, u kojoj se nalazi vaš ured i uredi Souto De Moure i Fernanda Tàvore. Zgradu vidimo kao simbol vrlo lijepog i jedinstvenog odnosa između arhitekata tri različite generacije. Fernando Tàvora, koji je nedavno preminuo, bio je vaš profesor i s njim ste surađivali. Bio je i profesor Soutu de Mouri koji je kao mladi arhitekt radio s vama. Bili ste, dakle, i učitelj, i suradnik i prijatelj. Svi ste bili jedna velika obitelj. Možete li reći nešto o važnosti Fernanda Tàvore za portugalsku arhitekturu i vas osobno?
Siza: Fernando Tàvora je bio bitan za portugalsku arhitekturu, u to nema sumnje. Kao prvo, bio je profesor generacijama arhitekata u Arhitektonskoj školi u Portu. Također je bio i organizator Fakulteta arhitekture kad je ovaj postao dijelom sveučilišta. Prije smo imali Beaux Arts sustav u kojem su slikari, kipari i arhitekti bili skupa, što je bilo sjajno. No onda nam se otvorila mogućnost ulaska na sveučilište, što je donijelo neka jamstva i prednosti. On je bio glavni utemeljitelj Fakulteta. Bio je vrlo mlad kad je počeo predavati. Kao član CIAM-a poznavao je mnoge strane arhitekte. Poznavao je generaciju koja je uključivala njegovog dobrog prijatelja Alda van Eycka, Giancarla De Carla i mnoge druge. Tàvora je bio u grupi unutar CIAM-a koja je imala kritički stav i postavljala nove ambicije za arhitekturu te naglašavala važnost povijesti i konteksta. O svim tim kontaktima je govorio u školi. Škola je bila vrlo mala, pa smo doista bili kao obitelj. To ima veze s kontekstom arhitekture i arhitekata u Portugalu. U Portugalu je bilo vrlo malo arhitekata. Moć u građevinarstvu pripadala je inženjerima; oni su mogli činiti što su htjeli. U to doba arhitekti nisu bili toliko bitni, nisu bili prestižni čak ni kaad bi bili izvrsni. Sve se uglavnom promijenilo nakon revolucije Karanfila 1974. godine, kada je nastao pokret prema decentralizaciji zemlje. Gradovi u unutrašnjosti željeli su i trebali arhitekte. Za vrijeme studiranja Tàvora me pozvao da radim u njegovom uredu. Ubrzo smo se sprijateljili. Napravili smo neke stvari skupa, kao npr. u Macau. Često sam putovao s njim, njegovom suprugom i prijateljima - u Egipat, Grčku, Južnu Ameriku, Brazil… Odnos između učitelja i studenata bio je vrlo izravan, vladala je ta obiteljska atmosfera. Njegov utjecaj bio je iznimno važan za mene jer sam preko njega, zbog našeg izravnog kontakta i prijateljstva, dobio svoj prvi projekt. U to vrijeme je radio na bazenu u Matosinhosu, ne onome kraj mora, nego onom drugom. Toliko sam bio zaokupljen radom u njegovom uredu da mi je rekao da bi bilo bolje da to napravim sam. Iznenadio sam se, no postupio sam tako. Što se restorana Boa Nova tiče, činjenica je da se Tàvorina tvrtka prijavila na natječaj. On je morao ići na veliko putovanje, posjetiti škole arhitekture u SAD-u, Aziji, Japanu, tako da nije mogao izaći na natječaj, no meni i četvorici suradnika je rekao da to napravimo. Vratio se nakon godinu dana, taman na vrijeme da napiše opis projekta. Bio je to krasan tekst. Smatram da našu pobjedu na natječaju možemo umnogome zahvaliti tom poetskom tekstu o toj lokaciji, vezanoj za pjesnika koji je išao tamo promatrati more.

Kad sam se upisao u Školu, Tàvora je zajedno s drugim arhitektima i mnogim studentima istraživao portugalsku pučku arhitekturu. Knjiga izdana na tu temu doživjela je velik uspjeh i postala slavna. Pozivali su se na nju kako bi dokazali vezu između arhitekture i društvenog ozračja a i kako bi dokazali tada vrlo konzervativnoj vladi da je suludo pokušati nametnuti nešto kao nacionalnu arhitekturu. Autori su dokazali da u zemlji postoji mnogo varijacija, s utjecajima Arapa, Normana, Rimljana, Grka. Vlada je podržala njihov rad u nadi da će dobiti nacionalnu arhitektonsku bibliju. Bila je iznenađena kad je dobila nešto sasvim suprotno - bile su tu različite regije, različite kulture koje su sačinjavale cjelinu, no uz mnogo razlika, bez klišeiziranja. To je bila jedna od utjecajnih stvari koje je učinio.
ORIS: Tàvora je uspio integrirati moderne zamisli i u tradicionalnu arhitekturu. Vrlo vas je lijepo opisao, kazao je da ste graditelj gravitacije. Koliko mi shvaćamo, to ima dvojako značenje: jedno se tiče vaše ozbiljne predanosti svom zanimanju, a drugo je fizička težina arhitekture. Gledajući izdaleka, vidimo da su ove osobine vašeg i njegovog rada karakteristične i za suvremenu portugalsku arhitekturu. No, s druge strane, poričete postojanje škole Oporta. Možete li to objasniti?
Siza: Mogu. Svojedobno je portugalska arhitektura bila nepoznata jer je tadašnja vlada odbijala kulturnu razmjenu. Portugal je bio gotovo iščeznuo s kulturnog zemljovida, a radilo se o zemlji s tako bogatom i otvorenom poviješću - bila je to prva europska zemlja koja je krenula prema Indiji, Japanu, Brazilu, sasvim suprotno od zatvorenosti. To razdoblje koje je gotovo izbrisalo opće znanje povijesti potrajalo je pedeset godina. Čak me i danas neke stvari iznenade. Primjerice, postoji izložba brazilskog baroka koja se ne povezuje s portugalskim barokom. Ne samo da su Portugalci putovali po svijetu već su ovamo dolazili raditi talijanski arhitekti, kao i mnogi arhitekti iz srednje Europe. Nakon revolucije, nakon što su se ljudi počeli zanimati što se to ovdje zbiva, u jednom vrlo posebnom europskom kontekstu, u vrijeme borbi u Italiji, La lotta continua i sličnih, te velikih pokreta u Francuskoj, postalo je važno biti viđen. Ljudi su na neki način otkrili da ovdje ima i arhitekture i arhitekata. Uslijedile su mnoge publikacije i mitske ideje, posebice o školi 'Oporta', zbog mnogih radova ljudi koji su potekli iz te škole. To je postalo malo mitologički, ne baš posve točno, pa smo stoga odlučili ne prihvatiti tu mitsku ideju. Što je škola 'Oporta'? To je škola s profesorima i studentima, s različitim pristupima arhitekturi, različitim stremljenjima. To je sredina za proučavanje arhitekture i raspravu o njoj. Suprotna je ideji monolitske škole jedinstvenog stila.

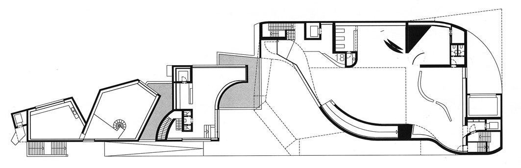
ORIS: Rado bismo rekli nešto o našim dojmovima i osjećajima nakon posjeta čajani 'Boa Nova'. Neki dan smo ondje proveli večer, što je za nas bilo sjajno iskustvo. Krenuli smo pješke od bazena Leça da Palmeira u zalazak sunca, preko vjetrovite promenade. Jak vjetar dolazio je s oceana. Večerali smo zatim u čajani, a tih nekoliko sati boravka tamo za nas je bio zaista užitak. Nakon toga se može racionalno razmišljati o mnogim stvarima koje tamo vidite - o odnosu između izgrađenog i prirodnog, o odnosu vas i Wrightove arhitekture dok ste bili mlad arhitekt, o dinamici tamošnjih prostora, o otvorima koji su poput okvira za golemi oceanski krajolik... Sva su nam osjetila bila pod utjecajem tih prostora, duboko su nas dirnuli. Vaša je namjera sigurno bila stvoriti arhitekturu koja će ići preko racionalnog, koja će izraziti vaš tadašnji susret sa svijetom, vas kao mladog čovjeka. Ipak, iznenadilo nas je koliko je ta građevina zrela, posebice za mladića od 25 godina.
Siza: Nepunih 25. Vraća mi to sjećanje i pomalo budi nostalgiju. Već sam prije rekao da nas je Tàvora uvjerio da to sami napravimo, iako smo mi bili samo suradnici. On je otišao u svijet, a nama je rekao da to učinimo. Prije odlaska na put s nama je obišao lokaciju. Nas su bila četvorica mladih suradnika. Popeo se na malu uzvisinu i rekao: 'To mora biti ovdje'. Uplašili smo se jer se radilo o brdu kamenja s vrlo teškim pristupom. Počeli smo raditi, obilazili smo lokaciju i izradili projekt. On je došao na kraju, napisao tekst i mi smo pobijedili na natječaju. Radilo se o općinskom natječaju. Odmah su se pojavili i kritičari jer je projekt značio povratak korijenima. Ljudi su govorili kako se radi o glupoj zgradi kojoj je fasada na stražnjoj strani. No mi smo imali potporu općine, dovršili smo projekt za godinu dana i izgradnja je mogla započeti, no ja osobno nisam bio zadovoljan rezultatom. Možda mi je Wright već onda bio na pameti … Jednoga dana sam zaključio da problem leži u samom konceptu; morali smo ga promijeniti. Otišao sam kući i razmislio. Potom sam načinio nekoliko crteža - ne odmah, nego korak po korak. Postojala je ideja da se uđe u središnji dio koji gleda prema moru i povežu restoran i čajana na stražnjoj strani, kroz kuhinju, koja bi služila i restoranu i čajani. Moje kolege nisu bili sretni jer su više od godinu dana radili na tom projektu i nisu htjeli izgubiti svo to vrijeme. Otišli smo na razgovor s Tàvorom. Netko je rekao da bismo morali ponovo raditi sve nacrte, no on nas je pogledao i rekao: 'Ne, ovako bi bilo mnogo bolje'. Uvjerio je i druge, pa smo započeli s radom na novom projektu. Tijekom izrade ostao sam s jednim od njih - ostali su morali raditi druge stvari - i razvili smo projekt. To je čitava priča. Sjećam se izrade nacrta primjenjenih gradilištu, svakog koraka, svakog kamena. Izrađivali smo plan i postavljali oznake na tlu. Rekao bih: 'Ne, ovaj kamen će biti glavni, ovaj manji će ići ovamo', kao da ste kod krojača na probi. U to vrijeme, nije postojala želja da se sve brzo završi; bilo je dovoljno vremena da se sve prouči i potom izvrši. Govorim o 1957. godini, zgrada je izgrađena 1958. godine. Radnici su tada bili vrlo dobri. I drvo je također bilo iznimno dobro, afričko drvo. Sjajno su ga obrađivali. U gotovo isto vrijeme odvijalo se istraživanje pučke arhitekture. U njemu nisam sudjelovao, ali sam ga pratio. Počeo sam pratiti i druge stvari, ne samo pučku arhitekturu. U 50-ima su u Portugal počele pristizati informacije. U 30-ima nismo imali puno kontakata s Europom, a sada smo opet počeli primati više časopisa: Architecture d’aujourd’hui, jedini koji smo čitavo vrijeme dobivali; časopise iz Italije i Engleske; informacije o velikim raspravama i praksi u Italiji, o neorealizmu. Isto tako i o Franku Lloydu Wrightu, budući da je Bruno Zevi opet objavio Wrighta u svom časopisu. Sjećam se koliko sam se divio knjizi Henryja-Russella Hitchcocka. Doznao sam i za Alvara Aalta, uglavnom preko Italije. Otvorili su nam se novi načini razmišljanja i ja sam ih slijedio, istraživao ih. Smatram da projekt 'Boa Nova' nije znak zrelosti, nego znak velike koncentracije na rad, gotovo jedini rad u razdoblju tako bogatom ambicijama i susretima.
ORIS: U ovom projektu i u projektu 'Ocean Swimming Pool' može se iščitati strast prema mjestu. Vaši kasniji projekti također imaju jedinstvenu senzibilnost prema mjestu. Što je bitno kod mjesta vaših projekata? Pitamo vas to jer trendovi u suvremenoj arhitekturi idu u suprotnom pravcu: zgrade pokazuju sve manje i manje poštovanja prema svom prostornom kontekstu. Negdje ste bili rekli da je opsesija da se bude originalan u dizajnu nekulturna ili plitka. Rekli ste to u Immaginario d’evidenza. Bojim se da je većina današnje trendovske arhitekture upravo takva - ignorira lokaciju. Kako biste to komentirali?
Siza: Stvari se odvijaju onako kako ste ih opisali. Lokacije su, primjerice, nekoć bile vrlo mirna stvar. No sada se preobrazbe događaju vrlo brzo: eksplozija gradova, užurbanost, ritam tehnoloških promjena te želja za različitošću koja dolazi zajedno s prirodnom jednoličnošću, zbog tehnologije razmjene i globalizacije. To je postalo gotovo prirodno, no smatram da će se to promijeniti. U ovom trenutku ako ne pazite na kontekst, izgubit ćete pejzaž i njegovu snagu. Postoji i razmišljanje koje kaže: Ovo je suvremena situacija; ako je poričete ili se borite protiv nje, nalik ste Don Kihotu; ovo je sada naš svijet, a drugačije razmišljanje čista je nostalgija. Ja uopće tako ne mislim jer smatram da postoji snažna zaštita protiv spekulacije i destrukcije, zagađenje atmosfere, itd. Tu su i drugi protagonisti drugačijeg načina djelovanja; mnoge se stvari događaju, ne smatram da idemo u samo jednom pravcu.
ORIS: Smatrate li da bismo trebali ići za arhitekturom identiteta? Postoji snažno izraženo mišljenje koje se protivi arhitekturi identiteta.
Siza: Da, postoji. Ljudi to smatraju nostalgičnim stavom. Mnogo sam to puta čuo od kritičara. Morao bih razmisliti o tome, no nisam uvjeren jer čak i kada imamo daleko intenzivnije aktivnosti i odnose, to je vrlo dobro. Tako je uvijek bilo i kroz povijest. Svaka civilizacija dobiva svojim kontaktima. Zamislite kakav je utjecaj na Portugal imao susret s indijskom kulturom i arhitekturom - nastala je potpuna promjena i svojevrstan ushit. Ili pogledajte Japan! Što je japanska arhitektura značila za Franka Lloyda Wrighta, nizozemske arhitekte ili što je afrička umjetnost značila za Picassa, japanski bakrorezi za Van Gogha, itd. Kultura može živjeti svugdje gdje ima takvih utjecaja, kontakata. Ako ih nema, mrtva je. No to ne znači da će sve postati isto i da povijesni dokumenti nisu važni. Povijest arhitekture je više povijest kontinuiteta nego prekida. Epizodno gledano, prekida je bilo, s dobrim razlogom. No ako krenemo malo dalje, vidjet ćemo kontinuitet. Ponekad čak ide i unatrag, što mi se ne sviđa, no u biti postoji kontinuitet i to je još uvijek bitno. Danas postoji vrlo snažna tendencija stvaranje tabulae rase. Radi se o iskustvu koje je već doživljeno i proklamirano 30-ih godina.. U isto vrijeme činjenica je da se odjednom iz ekonomskih ili političkih razloga pojavljuju ogromni gradovi: Šangaj je doživio potpuni preobražaj, mnogo je stvari uništeno. Taj je pokret toliko jak da uništava sve - poput erupcije ili katastrofe. No na koncu se ne radi o katastrofi, jer se radi o usponu jedne civilizacije koja se naizgled zaustavila. Ne smatram da stvari danas mogu proći tiho i da ćemo odmah dobiti mir koji ste opisali - promatrati more. Svijet prolazi kroz velike trzavice. No odbijam zbog toga biti pesimističan.

ORIS: Kako biste reagirali da dobijete narudžbu iz Šangaja? Recimo, narudžbu za veliki korporacijski neboder, jednu generičku zgradu?
Siza: Prvo bih pažljivo razmislio o tome. U većini slučajeva narudžbu vjerojatno ne bih prihvatio iz zdravstvenih razloga i pomanjkanja energije (73 su mi godine). No ako bi me nešto zaintrigiralo, prihvatio bih. Radio sam projekt u Južnoj Koreji, što mi je bilo fantastično iskustvo iz više razloga. Kao prvo, rekao sam da neću ići tamo. Zamolio sam klijenta da mi pošalje mnogo video snimaka i podataka kako bih osjetio ozračje, ne samo građevina nego i ljudi, pa i saznao što se tamo zbiva. Izradio sam projekt i investitor je došao ovamo. Razgovarali smo o idejama i shvatio sam da su naručitelji vrlo kompetentni. Zgradu su izgradili vrlo brzo i vrlo kvalitetno. Lokacija je prekrasna - radi se o dvorani za izvođenje glazbe u parku - za odmor. Trenutno radim zgradu za Seulsko sveučilište. Isto su tako profesori došli ovamo, atmosfera i kontakti bili su vrlo dobri. Koliko znam, a poznajem dosta arhitekata koji rade u Kini, u Šangaju je mnogo teže, nije toliko privlačno. Njih zanima imidž, što se može vidjeti u natječajima, pa čak i arhitektonskim časopisima. Na natječajima imidž obično pobjeđuje. Oni koji odbiju prezentirati zapanjujući imidž s fantastičnim virtualnim efektima za njih nisu bitni; takvi nemaju šanse za uspjeh. Natječaji traju vrlo kratko, onoliko koliko je potrebno za izradu imidža, a ne građevine. U Šangaju bi bilo teško.
ORIS: Jednom ste bili rekli da arhitekti samo transformiraju stvari. Input različitih arhitekata i arhitekture mora biti važan. Ako se vratimo bazenu kraj oceana u Leça da Palmeira, što je tamo bio input? Radi se o vrlo specifičnom djelu.
Siza: Da, drugačije je, manje ovisi o brizi za detalje i izradu, na neki način je šire. Kad sam radio bazen, tamo je bilo stijenje, a ideja o izradi bazena je već bila u tijeku. Zamoljen sam da napravim instalaciju. Moja je namjera bila ne izraditi geometrijski pravilan bazen, nego iskoristiti stijene, a onda jednostavno postavljati zid ovdje ili ondje. Granica bazena bit će stijenje koje će se reflektirati. Zatim sam izgradio vrlo nisku kuću za garderobe kako bi prolaznici mogli uvijek vidjeti more i plažu. Napravio sam je tamnom kako bi se kupači mogli spustiti rampom iz prostora u kojem nema mnogo svjetla, a kad bi izašli, došli bi pred zid, okrenuli se i - hop! - bili bi na otvorenom. Takva je bila ideja. Razvoj te ideje bio je postupan. Sjećam se da je ovdje bilo stijenja, a ja sam napravio zid kako bih omogućio zaštitu prema sjeveru. Vrlo dobro se sjećam da mi je, kad sam to napravio, palo na pamet ono što sam vidio u knjizi Henry-Russell Hitchcocka, mislim da je to bio projekt 'Taliesin'. Razvoj detalja ovdje: radi se samo o betonu i drvu zato što je lokacija vrlo zahtjevna u smislu materijala, vrlo teška. S jedne je strane zaštićena stijenama, no s druge je otvorena. Korak po korak, razvio sam te prostorije definirane prirodom. Ako postavim nešto ovamo, to mora biti potpuno autonomno i strogo geometrično. No morao sam paziti gdje ću dodirnuti prirodu, gdje ću dodirnuti kamen. Put koji je vodio do bazena je samo na nekim mjestima potpomognut s dvije ili tri stepenice kako bi bio ugodniji, no veći dio puta sastojao se od prirodnog kamenja. Na neki način, zajedništvo s krajolikom postoji, no radi se o cjelini u potpunosti kontinuiranoj i autonomnoj.
ORIS: Govorite o ranom projektu, no u jednom od svojih intervjua rekli ste 'Svi moji radovi uvijek su sa mnom'. Je li moguće usporediti vaš posljednji rad, 'Iberê Camargo Foundation' u Porto Alegreu sa kućom Beires u Póvoa de Varzim iz 1976. godine? Obje imaju određenu dvojakost: jedna strana je glatka, druga je naborana, gruba. Postoje neke bitne teme koje se uvijek iznova pojavljuju u vašim radovima. Kako biste vi opisali te ključne teme?

Siza: Ljudi me ponekad znaju upitati: 'Koje vam je djelo najdraže?'. Ja im kažem da ne znam jer sva u mojoj glavi čine jedno djelo; to nije razdvojeno. Razmišljam i učim o arhitekturi, to će trajati dok se jednog dana ne zaustavi. Ako se neke stvari vrate - ideje, detalji ili što već - u nekom kasnije djelu, to je normalno. To je u mojoj glavi i danas i jučer. Koje stvari smatram važnijima? Ne ovisi to o mojim željama, nego o uvjetima mjesta na kojem radimo. Primjerice, zašto je kuća Beires toliko puna kontrasta? Prvi razlog je vrlo prozaičan. Prije nje izradio sam kuću koja je okruživala drvo u patiu. Gospođa investitorica mi je rekla da i ona želi takvu kuću s patiom. Rekao sam joj da je to nemoguće jer se radi o maloj lokaciji, ne mogu napraviti patio jer za njega nemam mjesta. Ona je insistirala. Morao sam izgraditi pravokutnik, nije bilo druge mogućnosti uz takva ograničenja. Rekao sam si da bih mogao 'razbiti' dio oboda kuće i napraviti nešto nalik patiu. Napravio sam kuću vrlo otvorenu prema van, vrlo jednostavnu i geometričnu. Gospođa je bila zadovoljna: 'Konačno imam patio'. Postoji još jedan razlog. Prije toga sam blizu izgradio još jednu kuću, kao i neke druge u kojima sam mogao napraviti patio. Bile su vrlo otvorene prema eksterijeru, prema patiu i zatvorenije prema ulici. To je uzrokovalo reakcije tipa 'slijepa kuća', 'zašto zatvarate kuću prema ulici, asocijalni ste'. Razmislio sam o tome i shvatio da, gradeći na način na koji sam tada gradio, nije bilo nikakvih drugih šansi osim tih rezidencija na periferiji, u urbanim područjima, gdje ste imali puno, uglavnom užasnih, objekata. Postavljao sam obranu od te grozne atmosfere i stvarao mali raj unutra, no tada sam pomislio da to nije pametno; živio sam usred tih stvari, nisam to mogao poreći. Ja bih u tom svom raju bio vrlo melankoličan. Kad sam to učinio, odlučio sam u potpunosti otvoriti kuću. To je moj život, možda je grozan, ali ja tu živim, odnosno ta gospođa tu živi. Što se tiče veze između kuće Beires i muzeja u Porto Alegreu… Nikada nisam razmišljao o tome što ste rekli, no doista se u ovom slučaju ne radi o krivulji nego o modulaciji. Zašto? U biti, morao sam izgraditi cjelinu, a imao sam pred sobom rijeku veliku poput mora. Prostor je bio reduciran, s velikim razlikama u razinama. Uokolo je bilo sve puno prekrasnog zelenila. Nisam želio u to dirati jer je nemoguće nanovo napraviti tako prelijepu cjelinu. Problem je bio u tome što sam morao imati pristup izložbenim prostorima uz obronak brda, no nisam mogao napraviti prilaz s ceste, pa sam stoga morao napraviti zakretanje paralelno s pristupom. To se nije moglo izvesti na drugačiji način. Pri projektiranju, dok sam zamišljao veliki kamion koji se penje uz tu cestu, zavoj mi se činio vrlo snažnim. Nakon toga su došle rampe. Napravio sam veliki unutarnji prostor. Vjerojatno ćete reći, a i istina je, da je nalik Guggenheimu. No pola rampe je unutra, a pola vani, dok su prostorije pravokutne. U eksterijeru možete vidjeti male prozore. Mali su, no ipak vidite rijeku, a postoji kut iz kojeg se može vidjeti čitav grad. Te 'ruke' (rampe) čine vanjsku cjelinu, tako da ste pri dolasku okruženi tim velikim strukturama, a zatim ulazite. To sve nije došlo tako brzo kao što vam ja to govorim. Sjećam se prve svoje ideje: ući na višoj razini i onda napraviti mostić, kao u nekim kućama u Kaliforniji. No nisu mogli kupiti zemljište - bila je to vrlo skupa stambena četvrt. Za tu ideju imao sam na umu prekrasni lift u Baixai u Lisabonu. Mi uvijek povezujemo stvari, ideje dolaze postupno, neke odumru, ali druge dolaze. Treba vremena. Problem današnjih arhitekata je što neki ljudi smatraju da ideje dolaze same od sebe. Ideje prolaze vrlo krivudavim putovima dok ne nađu jasan smjer.

ORIS: Vratimo se na vašu ideju da arhitekti ništa ne izmišljaju, nego da samo transformiraju stvarnost.
Siza: Možda inženjeri mogu izmisliti nešto, arhitekti ne izmišljaju. Oni uvijek slijede ono na čemu se već eksperimentiralo. Mi se bavimo novim stvarima, no nikada ne napravimo otkriće. Prvi automobili imali su oblik kočije.
ORIS: Ustvari, sva arhitektura prolazi kroz filtar arhitektove osobnosti. Biste li rekli da je ona portret arhitekta?
Siza: To može biti reakcija na portret koji on ima u nekom trenutku. Postoji jaka potreba da snažno osjećamo ići drugim putem. Naše iskustvo je korisno, no to nije put do novog projekta, jer novi projekt uključuje druge ljude, gradilišta, uvjete, ozračje među ljudima. To ima utjecaja na nas. Mi imamo svoj identitet, no u svome radu smo otvoreni za stvari koje dolaze izvana, puno više nego za stvari koje dolaze iznutra. Postoji stabilnost, no postoji i prijemljivost.

ORIS: Tijekom našeg boravka u Portu posjetili smo 'Bouçu', projekt socijalnog stanovanja koje ste pokrenuli prije više godina. Možemo li sada razgovarati o socijalnoj ulozi arhitekture? Moramo reći da nas je i projekt 'Évora' zadivio jer je tu jasno da postoji kontinuitet s obzirom na spontanu postojeću arhitekturu, veliko poštovanje prema načinu na koji su ljudi sami gradili. Ono čemu se zaista divimo u vašem projektu je skromnost koja postaje vrlina arhitekture. Kao što ste rekli na primanju nagrade 'Pritzker', vi ste oduvijek bili komunistički arhitekt iz Matosinhosa.
Siza: Nisam to rekao.
ORIS: Pisalo je u jednom časopisu. Niste to rekli? Možda vas je netko drugi opisao takvim.
Siza: Nisam znao da je to napisano. Prije nekog vremena objavljen je intervju s Gregottijem u časopisu Casabella o portugalskoj arhitekturi. Intervjuirali su i mene o odnosima s talijanskim arhitektima jer smo Gregotti i ja prijatelji dugi niz godina. Prije nego što je tekst objavljen, poslali su mi ga na provjeru. Pročitao sam ga i otkrio rečenicu koju nije izrekao Gregotti, nego sugovornik na intervjuu, a koja kaže da nisam ništa drugo nego komunistički arhitekt. Nazvao sam ih i rekao da to nisam baš razumio i da to nikada ne bih izrekao iz više razloga. Prvi je razlog taj što nisam lud. Kako bih mogao otići u SAD i reći da sam komunist? Smjesta bi me odbili, bez nagrade, čak i bez ovjere putovnice. Dakle, nisam to mogao reći. Druga stvar je da se ne želim, ni u kojem slučaju, predstavljati komunističkim borcem jer u stvarnosti nikada nisam imao tajni borbeni život koji su mnogi imali (moj prijatelj fotograf je, primjerice, bio u zatvoru), pa bi predstavljalo ne samo ogroman manjak poštovanja nego i samopoštovanja kad bih se predstavljao kao komunistički borac, bez obzira na moj pristup političkoj sceni. Nikada nisam bio borac, nikada nisam bio u zatvoru, radio sam na projektima dok su se drugi borili i patili. Rekao sam im da objave intervju, ali bez tog dijela. Potom sam razgovarao i s Gregottijem, pa mi je i on rekao kako ne razumije da bih ja mogao izgovoriti tako nešto.
ORIS: Projekt 'Évora' trajao je dvadeset godina. Je li se tijekom tog vremena puno mijenjao?
Siza: Sve su zgrade napravljene u prvom koraku. Na nesreću, infrastruktura nije. Mislim, bila su mjesta rezervirana za bolnicu, crkvu, sportsku dvoranu... Mnoge nisu nikada izgrađene. Razlog je taj što se radilo o komunističkoj upravi, a središnja je vlada davala novac, no manje komunističkoj upravi. Kasnije su izgubili izbore. Novoj se vlasti nisam svidio, tako da je projekt stao. Kuće su se počele mijenjati, kao na primjer stvari koje su bile u potpunosti ispravne i još uvijek postoje, poput drvenih prozorskih okvira. Svaka bi izborna kampanja to žestoko napadala: pokušavali su nas nagovoriti da koristimo aluminij, a ne drvo, itd. Postoji i normalna prilagodba ljudi na zgradu - primjerice, patio; glavna je ideja bila staviti pergolu, koja je također tradicionalna, no neku su ljudi tu posadili drvo, neki ga popločili mramorom, a neki stavili betonskog lava. Dosta je tu stvari: neki su kuće obojili u ne baš krasne boje, no to se prilično konsolidiralo čak i bez infrastrukture. Po meni tu zajednicu čini iznimno konsolidiranom jednostavna povezanost s gradom.
ORIS: Tu se postavlja i pitanje participacije. Radili ste s budućim korisnicima, razgovarali sa stanovnicima o projektu, a jednom ste rekli da je veliki gubitak što je participacija tako brzo zaboravljena u našoj profesiji. S druge strane, rekli bismo da je dijalog s klijentima obiteljskih kuća, građanskim klijentima, nužnost za svakog arhitekta. Možete li to komentirati?
Siza: Bilo je to nakon revolucije, 1974. godine. Takav rad ranije nije bio moguć. Imao sam nešto iskustva u projektiranju obiteljskih kuća. Jedna od zanimljivih stvari kod toga je da obično imate sugovornika. Kod obiteljskih kuća obično razgovaramo s vlasnikom, suprugom, susjedima… Postoji bogato ozračje i motivacija da se projekt izradi na odgovarajući način. Socijalna stanogradnja je prije tog vremena, a i sada opet, bila vrlo siromašna, napravite X kuća s tri sobe i Y s dvije sobe, ne znate tko će u njima živjeti, itd. To je vrlo siromašno za arhitekturu, za disciplinu. Razlog siromaštva većine socijalnih kuća jest upravo nepostojanje dijaloga, motivacije niti jasnog cilja. Bio je to naporan posao u ono vrijeme. Atmosfera u Portugalu bila je puna sukoba. Većini arhitekata je to postalo neugodno, stoga smo više radili sa studentima u timovima. Bilo je vrlo neugodno objasniti i obraniti svoje ideje pred tristo ljudi koji vam govore da niste ništa drugo nego buržoaski arhitekt. Osim što je bilo teško i neugodno, bilo je i loše plaćeno. Socijalna stanogradnja se uvijek loše plaćala. Svaka zemlja skida od normalnog honorara 20 do 30% jer se radi o socijalnim stanovima, dok ja smatram da bi honorar upravo zato trebao biti 30% viši. Isto tako, to nije bilo u modi; arhitekti koji su radili na takvom projektu smatrani su lošim arhitektima. Ne bez razloga, jer su neke grozne stvari napravljene u tim programima koji su vjerojatno bili izgovori za lošu arhitekturu. Imam iskustvo sa sličnim projektom iz Nizozemske, no na drugačiji način, nizozemski način, s više discipline i potpore. Bio je to vrlo zanimljiv projekt. Moj prijedlog je odobren uz potporu korisnika, budući da ga tehničari nisu htjeli odobriti. Prijedlog je rješavao tadašnje probleme ljudi onako kako su mi ih opisali. Projekt nije odobren, sve je proslijeđeno parlamentu, gdje su ga na koncu odobrile stranke desnice. Nevjerojatno - nisu ga odobrile stranke ljevice. Za mene je to bilo tužno.

ORIS: Sad nešto vezano za taj projekt socijalne stanogradnje za imigrante u Hagu, posebice u zgradi De Punkt en De Komma. Tamo ste nadvladali sve tehničke probleme i programske specifičnosti stanara. Možete li objasniti specifičnosti projekta?
Siza: Imigranti su činili 50% stanovništva u tom području. Bilo je sukoba i problema. Većina je imigranata bilo islamske vjeroispovijesti. Njihova tradicija traži da imaju privatnost u svojim kućama. Jedan od njih mi je objasnio: 'Ako dovedem kući prijatelje, ne želim da vide moju suprugu'. Isto tako nisu htjeli uobičajenu stvar u tamošnjim socijalnim stanovima: otvorite ulazna vrata i tu vas čeka WC. Uprava je htjela udovoljiti imigrantima jer bi sljedeće godine mogli glasovati za njih. Predložili su da naprave dio kuća za muslimanske obitelji i dio za druge. Ja sam to odbio jer bi se radilo o dvostrukoj segregaciji. Morali smo pronaći zgradu koja bi bila dobra za sve. Projektirali smo hodnik s kliznim vratima kojima se može odvojiti društveni dio kuće od privatnog dijela. Postoji pristupni prostor, ustvari dvostruki prostor s kliznim vratima. Svidio se svima, budući da su time Nizozemci dobili malo više prostora u kući, a drugi su si mogli organizirati život. Jednostavna bi kritika tvrdila da je to reakcionarno jer što je onda s pravima žena i razvojem društva? Odgovorio sam da ne možemo reći tim ljudima da se promijene preko noći. Oni su stoljećima živjeli u drugačijoj kulturi. Suludo je tvrditi da je to reakcionarno. U dvije generacije, možda čak i u jednoj, oni će se promijeniti jer će imati drugačije iskustvo života. No mnogo je ljudi koji to ne razumiju ili ih to ne zanima. Mogao sam to napraviti i u drugoj grupi zgrada nedaleko odande, no one su tada već bile dovršene. Ne mislim da bi to imalo utjecaja na budućnost. Usred projekta, što je bilo vrlo zamorno budući da sam imao ured u Amsterdamu, administrator mi je rekao da su uredili mali park između tih zgrada i podzemnu garažu. @eljeli su da napravim još dvije kuće i trgovinu biciklima s pristupom garaži. Trebalo je napraviti znak intervencije, vrlo specifičnu građevinu. Toliko mi je dosadilo projektiranje stanova, da sam u jednoj noći napravio jedan 'ludi' projekt, no s razlogom. U Nizozemskoj sam naišao na vrlo staromodnu raspravu o bijeloj i ciglenoj arhitekturi. Bila je to intenzivna i autentična rasprava iz 30-ih godina: modernisti su bili bijeli, dok je amsterdamska škola na to reagirala ciglama, na stari način. U Njemačkoj je cigla također bila stara, a bijelo eksplozivno, no to je bilo davno. Odlučio sam napraviti jednu zgradu od cigle i jednu bijelu kako bih dokazao da zajedno mogu tvoriti cjelinu.
ORIS: Naglašavate važnost stvarnosti, baratanja realnošću. U svojim govorima o podučavanju negdje ste rekli da podučavanje arhitekture mora biti stvarno. Bojimo se da je takav stav u suprotnosti sa sustavom zvijezda u arhitekturi. U mnogim slučajevima nastavu više ne zanima stvarnost.
Siza: U mnogim slučajevima ne. U neku ruku stvaraju se drugi instrumenti koji kontaktiraju sa stvarnošću. U praksi nekih važnih arhitekata možemo vidjeti što se mijenja u kontaktu sa stvarnošću. Doista je potrebna mjera, krhka ravnoteža. Podučavati arhitekturu je zanimljivo, mogu se uključiti sve stvari. Ako ne dođu u kontakt s njom u školi, mnogi ljudi dolaze u kontakt sa stvarnošću vani, što može dovesti do različitih problema. No ipak, arhitektonska djela na koncu ovise o onome što je stvarno. Neki ljudi počinju s virtualnim crtežima, sve je vrlo lijepo, potom dobiju prvi, drugi, treći posao i možete vidjeti kako se stvari mijenjaju.
ORIS: Vaša crkva Santa Maria u Canavezesu vrlo je poetična, no vi ste opisali mnoge njene detalje kroz vrlo stvarne, svakodnevne stvari, poput osobe koja izlazi, puši ili promatra kroz vodoravni prozor život grada…
Siza: Da, to su sve vrlo važne stvari. Postoji specijalizirana ideja religijske arhitekture, no rezultati su obično loši. Pjesma vam ne dolazi zato što vi želite biti pjesnik, ona dolazi jer postoje uvjeti za nju.
ORIS: Vezano za Santa Mariju, William Curtis uspoređuje Canavezes i Le Corbusierovu kapelicu u Ronchampu smatrajući da obje uvode društveno značenje kroz crkvu, uvode koncept koji stvara društvenu strukturu, društveni centar pomoću vjerskih građevina. Rečeno je da je vrlo važna stvar horizontalni usjek u tijelo crkve; radi se o vrlo visokom, prostranom, spiritualnom prostoru, no kad netko sjedne, obzor se otvara kroz horizontalni prozor koji na neki način nudi opuštanje ljudima koji su unutra. Ali postoje druga pitanja vezana uz crkvu: tajna visokih vrata, mjerilo (budući da se radi o vrlo visokom prostoru), kip Marije koji je na razini ljudi. Vi ste također radili kao kipar i crtač; vaši su crteži na pločicama također vrlo karakteristični za tu crkvu. Biste li rekli da je crkva u Canavezesu ključan projekt u vašem radu?
Siza: Projektiranje te crkve i njezina izgradnja bili su za mene dobro iskustvo, pravo zadovoljstvo, prvenstveno zato što je svećenik bio fantastična osoba. Više nije svećenik, priprema magistarski rad iz filozofije na temu arhitekture. Stvarno se koncentrirao na taj projekt, tim više što je bilo problema s njegovim prihvaćanjem. Crkvena hijerarhija je tvrdila da sam ateist. Pitao sam ih kako znaju, budući da to nikada nisam rekao. Svećenik se jako borio za to da se meni dodijeli projekt, čak je prijetio da će napustiti župu. Nešto kasnije su me prihvatili, možda zato što je biskup doznao da mi je sestra redovnica, što je jako pomoglo. Svećenik je stvarno osnovao zajednicu, aktivnu zajednicu, i to ne samo vjersku, nego i kulturološki organiziranu, s izložbama, slikarima-amaterima, kazalištem, pravu zajednicu. Upoznao me s teolozima iz Porta. Vodili smo vrlo zanimljive rasprave, budući da je crkva izgrađena u teško vrijeme za arhitekturu, katoličku arhitekturu, nakon što je Drugi vatikanski koncil mnogo toga promijenio. Mnoge stvari u povijesti sakralne arhitekture sada ne služe ničemu. Ne možete napraviti zlatnu, bogatu apsidu ako joj okrećete leđa. To je zanimljivo u današnjoj crkvenoj arhitekturi. Teolozi su isto bili vrlo zanimljivi jer su na neki način nastavljali s raspravama, ali bilo je neslaganja. Bilo je dosta napetosti unutar Rimokatoličke crkve jer je nastala neka vrst praznine. Prvi eksperimenti nakon Drugog vatikanskog koncila bili su usmjereni ka izgradnji crkava nalik na amfiteatre ili kružnog oblika, s idejom demokracije i sudjelovanja. Nije mi se svidjela takva orijentacija arhitekture jer je nešto u atmosferi nedostajalo. U amfiteatru se nisam osjećao sposobnim koncentrirati, vjerski ili bilo kako drugačije, na svoje intimne probleme, jer je amfiteatar mjesto za rasprave. Odgojen sam u katoličkom duhu, svake smo nedjelje išli na misu i imao sam mnoga sjećanja na dječje osjećaje poput nelagode jer je crkva bila vrlo mračna, tužna i zatvorena, imao sam potrebu izaći van za vrijeme propovijedi, a poslije izaći zapaliti cigaretu, kao što su to odrasli činili, samo u tajnosti. Sve mi se te stvari vraćaju; koliko su samo tajnoviti za mene bili crkveni prozori. Zbog svih tih misterija i strasti smatrao sam da ima smisla postaviti prozore vrlo visoko. Primjerice, prolaz u sredini, za koji neki tvrde da je previše konzervativan, kako mi je to objasnio jedan teolog. Imao sam pristup obližnjem oltaru, no rekli su mi da bi morali ići tako da prođu pokraj svih ljudi i pozdrave ih. To su, dakle, bile funkcionalne stvari vezane za vrlo staru upotrebu, kulturu, rasprave i tako dalje, koje sam htio uključiti u svoje promišljanje. Vodoravni prozor… Crkva se nalazi na vrlo visokom mjestu koje gleda na prekrasnu dolinu. Druga ideja bila je potreba za slobodom - izaći van na trenutak, baciti pogled. Jedna mi je gospođa rekla da se ne može koncentrirati u crkvi. Sviđa joj se, samo taj prozor... Ako se stvarno želite koncentrirati, ne gledate kroz prozor. To je jedno od mojih zanimljivijih sjećanja na čitav taj proces.

ORIS: Čini se da niste bili toliko zainteresirani za simboličke elemente koliko za stvari koje ste opisali - svjetlo, vodu, zvuk vode, što stvara atmosferu koja je daleko produhovljenija i poetskija. Kako vidite odnos između poetskog i simboličkog?
Siza: Mnogi su mislili da sam tu htio uvesti stvari koje bi bile simboličke. Smatram, međutim, da simbol nije nešto što stvarate, već je nešto što se konkretizira kroz život i iskustvo. Imao sam taj problem, odnosno preokupaciju. Sjećam se da sam svećeniku postavio mnogo pitanja o simbolima. Kupio sam knjige o simbolima. Svećenik mi je rekao da ne razmišljam o tome jer to nije bitno. Rekao mi je da danas nije toliko važno da oltar gleda prema istoku. Ipak, okrenuo sam ga prema istoku. Znao sam da moram postaviti neke stvari, kao npr. križ, lik Djevice Marije, no svećenik mi je rekao da ne želi puno stvari, samo Majku Božju i križ. Pokušao sam pronaći nekoga tko bi mi napravio križ. Nisam htio staviti stari križ. Križ u staroj crkvi nije bio dobar. Bio je loš, izrađen 20-ih godina. Potom sam vidio radove lokalnih kipara i slikara, no pomislio sam kako postoji pogreška u vjerskoj umjetnosti, tako da sam ga odlučio sam izraditi. Moji prvi pokušaji bili su katastrofa. Shvatio sam zašto ne rade dobre stvari. Crkva je otvorena s posuđenim križem jer ga ja nisam znao napraviti. Svećenik mi je rekao da si uzmem vremena koliko želim. Nakon toga uslijedile su rasprave kamo smjestiti križ, koji je prije bio u središtu, između dva prozora. To mi se nije sviđalo, djelovalo mi je previše osovinski. Dvije godine sam iskušavao različite stvari. Napravio sam mnoštvo skica. Na kraju smo se odlučili za zlatni križ. Kad ga vidite, imate dojam da je na njemu tijelo. U katoličanstvu križ obično na sebi ima i tijelo. Kod protestanata to nije slučaj. Morao sam naći nešto što podsjeća na tijelo. I vrata, velika vrata. To je također sjećanje na posjet svetištu Monreale kraj Palerma. Kad sam došao tamo, vrata su bila otvorena, ogromna vrata. Na kraju se nalazio mozaik Krista Pantokratora. Prekrasno, nezaboravno. Zlatni mozaik. Morao sam realizirati tu ideju ogromnih vrata. Kad dođe vrijeme, otvaramo vrata i puštamo ljude unutra.
ORIS: Možete li nam reći koliko su arhitektima važni crteži? Naš časopis pripremio je izložbu skica arhitekata. Svakog arhitekta o kojem smo pisali zamolili smo da nam izradi za izložbu originalnu skicu napravljenu rukom. Uočili smo kako mnogi mlađi arhitekti uopće ne uzimaju olovku u ruke, nego su nam samo poslali neke stvari s računala ili deklaracije. Crtež gubi važnost koju je imao još prije dvadesetak godina. Pa ipak, postoji izravan prijenos između uma i ruke. Vi cijelo vrijeme crtate. Što vi mislite o tome?
Siza: To mi se sviđa. Ustvari, ja sam frustrirani kipar. Htio sam biti kipar. Slikao sam prije odlaska u školu, slikao akvarele… Stalno crtam. To je zadovoljstvo, a predstavlja i oslobođenje. Kao što znate, arhitektura je težak posao. Najljepši tekst koji poznajem napisao je Aalto, u kojem piše: 'Ponekad dok radim na projektu, blokiram se. Zatim stanem i crtam, slikam, ne razmišljam o projektu. Ponekad iz toga nastane ideja koja mi omogući nastavak projekta.' To je oslobađajuća stvar: toliko ste opsjednuti raznim problemima - ekonomskim, funkcionalnim i drugim - da se vrlo jednostavno zablokirati, pa je ovakvo zadovoljstvo dobrodošlo. To je, osim toga, najbrži način komunikacije; kada radite s nekim i želite mu pokazati što želite ili želite sebi nacrtati shemu, možete je nacrtati u sekundi. Na računalu takvih izravnih vježbi nema. Kao instrument arhitekture crtež je nezamjenjiv. No može biti i porok. Skica je samo skica. Ljudi ponekad žele od mene skicu, a ja im to nisam u stanju dostaviti, to je nešto spontano. Slika je druga stvar, slika je razrađenija. To je vrlo oslobađajuće i vrlo izravan oblik komunikacije, sa sobom i sa drugima.
ORIS: Napravili ste i mnoge modele.
Siza: Da, kako bih uštedio na vremenu. Moramo mentalno stvoriti prostore i prolaziti njima. To možete postići i bez ikakvih crteža; projekt možete izgraditi i mentalno. No za to je potrebno puno više vremena i napora. Ako možete izraditi model u koji možete ući, to nije jednako dobra stvar kao sama zgrada dok se gradi. No ako imate više projekata, ne možete toliko ići okolo. U svom uredu imam modele - velike ili male, ovisno o fazi - no u fazi izvršnih nacrta, čak i prije njih, morate imati kontrolu puno brže, puno rigoroznije. Virtualne slike nisu ista stvar, iako su korisne. Trenutno radimo na još jednom projektu u Koreji, na jednom muzeju.
ORIS: Možete li nam ga pokazati?
Siza: Ne, budući da ga ne razvijam u svom uredu, nego u uredu mog bivšeg suradnika koji je otvorio svoj ured; radimo to zajednički. Napravio je ogroman model. Možete sjesti u stolicu na kotačićima i ući u zgradu. Fantastičan je, ne možete ni zamisliti koliko vremena uštedi. Prije toga sam radio mnogo skica interijera, mnogo nacrta. No kod ovakvog modela možete ući u zgradu, što je fantastično, posebice ako ne možete otići na lokaciju, u ovom primjeru Koreju. No model mora biti ogroman.
ORIS: Projekt Portugalskog paviljona za Expo u Lisabonu, koji ste napravili 1998. godine, povezali bi s vašim ranim projektima, također izgrađenim blizu oceana, koji gledaju na more. U ovom slučaju radi se o rijeci, no ona je gotovo poput mora. Gledan s mora, vaš paviljon nalikuje na carski trijem. No s druge strane je više nalik velikom prozoru koji uokviruje pogled na more i obzor. Nalik je Portugalu, koji uvijek gleda na ocean s ruba Europe. Na neki način mi smo na drugom kraju Europe, na početku Balkana, također na periferiji. Možete li komentirati činjenicu života na periferiji? Je li to privilegija u ovo doba globalizacije ili još uvijek nosi sa sobom negativne konotacije?

Siza: To otežava stvari. Danas imate sva silna komunikacijska i transportna sredstva, no to još uvijek nije udobno kao da ste npr. u Švicarskoj, u središtu. Pročitao sam pismo koje je Le Corbusier poslao jednom svom prijatelju. Corbusier je imao izložbu svojih skulptura u Švicarskoj i komentirao je to ovako: 'Slušaj me, prijatelju, Le Corbusier je u središtu svijeta'. Bio je sretan zbog toga. Nije isto biti ovdje, no more je predivna stvar. Ne može vam biti bolje od ovoga. Globalizacija i turizam su krenuli tako atraktivno, no pretvorili su se u katastrofu. Uz to, mala zemlja ima više zapreka u uspostavljanju ravnoteže na svom teritoriju jer svi žele doći ovamo, sve je više turista, a njihova je koncentracija ogromna i destruktivna. No što se odnosa tiče, više nije kao u stara vremena, jer ne radi se samo o Europi nego o čitavom svijetu. Na primjer, lakše mi je otići u Brazil nego u Švicarsku. No sada bi zbog koncentracije zračnih luka vjerojatno morao prvo otići u Švicarsku kako bih došao do Brazila. To je kreativna zbrka, nadam se da je kreativna. No ipak, teško je živjeti na periferiji.
ORIS: Imali smo na umu pitanje autentičnosti malog mjerila koji su se izgubili u velikim europskim gradovima, koji postaju sve više nalik jedan drugome. No na ovoj ćemo periferiji još uvijek naći autentična mjesta, što smatramo privilegijom. Rekli bismo da u arhitektonskom smislu najzanimljiviji projekti ne dolaze više iz središta, nego s periferije.
Siza: Iza toga stoji duga priča. Pogledajte važnost Alvara Aalta. Bio je uspješan u Južnoj Europi upravo zbog nekih afiniteta. U vašoj zemlji također. Postoji vrlo snažna želja da se ode daleko, posebice ako se radi o maloj zemlji. U isto vrijeme postoji način da se okrenu leđa drugim stvarima koje su u tijeku. Povijest Portugala je takva: Španjolska, Pirineji, svijet. Smiješna je priča o Portugalu i Španjolskoj. Portugal je vrlo brzo dobio neovisnost, dok se ujedinjenje Španjolske dogodilo tek u 16. stoljeću. I to i zemljopis kazuju da se radi o dvije zemlje. Nedavno smo raspravljali o tome kako će Španjolska najvjerojatnije postati federacija. Mislim da će se to dogoditi, to nije problem; dapače, mi smatramo da je to dobro. Španjolci su otišli u Ameriku, na Zapad, a mi smo otišli na Istok.
ORIS: Postoji vrlo snažna mlada generacija portugalskih arhitekata. Vezano za ono što ste rekli o školi u Portu, možete li nam reći nešto o toj mladoj generaciji? Jeste li zadovoljni položajem mlade generacije u Portugalu?
Siza: Nisam zadovoljan time što ne pripadam mladoj generaciji. Od otvaranja zemlje očito je došlo mnogo utjecaja i kontakata izvana, posebice danas, uz sve ove programe razmjene studenata. Trenutno postoje mnoge tendencije i grupe; takva je opća atmosfera danas. Postoji traganje za odgovorima na trenutnu situaciju; mnogo je prilika za rad. Već i danas mnogi portugalski arhitekti rade vani, dok smo mi prije imali imigrante; situacija je bila obrnuta. To je također bilo iznimno dobro za arhitekturu. Dolazili su nam Talijani i ljudi iz Srednje Europe. Vi imate nešto slično u svojoj zemlji - koncentraciju kultura, snažnu mješavinu kultura.
ORIS: Koje mlađe portugalske arhitekte cijenite?
Siza: Mnoge, no ne želim navoditi nikakva imena jer bih mogao nekoga zaboraviti navesti. No mogu vam navesti ime jednog mladog arhitekta kojeg cijenim, to je Souto de Moura, sjajan arhitekt. No on više ne pripada mlađoj generaciji, samo je mlađi od mene. Ima i drugih koji obećavaju, i u Portugalu i izvan njega.