Puni krug
Godine 1949. Antonio Bonet stupa na tlo svoje domovine nakon trinaest godina izgnanstva zbog španjolskog građanskog rata. Za presjedanja u Barceloni, na putu prema Bergamu, kao argentinski izaslanik na vii. međunarodnom kongresu moderne arhitekture (ciam), dobiva zadatak projektirati kuću na području morskog rukavca La Ricarda, u priobalju katalonske prijestolnice. Ricardo Gomis i Ines Bertrand zaželjeli su prostranu kuću za odmor u blizini brojne rodbine i prijatelja.
Postupak projektiranja i izgradnje kuće, poznate kao Casa Gomis ili La Ricarda, sazrijevat će postupno i temeljito u suradnji i partnerstvu između arhitekta i vlasnika. Prvi nacrt predstavljen je sredinom 1950., a konačna verzija ugledala je svjetlo dana 1963., kada je projekt konačno i realiziran.
Godine 1949. Bonet ima 36 godina i mlad je arhitekt bogata iskustva. Početkom 1930-ih već surađuje sa Sertom i Torresom Clavéom, dvojicom najznačajnijih predstavnika španjolske racionalističke avangarde međuraća. Prije španjolskog rata i odmah nakon studija Bonet odlazi u Pariz želeći se pridružiti Le Corbusierovom atelijeru. Budući da nije mogao u prvom trenu raditi u Rue de Sevres, Bonet kao arhitekt pripomaže Sertu i Lacasi u privremenom postavljanju paviljona Republike Španjolske u Parizu 1937.
Upravo u Parizu, u Le Corbusierovu atelijeru, upoznat će čileanskog arhitekta i slikara Mattu Echaurrena, s kojim će blisko surađivati i zajedno projektirati čudesnu Maison Jaoul za francuskog majstora, a tu će se razviti i duboka povezanost s argentinskim arhitektima Ferrarijem Hardoyem i Kurchanom – s kojima će zajednički dizajnirati čuveni stolac bkf.
U jesen 1938. Bonet stiže u argentinski Rio de la Plata i pristaje u luci Buenos Airesa. Prvo što čine Bonet i njegovi argentinski prijatelji osnivanje je udruženja Grupo Austral po uzoru na gatcpac i ciam.

Od ovog trenutka pa tijekom idućeg desetljeća Bonet će izgraditi briljantnu karijeru i ostvariti potpun opus koji će obuhvaćati sve od dizajna namještaja, primjerice stolac bkf (ili Butterfly), do eksperimentalnih građevinskih projekata (niz stanova na uglu ulica Paraguay i Suipacha 1939.) i urbanističkih planova Buenos Airesa (Casa Amarilla iz 1943.), kao i opsežan rad na interpretaciji grada i integraciji prirode u urbanističkom projektu urugvajske Punta Ballene (1945. – 1948.). Kao vrhunac postupnog povratka, Bonet će se nastaniti u Španjolskoj 1963.
Pied à terre
Nakon sudjelovanja na ciam-u u Bergamu i po povratku u Buenos Aires, Bonet projektira prvu verziju kuće Gomis, u kojoj se ona oslanja na čvrst okvir stupova nosača i oblikovana je kao kompaktna forma. Arhitektova argumentacija bila je da podizanje radi pogleda na krajolik i odizanje kata zbog oscilacija podzemnih voda nije bilo dovoljno da uvjeri Gomisove. Oni inzistiraju na maksimalnom stupnju integracije u prirodu, mogućnosti uživanja u njoj i životu na terenu.
U svibnju 1953. Bonet putuje u Barcelonu kako bi predstavio idejno rješenje konačnog nacrta kojeg temelji na radikalnoj promjeni strategije prema prirodi. Predstavlja projekt nizom tlocrta i maketom. Prvi se nacrt ostvaruje na autonomnom modelu sojenice, a u drugome se kuća rastvara, raspršuje, tvoreći jedan difuzni organizam unutar svog okruženja. Čini se na prvi pogled poput metamorfoze prirode. No rezultat jest otkriće vlastitog duha prostora (genius loci).
Građevinski radovi na kući započeli su 1957., a završili početkom 1963. U tih šest godina korespondencija pismima i povremeni posjeti od velikog su značaja. Riječ je o djelu u nastajanju, u svakom smislu.
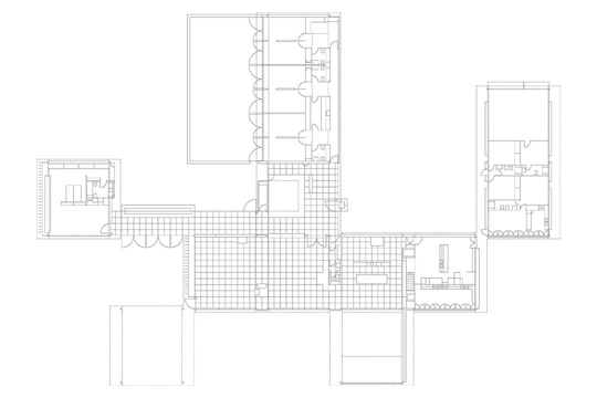
Kuća se oslanja na platformu koja tka mrežu od 9 puta 9 kvadrata dimenzija 8,80 x 8,80 metara koja definira kako zatvoreni tako i otvoreni prostor kompleksa. Zatvoreni dio kuće određuje dvanaest prostornih modula betonsko-keramičkog ljuskastog svoda koji nose četiri vitka čelična stupa.
Različite konfiguracije modula, zbog dodavanja ili podjela, određuju različite dijelove programa kuće, artikulirajući se slobodno na gore spomenutoj Kartezijevoj mreži. Sekvence dnevna soba – blagovaonica – kuhinja određuje južno orijentirani program, a krilo sa spavaonicama, garažu i kupaonicu, os more-šuma. Naposljetku, u samostalni paviljon smješta glavnu spavaonicu. Kvadratni modul također utvrđuje slijed i položaj raznih vanjskih prostora. Oni dobivaju važnost u povezanosti s glavnim prostorijama, pretvarajući se u međuprostore negdje na pola puta između interijera i okolne prirode. Tako dnevni boravak ima vlastiti svođeni trijem, pristup se oblikuje kroz impluvij nastao djelomičnim uklanjanjem svoda, dok dječje spavaonice imaju svoj atrij, a blagovaonica vanjski prostor.
Zahtjevna situacija povezanosti neovisnog paviljona i ostatka kuće rješava se mogućnošću transformacije ostakljene galerije u prepreku fizičkom prolasku ne narušavajući time prostornu povezanost naličja i lica kuće.
Od Citröhana do Dom-ina
La Ricarda je prvi Bonetov projekt u Španjolskoj, predstavljajući tako sintezu čitavog niza građevina kod kojih je primjena svoda u fokusu. Opetovana uporaba svodova u kući Gomisevih priziva arhetip svođenog hodnika minojskih grobnica ili tradiciju orijentalnog bazara. U stvarnosti je La Ricarda primjer odstupanja od Bonetova opusa. Prvi primjeri svođene kuće izgrađeni su u Martínezu, četvrti Buenos Airesa (1941.). kao sustav betonskih svodova na nosivim zidovima. Casa Berlingieri sagrađena u Punta Balleni (1947.) čini skup paralelnih svođenih prostora koji gledaju na Atlantski ocean. Raniji primjeri, kao što su Casa Daneri (1943.) ili kasnija Casa Cruylles na katalonskoj obali (1967.), primjenjuju plastičnije i, formalno gledano, riskantnije oblike. Kod La Ricarde formalna struktura pokrovnog elementa prelazi sa sustava bačvastih svodova bez zidova na sustav potpornja i savijenih ploča koje slijede profil svoda. Koristeći se terminologijom velikog francuskog majstora, La Ricarda se može razumjeti kao hibrid između Maison Citröhan i strukture Dom-ina, dva temeljna kanona koja je u svojim djelima rado rabio Le Corbusier.

Očuvanje materijala nasuprot detaljnoj obnovi
Krajem devedesetih godina prošlog stoljeća dobili smo priliku s Fernandom Alvarezom provesti pripremne radove čiji je cilj bio iscrpnom dijagnostikom utvrditi stanje očuvanosti La Ricarde. Protok vremena, uz naročito oštru morsku klimu i gotovo netaknuto izvorno stanje, omogućilo nam je, na temelju proučavanja, analize i grafičkog prikaza svih dijelova, formiranje dubokih saznanja nalik onima jednog arheologa koji radi s dobro očuvanim ostacima.
Jedan od prvih poteza, a opsegom vjerojatno i najvažniji, bio je tretirati svodove na način koji bi jamčio buduću trajnost čitave kuće. Krovne svodove ustvari čine dvije ljuske ili sloja: prvi unutrašnji strukturni sloj izveden kao svod od armiranog betona debljine 10 cm olakšan keramičkim elementima, te drugi vanjski sloj koji nose poprečni zidovi, a služi zatvaranju i vodonepropusnosti. Dvije su ljuske razdvojene komorom koja je izvorno morala biti ventilirana. Loše funkcioniranje dotične komore, zbog sustavnog uništavanja raznih građevinskih elemenata, dovelo je do šteta. Cilj je prvog stadija restauracije povratiti ispravnu funkciju krovišta poboljšanjem njegovih termičkih i vodoodbojnih svojstava.
Sljedeći stadij obnove kuće obuhvaća restauriranje svih vertikalnih fasadnih elemenata. Sumporizirani mjedeni profili korišteni u La Ricardi tehnička su komponenta koja se danas rijetko koristi, ali je bila uobičajena u vrijeme izgradnje kuće. Slične primjere nalazimo u opusu Mendesohna u međuratnom razdoblju ili drugim projektima u središnjoj Europi. Mjed je pokazao vrlo stabilnu reakciju na oksidaciju kada je izložen agresivnom djelovanju morske klime. Pa ipak, unutrašnji je čelični okvir koji ojačava drvenariju oksidirao i uzrokovao ispupčenja i ljuštenje, što je ozbiljno narušilo dijelove fasade, a mnoge i uništilo. Rad na restauraciji temelji se prvenstveno na obnovi svih dijelova drvenarije koji su još uvijek obnovljivi, vjernoj reprodukciji uništenih sektora te poboljšanju buduće trajnosti, uvodeći nove visoko otporne profile od ojačanog nehrđajućeg čelika.
Rad na krhkom naslijeđu suvremene arhitekture i restauracija modernog tipa mogu biti paradoksalni, budući da prilagodba ekoloških parametara kao što su energetska učinkovitost ili izolacija mogu nagrditi i uništiti građevine koje treba restaurirati. Naš je pristup uvijek tražio ravnotežu između vjerne obnove izvornog modela i poboljšanja uvjeta stanovanja te, prije svega, buduće trajnosti i stabilnosti.
Obnova La Ricarde danas je gotovo u potpunosti zaustavljena. Kulturne institucije naše države ne razmišljaju dugoročno i ne razumiju da je očuvanje i čuvanje naslijeđa moderne i dvadesetog stoljeća jednako važno za buduće generacije kao i čuvanje svega starog.
Konačno, Antonio Bonet uspijeva ovim svojim djelom, prvim nakon povratka u Španjolsku, uskladiti duh grandioznih i beskrajnih horizonata američkog krajolika s duhom Sredozemlja te ponuditi budućim stanarima La Ricarde primjer preciznosti i kulturne i materijalne profinjenosti.