Tako je... koncept sakralnosti u arhitekturi: toranj nije samo simbol vjere ili moći. Mislim na svjetionik ili na velike stožaste konstrukcije Palače u Sintri, u Portugalu, na silose i na dimnjake. Ovi potonji predstavljaju najljepše primjerke arhitekture našeg vremena, iako zapravo ponavljaju stare modele: nepriznavanje toga još je jedan od apsurda moderne ili modernističke kritike.
Aldo Rossi: ‘Znanstvena autobiografija’, 1981.[1]
Prije nekoliko dana, pregledavajući neke od najljepših crteža i ponovo čitajući neke od metaforičkih tekstova Alda Rossija, sjetio sam se Kuće pripovijesti, novog muzeja koji je u Cascaisu projektirao Eduardo Souto de Moura, posvećenog djelu Paule Rego. Učinilo mi se da ta povezanost u potpunosti ima smisla, imajući na umu da je upravo preko ‘analogije’ ovaj talijanski autor konsolidirao svoj nezaobilazni diskurs o izgradnji grada. Kasnije sam se sjetio nedavnog razgovora u kojem mi je Souto de Moura opisivao očaranost koju gaji prema Rossiju otkako ga je upoznao 1975. godine na jednom seminaru o arhitekturi koji se održao u Galiciji.
Ustvari, rossijanski imaginarij je uvijek bio latentan u djelu Souta de Moure tijekom posljednjih desetljeća, implicitan u njegovom zanimanju za tipološku elementarnost i prostorno ponavljanje, iako jasno odsutan sa simboličke točke gledišta. Kako god bilo, ono što je prije bilo implicitno, sada postaje eksplicitno dajući tijelo onome što je, bez sumnje, najikoničnije djelo Souta de Moure poslije Gradskog stadiona u Bragi.
Ovim muzejom Souto de Moura razvija ‘arhitekturu našeg vremena’, iako zapravo ponavlja ‘stare modele’ – kao što je to zagovarao Rossi u svojoj ‘Znanstvenoj autobiografiji’ – evocirajući bezvremenske arhetipove urbane ikonografije: tornjeve, svjetionike, silose i dimnjake poput onih koji su odredili profil Palače u Sintri. Ne treba iznenaditi, nastavimo li s ‘analogijom’, da pri opisivanju ovog muzeja Souto de Moura spominje čak i naglašene krovove palača Raula Lina ili ideju ‘nastanjenog dimnjaka’, evocirajući dimnjak kuhinje Samostana Alcobaça[2]. Zapravo, i u najboljem smislu tumačenja, Kuća pripovijesti predstavlja se kao historicističko djelo, a taj status će zasigurno iznenaditi najvjernije sljedbenike i zbuniti najmarljivije kritičare Souta de Moure.

Ne možemo zaboraviti da njegov put ima konotaciju jednog drugog doba arhitekture – doba junačkih avangardi ’20-ih i ‘30-ih godina 20. stoljeća – s osnovnim referencama na Miesa van der Rohea i na arhitektonski neoplasticizam, koje je ciklički preuzimao u projektima većinom stambenog mjerila. To eksperimentiranje priskrbilo je Soutu de Mouri kritičke epitete poput ‘neomodernog’ ili ‘minimalističkog’, koji teže kristaliziranju formalnih modela i detalja izvučenih iz njegovog djela, a koje danas na nekritičan način kopiraju mnogi drugi arhitekti.
Međutim, nastojeći se suočiti s tim nenamjernim ‘akademizmom’, Souto de Moura potvrđuje da ono što ga zanima kod Miesa nije njegova tipizirana sklonost prema kritici, nego njegovo zanimanje za klasičnu arhitekturu i njegovo divljenje, među ostalim prema Karlu Friedrichu Schinkelu; ili, pak, da ono što ga zanima u modernizmu nije njegov apstraktni diskurs o ‘tabuli rasi’, nego, puno preciznije, ponovna interpretacija povijesnih ‘arhetipova’ koju su izveli mnogi moderni arhitekti – naposljetku, nije li i sam Le Corbusier bio fasciniran plastičnošću tornjeva i minareta, silosa i kućnih dimnjaka, ciklički predstavljanih na njegovim crtežima s putovanja?[3] Kako je rekao Aldo Rossi, ‘nepriznavanje toga još je jedan od apsurda moderne ili modernističke kritike’[4].
Smatra se da Souto de Moura na taj način utječe na povijest, a ne na njenu avangardnu negaciju. Naročito ga zanima odnos ili, po novom, ‘analogija’ koja se može uspostaviti između vremenski različitih osoba, poput već spomenutih Miesa van der Rohea i K. F. Schinkela, no i između Adolfa Loosa i Claudea-Nicholasa Ledouxa ili čak između Alda Rossija i Giorgia De Chirica, da navedemo samo jednog od njegovih najdražih slikara. Kod prvih autora Souto de Moura traži klasičnu racionalnost i proporciju; kod drugih čiste arhetipove koje uzima kao objets trouvés ; kod posljednjih, integraciju tih pouka u sve metafizičko i bezvremensko.
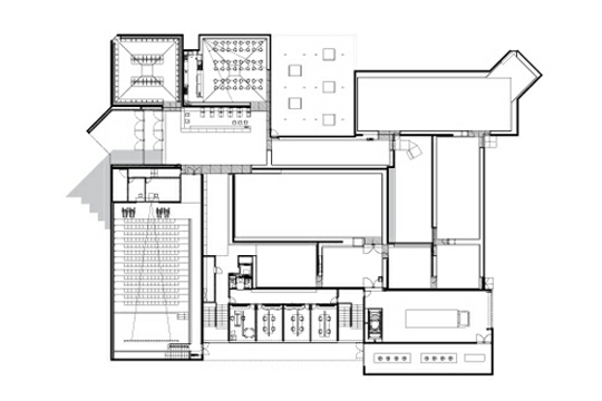
Projekt Kuće pripovijesti rječit je primjer svega toga: evocira Schinkelov centralizirani nacrt za Altes Museum u Berlinu raspoređujući četiri krila oko velikog centralnog volumena (dvorana za povremene izložbe); pridržava se Ledouxovih revolucionarnih pravila s kraja 18. st. izražavajući, u sebi svojstvenoj monumentalnosti, građansku dimenziju javne opreme; igra se, napokon, različitim objets trouvés – trapezoidnim dimnjacima, kockastim volumenima, velikim portalima – slažući tako nadrealistički krajolik poput onih koje je slikao De Chirico.

U toj Kući pripovijesti može se čak uspostaviti i jedan drugi vremenski ‘dijalog’ povezujući Raula Linu s Álvarom Sizom, dvojicu nezaobilaznih portugalskih arhitekata posljednjeg stoljeća, također dragih Soutu de Mouri. Kod obojice autor priznaje jedinstvenu sposobnost združivanja i pripitomljavanja kulturnih memorija izvučenih iz geografije i povijesti mjesta, dovodeći ih u svoje vrijeme. Bilo je tako s traženjem definicije ‘portugalske kuće’, koju je Lino izumio i opisao, a i isprobao na svojim palačama u Estorilu, Cascaisu i Sintri. Tako je i sa Sizom, čija djela izgledaju kao da isijavaju iz područja na kojima su postavljena, kao da se oduvijek tamo nalaze nazirući se u krajoliku. Za obojicu ‘kuća’ nikad nije bila totalitarno tijelo, već kozmos dijelova koji se spajaju međusobno i sa svojim ovojnicama.
Upravo to Souto de Moura isprobava u toj novoj ‘kući’ za Paulu Rego rastavljajući njen oblik, sijekući njezinu unutrašnjost, oblikujući njezin volumen prema okolnom drvoredu. I više od toga: kod Raula Lina će Souto de Moura tražiti čak i dekorativnu dimenziju, koja dolazi od oksidiranih pigmenata vidljivog betona, ali i prošaranog efekta oplate koji podsjeća na slike od keramičkih pločica koje se nalaze u tim palačama ; od Size autor preuzima tipološko umijeće, ponavljano u njegovom djelu, dajući glavnu ulogu uglovima Muzeja kao prostorima unutarnje tranzicije, no i kao ‘fasetama’ otvorenim prema vanjskom krajoliku.
Preostaje nam, naposljetku, još posljednji odnos kako bismo razumjeli tu Kuću pripovijesti: arhitektov odnos sa samom umjetnicom koja u njoj ‘stanuje’. Davno se Souto de Moura upoznao s njenim djelom, no tek su se ovom prilikom osobno upoznali. Na njegovo iznenađenje, upravo je Paula Rego navela njegovo ime za realizaciju projekta pozvavši ga u studenom 2004. godine da posjeti njezin londonski atelje i privremenu izložbu njenog rada, koju je tada organizirao Tate Britain. Souto de Moura[5] pripovijeda kako su dugo obilazili izložbene dvorane sve dok napokon Paula Rego, otvorivši vrata još jednog salona, u kojem su se nalazile slike Francisa Bacona narančastih tonova, raspoređene po plavkastim zidovima, nije uzviknula: ‘Pogledajte, ovo mene očarava!’

Ta scena označit će Souta de Mouru, te postaje svjestan da je, poput njega, i Paula Rego izgradila svoj put posjećujući druge umjetničke imaginarije, druge narativne arhetipove – na određeni način svoje objets trouvés – u kojima je pronalazila taj utjecaj povijesti umjetnosti ili barem svoje vlastite ‘povijesti’. Različiti autori koji su naklonjeni njenom slikovitom djelu povezuju te podijeljene imaginarije[6] ne samo s Baconom nego i s Velázquezom, Goyom, Dubuffetom, Ernstom, Balthusom, Picabiom i, naravno – a ovime dolazimo i do poante našeg teksta – s De Chiricom. Zaista, postoji ‘de chirichianska’ prostorna dubina u djelu Paule Rego koja kod arhitekata ne prolazi nezamijećena.
I Eduardo je bio osjetljiv na tu dubinu kada ga je Paula zamolila da stvori mjesto ‘pripovijesti i crteža, zabavno, nepretenciozno, živo, puno radosti i mnogih pakosti’[7]. Tako je dizajnirao tu grimiznu palaču, punu ‘pakosti’ izvučenih iz ‘povijesti’ arhitekture, no također i punu ‘radosti’, ponekad melankoličnih, koje je osobno naučio s Álvarom i Aldom: palača, kako već rekosmo, sačinjena od ‘analogija’, drugim riječima, sačinjena od izmišljenih priča.
[1] Slobodan prijevod autora: ROSSI, Aldo, Autobiografia Científica (Znanstvena autobiografija, op. prev.), Barcelona, Editorial Gustavo Gilli, SA, 1984, str. 90 (1. izdanje, 1981).
[3] Cf. LE CORBUSIER, Voyage d’Orient (Put na Istok, op. prev.), Paris, Electa/Fondation Le Corbusier, 2002.
[4] ROSSI, Aldo, op. cit.
[5] GRANDE, Nuno, op. cit.
[6] Cf. ROSENGARTEN, Ruth (ed.), Compreender Paula Rego (Razumijeti Paulu Rego, op. prev.), 25 Perspectivas (Perspektiva, op. prev.), Porto, Fundação de Serralves / Público, 2004
[7] GRANDE, Nuno, op. cit.