Prije dvije tisuće i dvjesta godina, prvi je car dinastije Čin utemeljio tri pokrajine, od kojih se jedna zvala Yin. U tu je pokrajinu spadao lučki grad Ningbo, koji je trgovao sa strancima od 7. stoljeća sve do osnutka Narodne Republike Kine. Zatim je Yin postao pokrajina Ningbo, da bi 2002. bio preimenovan u okrug Yinzhou. Luka dubokoga gaza nije samo važno prekrcajno mjesto, nego se grad smatra predvodnikom gospodarstva na istočnoj obali Kine. Na krilima ekonomskog procvata gradski razvoj proširio se na Yinzhou, koji je na kraju postao lokacija za novi Povijesni muzej. Na međunarodnom arhitektonskom natječaju 2003. pobijedio je arhitekt Wang Shu iz Hangzhoua.
U Kini takvo širenje grada obično slijedi preseljenju općinskih zgrada. Lokacija u Yinzhouu, okružena planinama, još je nedavno bila polje s usjevima. Deseci starih sela sravnjeni su sa zemljom da bi se podigle dvije zgrade državne uprave; istočno od muzeja stoji golem prazan trg i kulturni centar; na jugu je park, a nešto dalje još se nalazi oranica koju će ironijom sudbine zamijeniti sjedište gradskog ureda za planiranje. Wang je shvatio da u tom konkretnom slučaju ne može obnoviti seosku živost zato što ona više uopće ne postoji. Od tih sela preostale su samo krhotine crepova i cigala.
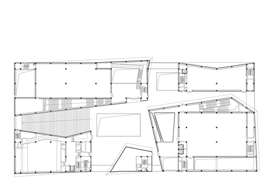
Wang dobro zna da gradnja muzeja u Kini može biti problematična zbog neizvjesnosti u pogledu njegove funkcije. Kad je glavni korpus zgrade već bio pred dovršetkom, izložbeni koncept još je bio nepoznat. S obzirom na te teškoće, arhitekt se odlučio za ono što opisuje kao ‘slobodno projektiranje’. Iako je udaljenost između prilično nepovezanih novih zgrada iznosila više od sto metara, njegov je zadatak bio stvoriti ‘jedinstvenu životnu građu’, s ciljem da je što više u skladu s prirodnim okolišem, mjesnom povijesti i običajima.
U potrazi za identitetom
Arhitektura u Kini danas se našla pred dilemom. Dok radovi međunarodno priznatih arhitekata kao što su Koolhaas, Hadid i Holl, kao i brojnih ‘globalizacijskih arhitektura’ sjevernoameričkih biroa imaju dobrodošlu nuspojavu da najveće kineske gradove stavljaju na arhitektonsku kartu svijeta, većina domaćih arhitekata ostaje poslovno orijentirana pa projektira konvencionalne zgrade sa zapadnjačkim ili japanskim pročeljima kako bi bile poželjne kineskim novopečenim bogatašima. Zastarjele institucionalne prakse, od kojih se nikada nije tražilo da stvore jasno diferencirane građevine, nisu se znale nositi s brzim gospodarskim rastom u smislu uspostavljanja prepoznatljivoga, a kamoli intelektualnoga, kineskog pristupa arhitekturi. Kad to ipak pokušaju, nastaju zgrade s krovovima poput stiliziranih pagoda ili koncepta izvedenog iz komunističke ‘modernističke’ prošlosti, a čak i kad se to spoji s oponašanjem ‘zapadnjačkih’ ili ‘kineskih’ osobina, uglavnom se ne uklapa u prirodni okoliš, mjesne običaje i građevnu baštinu određenog mjesta ili pokrajine. Između ostaloga i zato što je kineska kulturna revolucija izbacila pridjev ‘regionalno’ iz arhitektonskog programa te je od 1950-ih taj izraz bio sinonim za ono ograničeno, lokalno i provincijalno. U posljednje je vrijeme nov naraštaj arhitekata izniknuo iz rijetkih privatnih arhitektonskih atelijera čiji su glavni partneri studirali u inozemstvu ili imali strane učitelje u Kini. Neki od njih, poput Wanga, usuđuju se ponovno naglašavati ‘usidrenost u mjesto’.

Kina i kritički regionalizam
Kineska škola mišljenja nije stvorila jaču kritičku filozofiju ni u vrijeme dinastije Čing ni za vrijeme ‘reforme stotinu dana’ ili ‘kineske renesanse’, koju je vodio Liang Qichao. Zbog toga, za razliku od primjerice Japana, u kineskoj arhitekturi 20. stoljeća rijetko se ispunjavaju očekivanja kritičkog regionalizma kako su ga 1981. definirali Tzonis i Lefaivre. U modernoj Kini najavio ga je 1982. američki arhitekt Ieoh Ming Pei sa svojim hotelom Fragrant Hill na periferiji Pekinga. Osim njegovih drugih radova u Kini, Muzej Suzhou iz 2006. također je naglašavao ‘usidrenost u mjesto’ utoliko što je uzeo u obzir elemente konteksta kao što su krajolik, povijesne aluzije i svjetlo. Budući da zgrada stoji odmah pokraj povijesnih lokacija i služi kao gradski muzej Suzhoua, Pei se u jednom trenutku upustio u njihovo oponašanje ili barem sublimiranje. Ipak, uspješno je pomirio inozemne građevinske metode s regionalnom estetikom te u smislu usklađenosti još spada u blistave primjere unutar Kine.
Slobodno projektiranje i usklađenost
Do dana današnjeg Suzhou u pokrajini Zheijang igra ključnu ulogu u kineskom duhovnom svijetu. Jedna stara izreka kaže: ‘Nebo gore, Suzhou i Hangzhou dolje.’ Wang Shu, jedan od nekolicine kineskih arhitekata koji primjenjuju kritički regionalizam, izvukao je pouke iz starog Suzhoua dok je čeznuo za onom ‘jedinstvenom životnom građom’ u Ningbou. ‘Suočeni s previše umjetnim gradom, ljudi su odlučili stvoriti vrtove s prirodnom živošću, izražavajući suživot čovjeka i prirode, kao u Vrtu lavlje šume u Suzhouu’, objašnjava Wang. Taj vrt, koji je osmislio jedan zen-budistički redovnik, uglavnom zauzima umanjena ‘stjenovita planina’ koja sliči na ričuće lavove. U tom tipično kineskom okolišu punom proturječja i raznolikosti, zgrade igraju sporednu ulogu.
‘To je značenje arhitekture, to mjesto koje ona zauzima u cjelini svijeta’, naglašava Wang. Iznad svega on vjeruje u ‘proces slobodnog projektiranja’, odnosno prije u stvaranje mjesta, nego zgrade, mjesta koje može reagirati na dane uvjete kako se pojavljuju tijekom izgradnje – po svemu sudeći, vrlo kineski pristup. To je metoda stvaranja kineskog vrta, kako objašnjava Wang, zbog jednostavnog razloga da se vrt zapravo ne može projektirati, nego nastaje kao rezultat procesa izgradnje. On iskreno želi ‘od toga učiniti načelo moderne arhitekture’.
Hod i lice
‘Planina predstavlja mjesto gdje kineski narod može pronaći svoju izgubljenu i skrivenu kulturu’, tvrdi Wang. Kineski pejzaži naslikani tušem podupiru tu pretpostavku. Između ostaloga kao odgovor na prirodni okoliš okruga Yinzhou, planina kao temeljni motiv izgleda kao opravdan izbor za mjesto koje danas kao da poziva ljude da pronađu nit svoje regionalne baštine, raznolikosti i običaja kako bi iznova ispleli onu ‘jedinstvenu životnu građu’.
Wangov koncept planine također predstavlja sublimiranje staroga građevinskog zakonika Ningboa po kojem visina do vijenca ne smije prelaziti 24 metra, što ga čini horizontalnim gradom. Odlučni, oštri rezovi, kao i slojevito pročelje, predstavljaju čovjekov trag, bilo u obliku relikta ili početka neke ključne gradske strukture. Iako ima izgled i mjerilo tvrđave, ona poziva ljude da hodaju po ‘arheološkoj’ stazi.
U tu planinu od nosivog betona, dijelom uronjenu u umjetno jezero obrubljeno trskom, posjetitelji ulaze s istoka, kroz četvrtasti otvor širok 30 metara. Tri ‘doline’ (dvije u unutrašnjosti objekta, jedna na otvorenom), četiri špilje (ulaz, hodnik i dvije strane strme vanjske doline) te četiri dvorišta u obliku tunela (dva u središtu i dva u ‘dubini planine’) čekaju da budu istraženi. Četvrtasti gornji dio planine definira veliku terasu, koja nudi pogled na grad, kao i polja i planine.

Naglasak na površinu i očuvanje lica (fasade) znače gotovo isto te su bez sumnje kulturološki ukorijenjeni u Kini. Wang duhovito reagira na tu nuždu – sa slojevitim, intrigantnim pročeljem koje proizlazi iz manjih eksperimenata u njegovim ranijim projektima ‘Pet raštrkanih kuća’ i sveučilišnog kompleksa Kineske umjetničke akademije. Utisnuti tragovi bambusovih letava možda bude sjećanje na beton brut, ali mogu se i protumačiti kao fosilni ostatci bambusovih šuma. Dvadeset različitih vrsta sivih i crvenih cigala i crepova – spašeni ostatci srušenih seljačkih domova – predstavljaju još jedan ‘arheološki’ sloj koji posuđuje tehniku od lokalne gradnje wapan, posebne regionalne tradicije gradnje privremenih zidova nakon udara tajfuna.
Wang je osobno upućivao obrtnike kako da primijene metodu gradnje koja je zatečena u zadnjem selu Yinzhoua, ali nije mu bilo dopušteno da nadzire cijeli proces. Iako je arhitekt iscrtao izvedbene nacrte u boji za svaki zid, obrtnici nisu bili sposobni kontrolirati sve elemente materijala. Tamo gdje je crta trebala biti ravna, bila je zakrivljena. Wang se sjeća da je bilo žučnih rasprava o tome trebaju li se ponovno izvesti pogrešni dijelovi. ‘Na kraju nisam imao drugog izbora nego da uvjerim sve sudionike teorijom ‘pustimo da priroda ide svojim tokom’. Osjećao sam se kao neki drevni kineski filozof’, šalio se arhitekt. Takvim procesom slobodnog projektiranja stekao je poštovanje obrtnika, koji ga sada zovu shifu (majstor) umjesto laoshi (učitelj). Nije nevažno ni da pravokutne niše, naizgled nasumce raštrkane po zidovima, bude uspomene na male špilje u kineskim planinama gdje su navodno boravili budistički redovnici.
‘Tijekom projektiranja i izgradnje optuživali su me da stvaram nešto što odražava najzastarjeliji izgled Ningboa u najmodernijem gradskom okrugu’, sjeća se Wang. No, prema njegovu sudu prvo što bi povijesni muzej trebao prikupljati jesu tragovi vremena za suočavanje s prošlošću. Ningbo je nekada bio utvrđeni grad pod opsadom stranih sila. Kinezi su i pobijedili i izgubili. Danas se čini da je ‘tvrđava’ Ningbo pod opsadom kritičkog regionalizma s kineskim osobinama. Zahvaljujući ljudima poput Wanga, to bi mogla postati situacija u kojoj su svi dobitnici.