Oris - Kuća arhitektureUskoro u Zagrebu

 

14/02/2014

Oris - Kuća arhitekture novi je multimedijalni centar u Zagrebu, u ulici Kralja Držislava 3, čije se otvorenje planira u bliskoj budućnosti. Novi prostor će osim dosadašnjih aktivnosti pružiti nove mogućnosti za unapređenje i proširenje djelovanja Orisa i razvoj novih projekata. U tijeku su aktivnosti vezane uz dovršenje prostora, ali također i organizacije bogatog programa koji će uključivati predavanja, projekcije filmova, izložbe, radionice, koncerte i promocije.

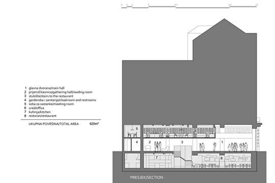
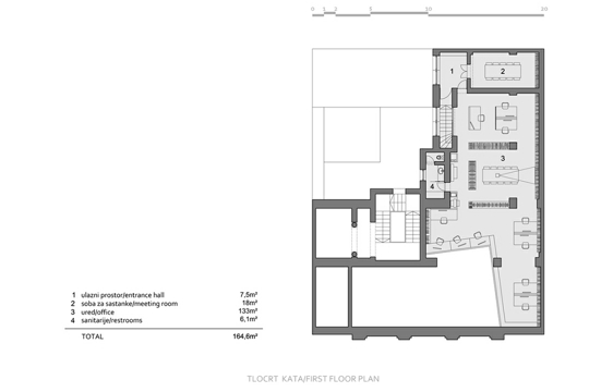
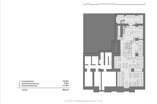
U sastavu prostora Oris - Kuća arhitekture (ukupne veličine 622 m2) bit će galerijski prostor / multimedijalna dvorana sa 150 mjesta, dvorana za sastanke i promocije, kutak za čitatelje, uredi Oris kuće arhitekture i redakcije časopisa Oris te restoran Voncimer.

Oris - Kuća arhitekture zamišljena je kao mjesto promocije arhitekture, kulture, mjesto susreta i druženja arhitekata, dizajnera, poslovnih ljudi i ostalih zainteresiranih sudionika kulturne i poslovne scene, mjesto gdje će i poslovni partneri i sponzori Orisa dobiti mogućnost promocije svojih usluga i proizvoda kroz neposredne kontakte i druženja s arhitektima.

Oris u okvirima svojih djelatnosti nudi razne usluge i proizvode zainteresiranim prijateljima, kolegama, korisnicima, oglašivačima, sponzorima, donatorima, suradnicima  institucijama.