Proziran balon i tamna komora najnoviji su dodaci staroj zgradi koja je nekada bila Palača kraljevske carinarnice u Santiagu, a u kojoj je danas smješten Čileanski muzej pretkolumbovske umjetnosti.
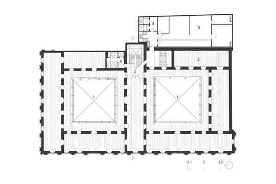
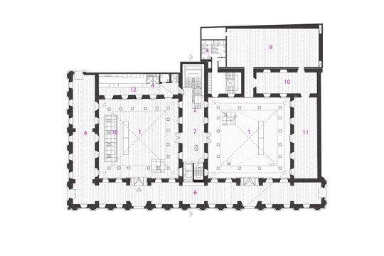
Od početka 19. stoljeća ova stroga građevina stoji na uglu jednoga od devet blokova koji tvore prsten koji okružuje najznačajniji javni prostor u gradu, Plazu de Armas, u jezgri povijesne četvrti Santiaga. Simetričan, generički raspored zgrade rezultirao je dosljednom prostornom strukturom koja je tijekom vremena omogućila kontinuirane cikluse promjena i mutacija. Slijed koji se sastoji od unutarnjeg dvorišta, kontinuirane otvorene galerije koja se proteže duž njegova oboda te jednostrukog reda istovrijednih soba, obilježio je značajan dio kolonijalne arhitekture Čilea. Tlocrt je u ovom konkretnom slučaju udvostručen: dva istovjetna kvadratna patija, u osi smjera sjever-jug, organiziraju zgradu u dvije jednakovrijedne etaže. Pokazalo se da se radi o iznimno fleksibilnom tlocrtu, sposobnom udomiti najrazličitije arhitektonske programe – tijekom više od dvjesto godina Palača je služila kao carinarnica, knjižnica, sudbena palača i muzej. Bila je u stanju izdržati požare i nekoliko potresa, a uzmogla je čak i prihvatiti promjene u urbanističkom oblikovanju centra grada.
Iako je zgrada uglavnom zadržala svoj plan, većinom zahvaljujući svojoj adaptivnoj sposobnosti, na nekoj bi se razini moglo reći da se ipak neprekidno mijenjala, gotovo bez memorije nekoga svoga prvobitnog stanja. Prošavši kroz nekoliko dogradnja i modifikacija od svoga otvaranja 1807. godine, stara je građevina, kao uostalom i većina povijesne arhitekture u Čileu rezultat uslojavanja mnogostrukih zahvata te je time predstavljala ne samo svjedočanstvo o određenom duhu ili konkretnom momentu u povijesti, nego i o zajedničkom djelovanju projektanata i inženjera unutar prilično velikoga vremenskog intervala. Periodično ponavljanje potresa i političkih promjena samo je poticalo ovu preklapajuću dinamiku.

U ovome slijedu intervencija utemeljiteljsku ulogu odigrao je vojni inženjer José María De Atero. On je, nekoliko godina prije nego što će Čile proglasiti neovisnost od španjolske krune, vodio radove na Palači kraljevske carinarnice. Bio je to projekt talijanskoga arhitekta Joaquina Toesce, koji je u Santiagu projektirao neka od značajnih arhitektonskih djela, uključujući trenutno sjedište vlade, La Monedu. Nakon De Atere, nekoliko je arhitekata i graditelja provodilo različite promjene, jer su se u prostorije zgrade uzastopce useljavale: Nacionalna knjižnica (1823.), Sudbena palača (1846.) te regionalni sud (1915.). Zgrada je djelomično uništena u požaru 1968. godine. Ostala je zatvorena sve do obnove 1981. godine, kada je u njoj otvoren Čileanski muzej pretkolumbovske umjetnosti. Na uglu ulice Bandera i ulice Compañia otvoreni su za javnost portici, u kontinuitetu s novom linijom nogostupa koja je nastala proširenjem prilaza. Sjeverno i zapadno krilo u prizemlju otada služe kao natkriveni nogostupi koji nude zaštitu od sunca i kiše te pogled na unutarnja dvorišta, a također su i u funkciji pristupa Muzeju.
Upravni odbor Muzeja je 2008. godine, imajući u vidu potrebu za novim prostorima kao i za restrukturiranjem kuratorskoga pristupa zbirci, naručio od Smiljana Radića projekt proširenja zgrade. Tijekom cijeloga procesa Upravnom odboru predočena su dva slična prijedloga, kojima je zajedničko bilo uvođenje prostranoga podzemnog prostora koji se prostirao od sjevera prema jugu, ispod obaju dvorišta. Uvođenje ovoga tihog i introvertiranog interijera, prema Radićevim riječima proširuje prostorni imaginarij Muzeja, a također pruža i jedinstvenu priliku za konsolidiranje institucionalne zgrade, kako u građevnom tako i u političkom smislu. Značajna iskapanja poduzeta tijekom izgradnje ponudila su mogućnost za procjenu stanja temelja zgrade i ojačanje cjelokupne konstrukcije, s obzirom na to da novi betonski aneks služi kao podrum koji ojačava njen kontinuitet te postaje dragocjen potporanj gornjim razinama, povećavajući njihovu seizmičku otpornost. S druge strane, intervencija manifestira interes Upravnog odbora da zgradu (i centar grada) zadrže kao svoju primarnu lokaciju, odupirući se lokalnoj tendenciji koja nove građevinske projekte na istoku grada favorizira kao lokaciju na kojoj bi se trebale nalaziti najvažnije kulturne ustanove i poslovno sjedište.

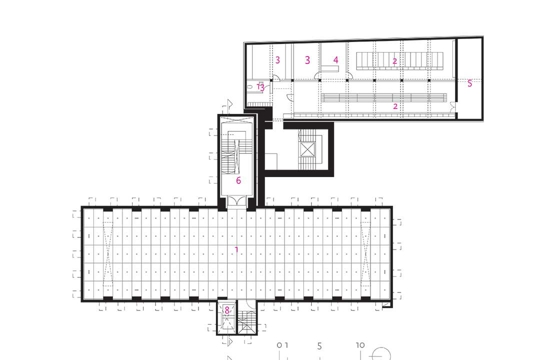
Novi izložbeni prostor je dvorana dimenzija 38 x 11 m koja priziva ukupnu veličinu parcele, koja je na svojoj najduljoj stranici ekvivalentna polovici bloka te unutar objekata Muzeja uvodi novu veličinu. Dva nadsvjetla, po jedan na svakome kraju, suptilno naglašavaju duljinu prostorije i daju osjećaj kontinuiteta s preostalim prostorima u zgradi. Tmurna atmosfera, čemu pridonose betonski zidovi boje grafita i tamno kameno opločenje, postupno otkriva sedam metara visok tamni drveni strop, osiguravajući intiman i zamagljen okvir Čileu prije Čilea, veličanstvenoj zbirci artefakata koja je izložena u ovome novom prostoru.
Suprotno podzemnom prostoru, sjeverno je dvorište pretvoreno u svijetlu, prozračnu unutarnju dvoranu. U ovome vestibulu smješteni su muzejska kafeterija, dućan i prijemni prostori, a pretvoren je u unutarnji prostor kao rezultat ugradnje samostojeće nadstrešnice koja funkcionira kao gotovo nevidljivi krov. Radi se o napuhanome, prozirnom balonu od efe membrane, učvršćenome za čeličnu konstrukciju koja se proteže duž gornjega vijenca na obodu unutarnjeg dvorišta. Ta laka konstrukcija odražava Radićevo zanimanje za membrane i arhitekturu na napuhavanje kao što su, na primjer, Kuća cr, prvi projekt za restoran Mestizo ili Mjesto sastanka, a trenutno je i najveći primjer takve konstrukcije.
No, u najnovijoj intervenciji na zgradi čiju je gradnju započeo De Atero, nije se radilo samo o uvođenju balona i tamne komore. Dobivanje dodatnoga prostora omogućilo je reorganizaciju galerija na drugome katu, čiji su interijeri ranije bili bez svjetla i pretrpani. Svi su prozori raskriveni kako bi se dobilo prirodno svjetlo s ulice i patija, sve su pregrade uklonjene i svi zidovi obojeni u bijelo. Dok se šeće tim galerijama, prisutna je još jedna neočekivana situacija: neobičan raspored zgrade i njezini nizovi velikih, identičnih prozora, koji gotovo lebdeći iznad ulice nude potpuno novu viziju povijesne četvrti Santiaga i susjednih zgrada Sudbene palače i nekadašnjega Parlamenta.