Unutrašnjost Istre postaje sve popularnije ladanjsko odredište, bilo da je riječ o kućama namijenjenim iznajmljivanju ili pak vikendicama u trajnom vlasništvu. Brojne od tih kuća za odmor smještene su u specifičnom okolišu na rubovima malih istarskih mjestašaca čija se skladnost nadovezuje na izuzetnu i slojevitu urbanu i graditeljsku povijest Istre. No, u tom žanru gradnje vidjeli smo tek nekoliko iole pristojnih graditeljskih zamisli, a inovativno osmišljeno recikliranje postojećega građevnog fonda ili učenje od konteksta su rijetke pojave. Umjesto suvremenih zamisli, razvila se specifična ikonografija ‘stancija’ i drugih kuća za odmor sa sivkastim ili smeđim kamenim pročeljima koja su nekada bila ožbukana, a danas se nakon obnova otkriva usitnjenija ili nepravilna struktura zidova koji su slagani bez reprezentativne ambicije. Gotovo paradoksalno, ta potraga za slikovitošću i surogatnom ‘povijesnošću’ dovodi do toga da se gradske ili stambene kuće u vizualnom kodu ujednačavaju s tradicionalnim ruralnim gospodarskim gradnjama. Unutrašnjosti tih kuća su pak uređene kao ambijenti u kojima se razmjerno kontrolirano kombiniraju suvremeni i ‘tradicionalni’ elementi, što objašnjava njihovu popularnost u raznim novinskim prilozima i časopisima za uređenje interijera. Taj zahtjev za ‘kontekstualnošću’ ali i suvremenom udobnošću brzo je postao toliko uvriježen da mu je već postalo teško i ponuditi alternativu. No, koje bi uopće nove vrijednosti mogle ponuditi nove gradnje ili rekonstrukcije kuća za odmor?

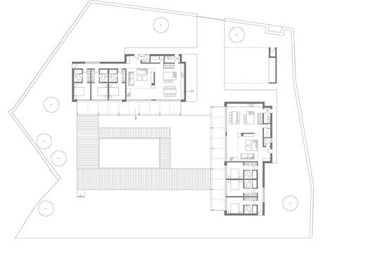
S tim okolnostima i pitanjima susreo se arhitektonski tim Arhitektri prilikom projektiranja maloga ladanjskog sklopa pored seoca Bratovići, u blizini tek nešto većeg naselja Majkusi u središnjoj Istri. Imanje je ponešto izdvojeno od Bratovića i okružuju ga livade i šumarci ispresijecani suhozidima. Autori su koncipirali projekt oslanjajući se na formalno specifično dispozicijsko rješenje proizašlo iz činjenice da su imanje naručile dvije obitelji koje su odlučile izgraditi zajednički ladanjski prostor. Dvije identične, niske i jednostavne kuće arhetipskog presjeka postavljene su pod pravim kutom u odnosu jedna na drugu, a uz njih je izvedena i manja gospodarska zgrada. S obzirom da je parcela u najvećem dijelu ravna, nije bilo topografskih datosti od kojih bi se mogla razviti arhitektonska tema. Geometrijski strog postav dviju izduženih prizmi naglasio je ulogu međuprostora koji se doživljava kao jasno definirani i integralni dio projekta, što se produžuje u pejzaž. Kuće okreću ‘leđa’ pristupnoj cesti, a velikim ostakljenim stijenama potpuno se otvaraju prema zajedničkom dvorištu s bazenom, koje je mjesto ‘socijalizacije’ i zajedničkoga ladanjskog života. Podsjetimo da je grupa dviju kuća s dvorištem uobičajena tradicionalna tipologija ruralnih sklopova u Istri, pri čemu je u tradicionalnoj inačici jedna zgrada stambena, druga gospodarska, a postavljene su u gušćem rasporedu. Ovdje je udaljenost zgrada pažljivo odmjerena kako bi se ostvarila zadovoljavajuća intimnost svake od njih, a da pri tome dvorište zadrži prostornu čitljivost.
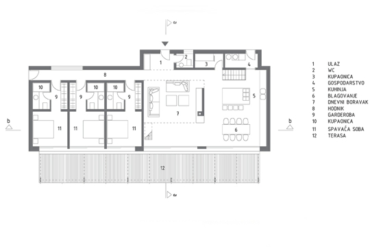
Uzduž kuća protežu se prostrani trijemovi s drvenom palubom koji formiraju nastanjivu prijelaznu zonu između dvorišta i interijera. Dnevni boravci, trijemovi i dvorište su pojedinačni segmenti prostora koji se u svakodnevnim scenarijima koriste kao cjelina. Domaćini rado pozivaju goste pa druženje, zabava i opuštanje ispunjavaju sve prostore, a dvorište postaje svojevrsna pozornica za prizore ladanjskog života. Formalni postav identičnih zgrada i pravilna raščlamba pročelja ne djeluju kruto nego jednostavno dobro artikulirano. Skladne horizontalne proporcije, mala visina zgrada i homogenost materijala fasade i krova od tanko klesanoga istarskog kamena dobro korespondiraju i s ‘rubnim’ kontekstom i s ladanjskim sadržajem, te istovremeno djeluju specifično i ‘obično’. Kamena pročelja su rezultat vrlo preciznoga, mukotrpnog i minucioznog zanatskog rada, a za potrebe njihove izvedbe je čak pronađena i nova kamena žila u lokalnom kamenolomu.

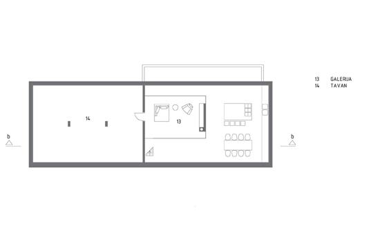
Interijeri su pak suvremeno i ‘urbano’ oblikovani, a naročito su atraktivni dnevni boravci s kuhinjom i galerijski prostori. Tek vidljive drvene grede i daske krovišta sugeriraju određenu ‘rustikalnost’. Plitko potkrovlje je također naseljivo, a svaka zgrada ima i manji podrum.
Uspješnost ovoga specifičnog projekta treba zahvaliti i bliskoj suradnji i uzajamnom razumijevanju arhitekata i naručitelja. Projektanti su vrlo direktno odgovorili na programske zahtjeve, reducirajući broj oblikovnih i projektantskih tema na minimum. I oblik i materijal zgrada pozivaju se na lokalni kontekst, ali je u teksturama, proporcijama i geometrijski strogoj artikulaciji volumena učinjen pomak od tradicionalnih gradnji. Pri tome projekt nudi i sve ono što se danas u medijima općenito promovira kao kvaliteta ladanjskih kuća: regionalni ‘štih’ udružen s kultiviranom ‘neomodernističkom’ estetikom. Autentični kulturni doprinos projekta raspoznaje se u usklađivanju formalnih ambicija, razgovora s kontekstom i pristojnog odnosa prema okolišu, a pravo postignuće jest kvaliteta života i specifični scenariji zajedništva ostvareni u tom sasvim bazično postavljenom, no vrlo ugodnom ambijentu.