Interpretacija povijesne svakodnevnice

arhitekti Francisco Fanucci, Marcelo Ferraz
projekt Muzej kruha, Ilópolis, Brazil, 2007
napisala Anne Dieterich

PDF Download: Klikni ovdje.
 

Ilópolis je maleni gradić na jugu Brazila u brdovitoj i ‘neiskvarenoj’ regiji pokraj rijeke Taquari. Uz populaciju od 4000 stanovnika u čitavom okrugu, urbano se područje sastoji od otprilike trideset blokova zgrada. Colognese mlin, udaljen samo jedan blok zgrada od glavnoga trga na kojem se nalaze crkva, hotel i gradska vijećnica, jedan je od nekoliko mlinova u ovoj regiji nastalih kao rezultat napora talijanskih imigranata da prežive i nasele se u Južnom Brazilu.

 

U Italiji je krajem 19. i početkom 20. stoljeća život postao težak za poljoprivrednike i vlasnike malih poduzeća zbog nepovoljne politike i loših ekonomskih uvjeta. To i imigracijski poticaji brazilske vlade naveli su cijele obitelji da napuste svoju domovinu i presele se u novi svijet. Brazil je dodjeljivao neobrađene, nenaseljene komade zemlje kolonijama. Nakon dolaska na taj neistraženi teritorij obitelji su zbog čiste nužde za preživljavanjem počele graditi nastambe, saditi kukuruz šećerac, pšenicu, vinovu lozu, uzgajati stoku i graditi mlinove kako bi osigurale osnovne namirnice na koje su navikle: palentu, kolače, vino i kruh. Više nego samo uspomena na nade i odlučnost imigranata, neki od mlinova rade još i danas. Međutim, njihov je broj sve manji.

 

Najraniji zapis o Colognese mlinu datira iz 1910. godine. Izgrađen je od drveta domaćeg bora Araucária angustifolia, vrste koja je postala simbolom Južnog Brazila. Kao i mnoge mlinove, pogonio ga je dizelski motor; vodeni pogon je bio rjeđi.

 

Nakon što je tijekom 1990-ih umro posljednji mlinar koji je radio u Colognese mlinu, zgrada je napuštena i prepuštena propadanju. Ostala je kao zaboravljena prekretnica u mirnom gradiću sve dok portugalska antropologinja i ekologinja Judith Cortesão nije na studijskom putovanju sa svojim studentima naišla na taj objekt, nakon čega je počela isticati povijesnu važnost mlinova i uporno zagovarati njihovo očuvanje. Od tog trenutka poduzet je cijeli niz akcija koje su rezultirale podizanjem Muzeja kruha, Pekarske škole i obnavljanjem Colognese mlina.

 

Arhitekti iz Brasil Arquitetura Studija Francisco Fanucci, Marcelo Ferraz i arhitekt Anselmo Turazzi uključili su se u ovaj proces od samog početka. S Manuelom Touguinhom, vjernim učenikom Judith Cortesão, a danas jednim od direktora kompleksa i velikim brojem predanih ljudi iz Ilópolisa utemeljili su Udruženje prijatelja mlinova u Alto Taquari 2004. godine. Stoga je bilo moguće dobiti financijska sredstva i političku i tehničku podršku iz različitih izvora: sponzorstvo od Nestlé Brazil, novčana sredstva iz Programa za poticanje kulture vlade Rio Grande do Sul, tečajeve restauracije Talijansko-latinoameričkog instituta (IILA) za lokalne zanatlije.

 

Projekt

 

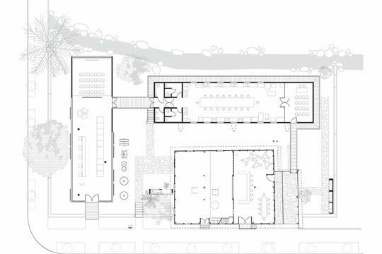
 U međuvremenu je na arhitektonskom projektu radio Brasil Arquitetura Studio u São Paulu. U ovom slučaju ‘arhitektonski projekt’ treba shvatiti u širokom smislu. Trebalo je utvrditi program, a njegov je glavni zadatak bio ponovo oživjeti stari mlin da bi ga se posjećivalo i opet učinilo korisnim. Bilo je očigledno da mlin kao prvo treba iznova ispunjavati svoju staru funkciju – proizvoditi brašno. Kao dodatak su planirana dva nova volumena koji bi udomili Muzej kruha i Pekarsku školu.

 

Jedan od glavnih problema je, prema riječima Francisca Fanuccija, bio kako postići da se dva nova volumena ne natječu s glomaznim mlinom i kako ih uklopiti u urbano mjerilo. To je rezultiralo niskim blokovima, okomitima na ulični raster. Oni okružuju stari Colognese mlin na pristojnoj udaljenosti, a u prostoru između stvaraju vrt. Muzej je smješten uz ulicu koja se spaja s glavnim trgom gradića. Izložbeni prostor je oblikovan betonskim krovnim gredama, povišenim podom i betonskim stupovima s kapitelima od drveta, a zatvoren je u staklene panele bez okvira. Njegova transparentnost prolaznicima otkriva eksponate muzeja. U vrtu je, paralelno s transparentnim blokom, izložen niz žrvnjeva na udaljenosti koja dopušta da ih se vidi i iz unutrašnjosti muzeja. U stražnjem dijelu tog građevnog bloka postoji mala multimedijalna dvorana s auditorijem za predavanja koja je od izložbenog prostora odvojena karakterističnim crvenim zastorom.

 

Pekarska škola je sa svojim betonskim zidovima koji su je čvrsto usidrili u tlo ‘kao brod koji ulazi u luku’ u kontrastu s ‘lakoćom’ muzeja. Krovna ploča s vrtom nabire se prije no što se spoji s vanjskim zidovima i tijekom najvećeg dijela dana indirektno svjetlo ulazi u veliku kuhinju. Za ogromni središnji stol može se smjestiti do dvadeset ljudi za ručak ili večeru, a može poslužiti i kao površina za mijenjanje i dorađivanje recepata za vrijeme diskusija na satovima, za miješenje tijesta za kruh i tako dalje.

 

Drvena staza spaja dva nova volumena i mlin. Njegova iskrižana ograda inspirirana je verandama i balkonima lokalnih kuća. Nogostup dopušta posjetitelju da proviri kroz prozore u kuhinju za vrijeme nastave kada gostima iz higijenskih razloga nije dopušten ulazak, zatim se pretvara u most i vodi ga do nekadašnjeg skladišta brašna. Kao dio strategije za privlačenje posjetitelja, ovaj je dio pretvoren u bar i mali dućan kompleksa. Kroz staklenu plohu koja zamjenjuje neke od drvenih žaluzina pregrade između skladišta i strojarnice moguće je pratiti kretanje i buku žrvnja i svih pripadnih koloturnika i drvenih žljebova dok mlin radi.

 

Izražena karakteristika novih interpolacija iza stogodišnje zgrade mlina je uporaba materijala. Godovi dasaka od sirovog bora koje su korištene za oplatu utisnuti su u vidljivi beton. Sličnost teksture i pojavnosti novih zgrada sa starim mlinom s vremenom postaje sve veća, jer su i beton i obnovljene drvene obloge mlina već nekoliko sezona izložene vanjskim utjecajima. Velika počast odana je staroj gradnji.

 

S ovim spojem starog i novog, tradicije i invencije, muzeografija postaje sastavnim elementom arhitekture. Prvi izložak Muzeja kruha je sam mlin. Unutar muzeja vremenska linija prikazuje dugu povijest kruha, jedne od najstarijih i najraznolikijih namirnica u svijetu. Izlošci koji se odnose na pripremu kruha uzeti su iz ove regije: stari poljoprivredni alati, kuhinjsko suđe, povijesni dokumenti i fotografije. Osim toga, izložba je vrijedna i zbog sekcije o važnosti i značenju kruha u različitim religijama.

 

Cesta Taquari mlinova

 

 Nakon spontane inicijative za spas Colognese mlina ova je ideja dobila na zamahu, pa je cilj postao proširiti njezin opseg: mlinovi u susjednim gradićima kao što su Arvorezinha, Anta Gorda i Putinga također će biti obnovljeni i ponovo dovedeni u funkciju kako bi zajedno oformili Cestu mlinova.

 

Brasil Arquitetura Studio sada radi na projektu za mlin Castaman koji će, osim obnavljanja samog mlina, uključiti i maleni pansion i izložbeni prostor, također posvećen izradi kruha, u starom drvenom skladištu.

 

Naknadna razmišljanja

 

Suprotno težnji prema originalnosti – u ograničenom smislu riječi – arhitekti su otvorenih očiju prihvatili inspiraciju i bez predrasuda preuzeli utjecaje. Primjeri toga su linija vode koja teče uz rub zemljišta, upotreba grubog, vidljivog betona, izljev oluka u obliku groteskne figure na krovu škole i način na koji su predstavljeni muzejski izlošci. ti su elementi korišteni kako bi stvorili kreativnu cjelinu. Donošenje odluka je u isto vrijeme nonšalantno kada se radilo o idejama i rigorozno kada je neku trebalo obraniti. Ovo je proces koji oscilira između slučajnosti i kontrole i koji, usput rečeno, odražava i tehničke mogućnosti i ograničenja građevinske industrije u Južnom Brazilu. S jedne je strane uloga arhitekta ovdje shvaćena kao sveobuhvatna: sakupljač, povjesničar ili pripovjedač povijesti, onaj koji otkriva i onaj koji izumljuje. S druge strane, na njega se gleda kao jednog od mnogih koji sudjeluju u projektu tijekom cjelokupnog procesa. Uključenost lokalnih ljudi osnova je za uspješni nastavak projekta.

Dvije suvremene zgrade uspjele su uspostaviti obnovljeni kontekst za mlin koji je bio osuđen na propast. One su iznova oživjele izvorni moment nasljeđa imigranata u ovoj regiji i potvrdile njegov status kulturološkog, arhitekturalnog i tehničkog dokumenta prošlosti te ga ponovo uključile u svakodnevicu gradića.