Uspješna reanimacija

arhitekti Miller & Maranta
projekt Dogradnja i predgradnja starog hospicija St. Gotthard, Gotthard-Pass, Švicarska
napisao Jürgen Tietz

PDF Download: Klikni ovdje.
 

Ta je kuća nalik na planinu: visoko na prijevoju St. Gottharda s jedne strane strši uvis krov starog konačišta, a s druge se strmo ruši. Iz olovno sive kosine krova iskaču mansarde poput gromada stijena. Ponešto pomaknuta na stranu nalazi se zgrada Altes Hospiz u malom ansamblu na visini prijevoja, kao da igra tek sporednu ulogu pored Alte Sust – zgrade nekada namijenjene pretovaru roba, koja danas ima funkciju muzeja i hotela St. Gotthard. Pritom je zapravo riječ o povijesnoj jezgri cijelog kompleksa. Da bi ubuduće opet bila primjerena svojem povijesnom značenju, pobrinuli su se arhitekti Quintus Miller i Paola Maranta iz Basela, svojom pregradnjom i dogradnjom zgrade Altes Hospiz po narudžbi Fondazione Pro San Gottardo.

 

Danas izvana samo mali zvonik podsjeća na to da se ovdje nalazila kapela posvećena Sv. Gotthardu, još iz predromaničkog doba. Jednostavno kameno zdanje s apsidom dalo je tom mjestu na granici između sjevera i juga poseban pečat. Slije­dila su bolja i lošija razdoblja, stalne mijene proširenja i za­nemarivanja, pregradnji i dogradnji. Od 1623. mala je kapela bila dopunjena konačištem Altes Hospiz dok u 18. stoljeću obje zgrade nije razorila lavina – a onda su bile iznova podignute. Naposljetku su 1905. godine zgrade izgorjele u požaru. U obnovi je stara kapela nadograđena, a prenoćište je dobilo novu unutarnju strukturu, no ipak je karakter kuće od dva dijela ostao prepoznatljiv.

 

Svojom su aktualnom adaptacijom u hotelske svrhe Miller & Maranta u vizualnom smislu kapelu i konačište povezali ispod jedinstvenoga visokog krova u jednu cjelinu. Istovremeno su građevni korpus podigli za jedan kat te tako naglasili njegovu unutarnju monumentalnost usred grandiozne alpske panorame. Tek je na drugi pogled vidljiva lagana linija koja odvaja povijesnu od nove žbuke, tako se pri­rodno spajaju staro i novo kao da zgrada nikada nije izgledala drugačije. Možda je zaista čekala da dođu Miller & Maranta koji su svojom gradnjom slijedili tanku liniju između očuvanja i promjene. Taj je put nalik na pješačenje planinom, svaki korak mora biti napravljen s oprezom kako bi se izbjegao pad u izgrađenu banalnost.

 

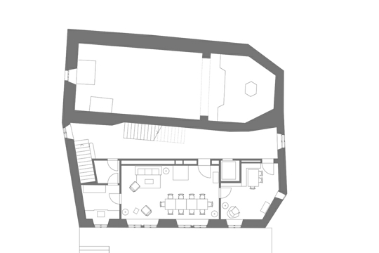
Različiti su vremenski slojevi, nataloženi brojnim pregradnjama konačišta u prošlosti, vidljivi pažljivom promatraču, ali su istodobno nenametljivite tvore smislenu građevnu cjelinu: stara drvena ulazna vrata, kamene stube, ali i spojeni lukovi prozora na prvom katu. Potječu iz faze obnove nakon 1905. i pridonose karakteru južne fasade. Iza njih se nalazi prostrana zajednička prostorija, sa starim kaminom i novom tamnom vapnenom žbukom, na koju se nastavlja nova kuhinja. Pravi je užitak prati posuđe u sudoperu od crnog betona, a zbog vidika koji se pruža čovjeku zastaje dah. Inače u unutrašnjosti dominira novo – Miller & Maranta su staroj kamenoj zgradi dali prefabricirani unutarnji život od drveta. Drvena konstrukcija očarava obrtničkom preciznošću. Arhitekti se tako pozivaju na tradiciju građenja drvetom, poz­natu u kantonu Uri već od 15. stoljeća.

 

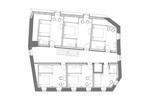
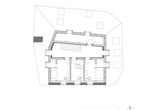
Od prvog kata ostala je samo stara kamena fasada, a s njom i nekoliko povijesnih prozora s okovima. Kao rezultat rušenja, radikalnih promjena i novog u Altes Hospizu nastalo je 14 udobnih novih gostinskih soba, sve ugodno mirišu po svježem drvetu, a lijepe su na arhaičan i jednostavan način: dvije stolice, jednostavna drvena komoda, niše s krevetom te impresivna planinska panorama. Kupaonice gostinskih soba imaju tamni, lagano sedefasto svjetlucajući namaz kao zaštitu od vlage. Krunu kuće čini dvo­etažni prostor ispod krova s velikim prozorom i slobodnim pog­ledom na planine.

 

Arhitektura Millera i Marante pokazuje onaj tradicionalni švicarski stav koji modernu ne shvaća kao isklju­čivu suprotnost tradiciji, nego kao njeno nastavljanje sukladno duhu vremena. To izražavaju, primjerice, obrtnička kvaliteta lijepoga željeznog rukohvata, zidne svjetiljke koje reflektiraju alpski karakter ili novi krov od olova koji siv i te­žak, perforiran mansardnim prozorima, leži na kući. Miller & Maranta uspjeli su svojom intervencijom postojeći karakter zgrade Altes Hospiz intenzivirati pa joj tako vratiti značenje koje je izvorno imala na toj lokaciji.