Umijeće dijaloga

arhitekt Drago Galić
napisala Vera Grimmer

 

Već i prije svog studija na Iblerovoj školi, Drago Galić dobio je priliku surađivati s najistaknutijim protagonistima zagrebačke arhitektonske scene - Ehrlichom te Denzlerom i Kauzlarićem, da bi od početka studija 1930. čitav niz godina bio Iblerov bliski suradnik. Između 1930. i 1940. godine Galić samostalno realizira niz projekata među kojima treba posebno istaknuti lapadsku Vilu Jakšić iz 1935. godine - građevinu koja bi trebala uči u svaku antologiju hrvatske moderne - da bi ranih pedesetih doživio vrhunac ali nažalost i kraj svog stvaralaštva. Tada je izgradnjom triju višestambenih zgrada u Zagrebu (Ulica grada Vukovara 35, 1953.; Svačićev trg, 1953. i Miramarska ulica, 1954.) postavio kriterije koje je i danas teško doseći. Dok su zgrade u Vukovarskoj i Miramarskoj svojom pojavnošću izravno vezane uz corbusierovski svijet oblika, kuća na Svačićevom trgu fascinira prije svega originalnošću i izvjesnom radikalnošću jezika. Dakako i izazov za arhitekta u tom slučaju bio je veći - ugaona parcela između jednog od najljepših zagrebačkih ozelenjenih trgova i prometnog bulevara, a prije svega direktno uz Kovačićevu palaču Slavex, što bi i za svakog drugog angažiranog arhitekta predstavljalo itekakvu šansu.

 

Moglo bi se pretpostaviti da je upravo dijalog s 'Majstorom' vodio k jedinstvenosti zgrade. Bez traga mimikrije autor se služi metodom kontrasta i to na suptilan ne preočit način. Na čvrsti Kovačićev korpus klasicističkog reda i motiva, Galić na izravnom kontaktu reagira prazninom vertikale loggia, signalizirajući distancu kako u oblikovnom tako i u sadržajnom pogledu. Diskretni linearni ornament isprepletenih zelenih kvadrata na tamnosmeđoj podlozi, izveden u tehnici sgrafita, što se rasprostire po korpusu kuće, mogao bi se u dijaloškoj interpretaciji pročitati kao odgovor na klasični Kovačićev motiv meandra ispod vijenca palače Slavex. Na perforirano pročelje palače arhitekt reagira ostakljenim fasadnim platnom, istaknutim ispred ravnine preostale fasade, slično kao što je to nešto ranije učinio Ivan Vitić na razrednom pročelju Osnovne škole 'Simo Matavulj' u Šibeniku.
 

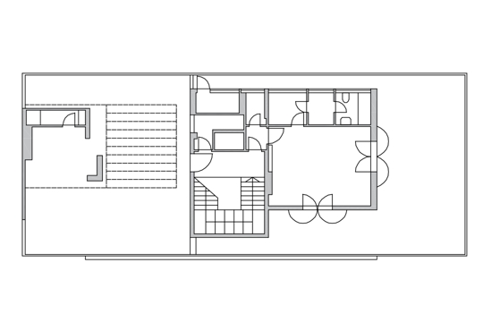
Tlocrt prizemlja

 

S barem dvije odrednice svoje kuće - ornamentom i središnjim ostakljenjem arhitekt se Galić 'ogriješio' o neka od osnovnih pravila 'bijele moderne' - zabranu ornamenta i iskrenost fasade. Naime isti raster ostakljenih površina parapeta i prozora te bakrenih šprljaka, teče ispred prostorija za dnevni boravak kao i ispred verande. Ova je doduše dostupna iz jednog dijela stanova, ali ipak njena prava funkcija je stubište u jezgri zgrade odvojiti od fasade. Stubište, osvijetljeno preko krovnog ostakljenja te staklenim prizmama ugrađenim u podeste, moglo bi se interpretirati kao referenca na slično tretirano stubište Iblerove kuće Markulin na zagrebačkom Ribnjaku.

 

Priključak na susjednu historicističku zgradu u Žerjavićevoj ulici znatno je manje spektakularan. Segment jednostavne perforirane fasade slobodnog prizemlja formulira prijelazni element između anonimne ulične fronte i jedinstvene autorove uglovnice, zapravo predstavlja na neki način njen passepartout. Ovaj, zbog građevne regulative niži, drugačije tretirani dio zgrade zatvara gospodarsko dvorište, koje bi s ozelenjenom terasom, ustvari krovom garaže i otvorenom galerijom koja veže glavnu i sekundarnu zgradu, moglo imati gotovo bidermajerski idilični ugođaj.

 

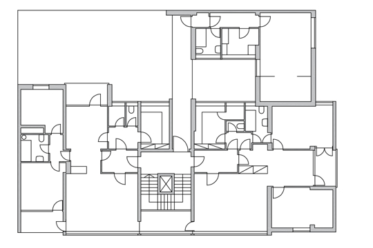
Isto tako važna, ako ne i važnija od pojavnosti zgrade bila je za arhitekta Galića tlocrtna organizacija stanova. Ovdje tlocrti dosižu gotovo kvalitetu stanovanja u obiteljskoj kući, što se pokazuje u uvijek dvostranoj pa i trostranoj orijentaciji, opremljenošću najmanje jednim vanjskim boravišnim prostorom, krajnje promišljenom tlocrtnom organizacijom. Jezgru uvijek čini razvedeni dnevni boravak - centar obiteljskog života - iz kog se ulazi u sklop prostora intime kao i u prostore 'produkcije', pri čemu se uz kuhinje vežu ostave i degažmani, a katkada i gospodarski prostor. Horizontalna kao i vertikalna lociranost uvjetuju tlocrtne varijante pri čemu se uvijek nastoji postići maksimum moguće kvalitete stanovanja. Tu se radi o luksuznim, ali ne i rastrošnim stanovima, premda se je svojedobno arhitektu Galiću upravo luksuz predbacivao. To ga je s pravom ogorčilo, jer se takozvani luksuz ovdje pokazuje baš u njegovoj brizi za održivost, udobnost, zadovoljstvo stanovanjem, vrijednostima koje novcem nisu mjerive.
 

Tlocrt karakterističnog kata

 

Dok se zgrade u Vukovarskoj i Miramarskoj relativno 'dobro drže', zanemarenost i izvjesna neumivenost kuće na Svačićevom trgu uskoro bi mogli doseći točku s koje nema povratka. Društvo bi konačno trebalo postati svjesno činjenice, da i moderna arhitektura predstavlja nadasve vrijednu kulturnu baštinu.

 

U socijalističkim vremenima osobito dobri obrtnici dobivali su titulu 'Državni majstor zanata', a da se je dodjeljivala i arhitektima Drago Galić bi je prvi zavrijedio. Njegovo vladanje materijalima, volumetrijskim odnosima, detaljima, stoji u direktnom kontinuitetu s majstorima kao što su bili Viktor Kovačić ili Hugo Ehrlich, njegov prvi poslodavac. Tako je i jedan od bitnih elemenata fascinacije kuće na Svačićevom trgu baš očigledno i samo po sebi razumljivo vladanje metierom. No s današnjeg stajališta važnija je Galićeva neortodoksnost. U otporu prema dogmama nalazio je vlastiti put, koji međutim nije bio proizvoljan ni svojevoljan, već uvijek u službi humane obaveze arhitekture.

 

Literatura: Ljerka Biondić: Kritička analiza stambene arhitekture u djelu arhitekta Drage Galića - evolucija i tipologija, doktorski rad, Arhitektonski fakultet Sveučilišta u Zagrebu, 1996.