U svakom povijesnom urbanom ambijentu sadržane su mnoge karakteristike prethodnih razdoblja čija ukupnost čini kontekst. Na koji način u njega ući, a da se pritom ne izazovu neželjene posljedice, kako ostati dosljedan pokazujući odgovornost prema prostoru i njegovim lokalnim specifičnostima te istodobno argumentirati suvremenu intervenciju? Koji je ispravan način uzimanja u obzir povijesnoga naslijeđa, kontinuiteta oblika i nekadašnjih funkcija koji teško podnose promjene i novosti, ako ih uopće podnose?
Međusobna ovisnost povijesnoga slijeda i ambijenta može rezultirati raznovrsnim postignućima. Ona su u primjeru rekonstrukcije kuće za odmor u Jelsi na otoku Hvaru arhitekata Dražena Juračića i Jelene Skorup obogaćena konceptom percipirane povijesnosti objekta i konteksta interpretiranih iz pozicije sadašnjosti.
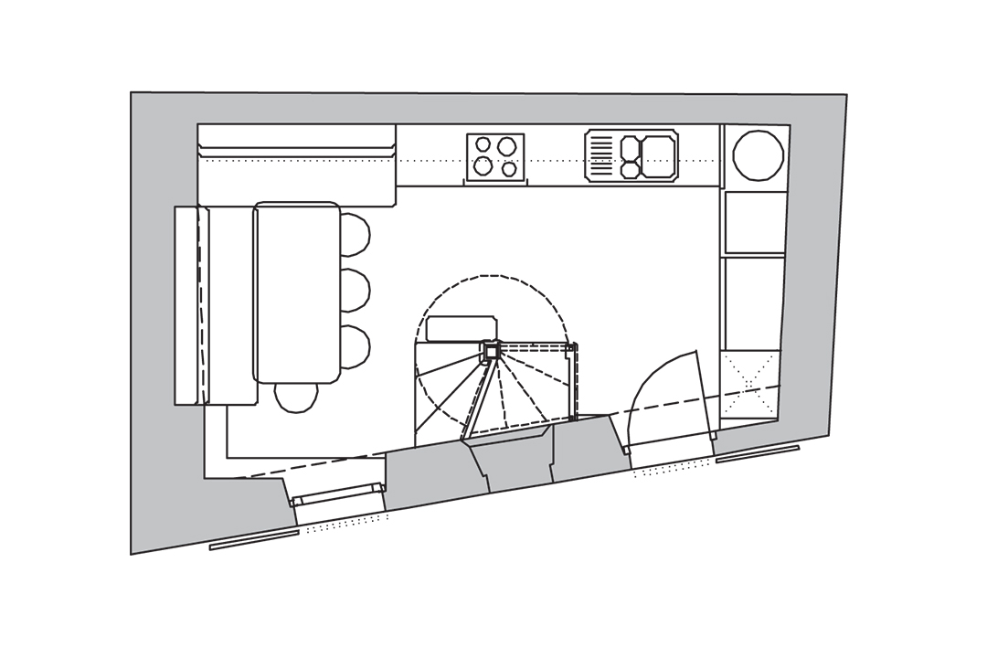
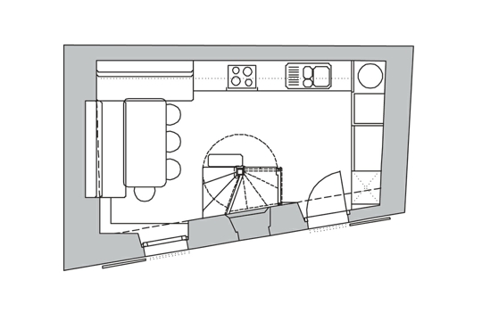
Kamena kuća nepravilnog minijaturnog četverokutnog tlocrta, širine 6,5 i dubine 3 metra, smještena je u povijesnom dijelu naselja, u jednoj od ulica koje se uspinju južno od župne crkve sv. Fabijana i Sebastijana. Ničime posebno obilježena, jednostavnog volumena i – s obzirom na podneblje – karakterističnih rustičnih pročelja, kuća je prilagođena poziciji i veličini parcele. Njezin oblik i skromna dimenzija proizlaze iz konteksta kojemu pripada – težačkom naselju u Jelsi koje je, prema slobodnoj procjeni, nastajalo između 16. i 19. stoljeća. Građena je u tri faze: najstariji sloj kamena je prizemnica, vjerojatno u funkciji štale ili kakvog drugog gospodarskog objekta. Nakon nekog vremena dograđen je kat, također od kamena, da bi 60-ih godina 20. stoljeća objekt dobio betonirani drugi kat sa zidovima i balkonom od lijevanoga betona.
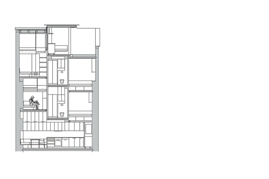
Pozicija i veličina parcele, njezina skučenost i nepravilnost te dokazano najstariji prizemni sloj argumenti su koji govore u prilog tezi da se isprva nije radilo o stambenom, nego gospodarskom objektu, što je u određenoj mjeri omogućilo slobodniju prostornu razdiobu. Nakon rekonstrukcije unutrašnjost je podijeljena u četiri etaže: kuhinja i boravak u prizemlju, dva kata (svaki s po dvije spavaće sobe i kupaonicom) te potkrovlje djelomično zaključenog jednostrešnim krovom, dok drugi dio zaprema mala terasa s koje se otvara pogled na jezgru naselja te na sjeverni i istočni dio otoka.

Povijesna slojevitost primjećuje se na pročelju primarno zbog rasporeda i različitih veličina otvora. Nakon recentne pregradnje otvori su udruženi na nov, grafički zanimljiv način naslućujući dinamiku kretanja uvis postignutu u unutrašnjosti postavom stubišnog “jedra” uz pročelni zid. Krajnje racionalizirana prostorna organizacija postignuta je, između ostalog, stupnjevanjem katova i kupaonica postavljenih u svojevrsne međuetaže (što je omogućeno ovješenom konstrukcijom), dok samo stubišno “tijelo”, odnosno otvorena metalna stubišna konstrukcija, u velikoj mjeri određuje disperziju prostorija, što u konačnici tumačimo kao interpretaciju arhitekture brodskih interijera.
Dugo se vremena fluidnost modernističke prostorne organizacije smatrala ključnim faktorom uspješnog privatnog stambenog prostora (pa tako i onoga namijenog odmoru). U zadanom kontekstu arhitekti Dražen Juračić i Jelena Skorup nisu bili u mogućnosti ishoditi povezivanje unutrašnjeg s vanjskim – intimnim – prostorom, pa je stoga svo zbivanje ograničeno unutar kuće. Točnije, sve do svojevrsne kulminacije – male terase s koje se (konačno) pruža pogled u širi prostor, a koju doživljavamo kao spomen na tradiciju ljetnih kuhinja smještenih na terasama kuća u povijesnim urbanim sredinama jadranske zone.

Zbog načelno tradicionalne razdiobe sadržaja po etažama kuća za odmor u Jelsi ima nešto od graditeljske memorije konteksta u kojem se nalazi. Juračić i Skorup uspjeli su uravnotežiti funkcionalost potrebnu novim korisnicima i elemente iščitane iz prostorne cjeline povezavši ih i intepretiravši na decentan, u unutrašnjosti dinamičan način, bez interpretativnog priklanjanja bilo kojoj povijesnoj inačici. Ne sjedilačka, već u pokretu (rastvorena stubišna konstrukcija utječe na dinamiku kretanja po vertikali), kuća za odmor arhitekata Juračić i Skorup svojevrsno je sklonište koje može zadovoljiti raznovrsne potrebe korisnika. U njoj se komfor očituje u egzistencijalnom minimumu vješto raspoređenih, perfekcionistički izrađenih dijelova.
Obiteljske kuće često smatramo univerzalnim vrijednostima čiji je preduvjet privatnost, a nerijetko ih identificiramo uz pomoć pojma individualno. Kako postići individualnost u kontekstu definiranom na spomenuti način? U kući u Jelsi uspješno se, bez agresivnih sredstava, omogućila privatnost korisnicima čije se dnevne aktivnosti tek naslućuju u prizemnoj zoni – slično kao i kod ostalih kuća obalnoga pojasa. Posmične plavo obojane škure na pročelju grafički su povezane bijelim žbukanim okvirima i vizualno su najeksponiraniji dokaz preuređenja. Prožetost s okolinom događa se na posljednjoj etaži – maloj terasi, dok su sva ostala zbivanja zbog niza već spomenutih uvjeta organizirana isključivo unutar kuće. Bez naracije i konceptualno-dramatskih pauza (za koje ionako nema mjesta ni prigode), organizirana unutar sebe, kuća u Jelsi posjeduje profinjen karakter zahvaljujući promišljenu dizajnu opreme i detaljno razrađenoj strategiji korištenja. Unutar tog malog prostora realiziran je odličan interijer u kojem su arhitektonske ambicije usklađene sa zadanim okolnostima.