Arhitektura treba biti primjerena i dostižna


arhitekti Zoran Boševski, Boris Fiolić
razgovarali Maroje Mrduljaš, Vera Grimmer, Ante Nikša Bilić

PDF Download: Klikni ovdje.
 

Razgovarali u Zagrebu 18. veljače 2009.

 

 

Studio BF jedna je od onih vrijednih hrvatskih arhitektonskih praksi koje su inteligentno premostile prijelaz od socijalističkog društvenog poretka poznih 80-ih u novi socio-ekonomski okoliš 90-ih godina 20. stoljeća. Studio BF važan je protagonist hrvatske arhitektonske scene srednje generacije čiji su arhitekti svoj izraz razvijali kroz kreativan i i energetični stav prema tranzicijskim okolnostima unutar kojih su djelovali. Studio BF sustavno provodi evolutivnu koncepciju kompetitivnog arhitektonskog ureda u kojem su radili ili rade posebno talentirani autori, spremni za suočavanje s projektima svih mjerila i programa. To pokazuju uspjesi Studija BF na aktualnim natječajima i realizacijama koje u svom izrazu baštine iskustvo modernosti i reinterpretiraju suvremene tendencije.

 

ORIS: Započeli ste svoju karijeru krajem 80-ih i početkom 90-ih godina. Pripadate ‘leopardima tranzicije’, što znači da ste jedni od prvih arhitekata koji su počeli razmišljati unutar tržišnog konteksta. Niste imali iskustvo rada u velikim socijalističkim biroima, nego ste svoju praksu utemeljili radeći istovremeno kao menadžeri i arhitekti te suinvestitori.

 

Boševski: To su bile sive godine, borba da stasali ured preživi.

 

Fiolić: Krajem 80-ih postojala je uglavnom stambena izgradnja, i to u pravilu društveno usmjerena, a državne investicije su jedine pokrivale arhitekturu većih dimenzija. Mi smo osvojili 1. nagradu na natječaju za stambeno naselje Zelengaj, koje je ipak bilo bitno drugačije, pa se nismo morali voditi tim standardima jer je to bila čista privatna investicija. Da nije bilo Zelengaja, ni mi ne bismo tako rano krenuli.

 

Boševski: Ti prvi projekti koje su pokrenule stambene zadruge su bili paradigma svih daljnjih tzv. urbanih vila. Stambena izgradnja je početkom 90-ih do kraja 90-ih bila temeljena na urbanim vilama. Nisu se gradili veliki stambeni kompleksi, nije se izgradilo ništa što je bilo i malo šireg značenja.

 

ORIS:Teorija o urbanim vilama se aktualizirala 80-ih kao posljedica berlinske IBA-e; ideja je bila da treba redefinirati tipologiju stanovanja i sl. Vi se nastavljate na teorijski već impostiran model koji dalje razvijate. Natječaj za Zelengaj je objavljen 1989. godine. Zanimljivo je da se već krajem 80-ih, dakle još uvijek u socijalizmu, pojavljuju novi modeli financiranja stanogradnje.

 

Boševski: Stambeno zadrugarstvo nije novo, ali je jedino koje je počelo raditi drugačiju tipologiju.

 

Fiolić: To su bili prijelazi iz društvenog u tržišno gospodarstvo. Krajem 80-ih i početkom 90-ih postoje stambene zadruge kao prvi korak prema tome da netko proizvodi stan da bi ga prodao, čista tržišna kategorija. Polovicom 90-ih, kad su se masovno počeli graditi stambeni objekti manjih dimenzija, stan stvarno postaje tržišna kategorija, pa time i arhitektonski posao postaje puno usmjereniji.

 

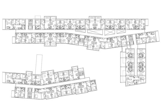
ORIS: Urbane vile su se gradile na zelenim dijelovima Zagreba. Bio je to znak jedne zanimljive društvene konstelacije jer je postojao interes za stanovanjem višeg standarda koji dotad nije bio prakticiran, nije bio prisutan na tržištu. Javljaju se težnje prema vrijednostima i običajima građanske srednje klase koja se, doduše, tijekom 90-ih preoblikuje uslijed realnih ekonomskih nemogućnosti. Ali ta želja za ‘zapadnim’ standardom krajem 80-ih već daje neku naznaku promjena koje tinjaju u društvu. Sličan trend se vidi i u interijerima jer projekti interijera 70-ih i 80-ih odustaju od socijalističkog egalitarizma i uvode standarde i uzuse poput prestiža ili povratka tradicionalnijem poimanju građanske udobnosti. U vezi s tim društvenim transformacijama postavlja se pitanje urbanizma. Na početku svog rada time ste se bavili - bili ste i nagrađeni za urbanistički projekt za Ljubljanu. Ako možemo napraviti jednu usporedbu, vaš novi projekt Pavlenski put po svojoj veličini također zahtijeva urbanističko rješenje - ima 750 stanova, što čini stanovništvo nekog manjeg mjesta. Bilo bi zanimljivo da usporedite parametre važne za ljubljanski projekt, koji se još temelji na jednom drugom društvenom uređenju i paradigmi, i parametre ovog novog projekta, koji odražava današnji status društva.

 

Boševski: Ljubljana je bio anketni natječaj i zanimljiv rad jer smo tada razmišljanja o urbanitetu mogli slobodnije izraziti. Predmet natječaja je bio prostorni plan, a nama je on bio zanimljiv jer je područje natječaja bila cijela Ljubljana. Interpolirali smo se u cijeli grad, uglavnom smo hvatali neke infrastrukturno važne točke kao željeznička stanica i park Tivoli. To je bilo doba u kojem smo na urbanizam gledali kao na podizanje stupnja civilizacije, a ne kao na derivat ideologije,što vrijedi i danas.

 

Fiolić: Pokušali smo cijeli urbanizam Ljubljane stimulirati kroz rješavanje pojedinih točaka za koje smo smatrali da bi mogle generirati novu sliku grada. Studentski grad, Tivoli, željeznička stanica, Stari grad dobivaju nove sadržaje i forme.

 

Boševski: Studentski grad smo formirali kao burg. Nacrtali smo prave srednjovjekovne bedeme oko njega, uključujući i obrambeni jarak. To je bila aluzija iza koje i danas stojim, a to je autonomija sveučilišta koja se, po mom mišljenju, mora braniti gotovo oružjem. Kada sveučilište izgubi autonomiju, onda grad više nije grad, onda je u vlasti politike i kapitala. On postaje matrica utjecaja snage kapitala, intervencije i politike, a u tom trenutku je samo simulakrum.  A što se tiče stambenog naselja Pavlenski put, on pokušava napraviti malu oazu u jednom segmentu stanovanja, a sad je samo pitanje da li je stanovanje i stambeno susjedstvo još uvijek socijalni okvir u 21. st. ili on to stvarno više nije. Stambeno susjedstvo se relativno malo spominje; kao socijalni okvir postoje druge socijalne grupe - poslovne, asocijativne i dr. s obzirom na neke nove afinitete. A stambeno susjedstvo je možda jedini istinski aproprirani prostor grada, kao u projektu Sociopolis Vincentea Guallarta, sa Sharing towerom u Valenciji, u kome postoje mogućnosti zajedništva zbog same strukture stanova. Naš projekt pokušava pronaći barem dio tog zajedništva i nadamo se da će se stanovnici u tom prostoru zelenila malo rekreirati; to je maksimum koji mi tamo možemo očekivati. On je komercijalna tvorba, lijepa ili ružna, meni to u stambenoj arhitekturi prestaje biti toliko važno. Važnije je da li su hodnici ili zajednička stubišta nešto na čemu se ljudi stvarno okupljaju i žive kao nekad na skalinama gradova ili kuća ili to više nije to.

 

ORIS: Primjerice, kao u koncepcijama Team X.

 

Boševski: Da, kao i u ruskoj arhitekturi 20-ih godina, ali to je druga ideologija, ideologija kolektivizma a ne zajedništva.

 

Fiolić: Prostor ovakve high density parcele postaje prostor socijalnog kontakta. Pokušali smo izvesti čovjeka uz njegovih 56 kvadrata i dati mu nešto zajedničko. To je možda jedan od rijetkih pokušaja u Hrvatskoj. Investitor i krajnji kupci su to osjetili kao višu vrijednost stana.

 

Boševski: Imamo jedan dio kuće u kojem smo namjerno ostavili slobodno prizemlje baš za natkrito okupljanje. Za taj smo se dio borili; nastojali smo da se tu ne napravi lokal. Nekad je postojala obveza projektiranja barem spremišta za dječja kolica ili prostora kućnog savjeta.Ne bi smjelo biti totalne eksploatacije prostora. Regulativa se investitora ne tiče, a i ne treba ga se ticati, ali se, koliko vidim, ne tiče ni politike, ni bilo kakvih institucija, a ne tiče se ni znanosti, koja uopće nije kritična u tom smjeru. Ne postoje nikakve sociološke analize najnovijih naselja. Prema tome postoji gotovo ignorantski odnos. Obavljaju se samo analize ponude i potražnje, a tako se ne gradi jedna zajednica.

 

ORIS: Monofunkcionalnost bi se mogla riješiti hibridnim strukturama, ali te strukture onda nisu rezultat nekog socio-ekonomskog promišljanja, nego se rade jedino ako imaju tržišno opravdanje. Životni stilovi i načini života se mijenjaju, mijenja se struktura obitelji, sve je više kućanstava s jednom osobom ili jednoroditeljskih obitelji. O takvim temama bi trebalo voditi računa u smislu fleksibilnosti, mogućnosti participacije, itd.

 

Fiolić: Da, posljednji projekti su na neki način tržišno transformabilni. Kupac kupuje sve više bruto kvadrat, a ne stan. To je jedna bitno promjenjiva kategorija. Sigurno je jedno ako radite neki Pavlenski put sa puno jedinica od 56 m2, a druga je stvar kad diveloper prodaje bruto kvadrat nekog otvorenog stana. To je nužno povezano s konstrukcijom i strukturom objekta.

 

Boševski: To je jedna teorija, ali postoji i druga koja kaže: zašto bismo mi transformirali okoliš, kad se ionako današnji čovjek proglašava nomadom, beskonačno pokretljivim i adaptabilnim. Postoji koncepcija koja traži rješenje u normizaciji. Stvar se rješava normiranjem i političkim odlučivanjem. Neki misle da se poreznom politikom treba destimulirati da, recimo, jedan čovjek ili mala obitelj živi u ogromnom stanu. Sredina bi trebala biti normirana svojim centrom, vrtićem i školom i kroz nju prolaze ljudi raznih generacija koji u određeno vrijeme trebaju taj vrtić ili školu.

 

ORIS: Stanovanje – hotel.

 

Boševski: Tako je. Taj tip stanovanja u kojemu stan postaje jedna jedinica – roba kroz koju se fluktuira. Neki ekonomisti su utvrdili da su to ogromne uštede resursa.

 

Fiolić: To je dosta pragmatično, ali moramo akceptirati da je horizontalna pokretljivost u Hrvatskoj nula. Mislim da transformabilnost treba biti prilagođenija pokretljivosti unutar jednog okvira.To znači da čovjek može nekako svoj život transformirati u određenom okviru. U Americi se stanovi iznajmljuju, a kod nas su u 90% privatno vlasništvo.

 

ORIS: To je naravno kompleksno sociološko i kulturološko pitanje jer je američki način života razmjerno drugačiji od europskoga bez obzira na utjecaj globalizacije. Stanovanje je ipak temeljna egzistencijalna potreba na koju najmanje utjecaja imaju globalizacijski procesi.Čini mi se da tradicija tu duže i živi i opstaje i da to treba prihvatiti kao činjenicu u sklopu projektiranja. U duhu tih razmatranja mislim da si arhitekti uzimaju malo previše slobode u interpretaciji socijalnih dinamika, što je nešto što vuče svoje korijene iz modernizma, možda još i iz ranijih vremena, iz utopijskih, prosvjetiteljskih pokreta, od Saint Simona pa nadalje. Arhitekt kao urbanist smišlja društvenu zajednicu, ali to nije uloga arhitekta. 

 

Fiolić: Arhitekt je medijator, on definitivno nije pokretač. On je medijator i pokušava te elemente objediniti u jednu cjelinu.

 

ORIS: Impulsi odista mogu doći iz arhitekture; arhitektura može ponuditi određene modele koji potpomažu različite procese.

 

Boševski: Arhitekt može jako puno pomoći investitoru da ne propadne u svojoj želji za zaradom. Mi smo pokušali pomagati - Pavlenski put je imao dopušteni koeficijent izgrađenosti 3,5, to znači da od tlocrtne površine parcele možete sagraditi 3,5 puta veću kvadraturu nadzemne građevine.

 

ORIS: To je velika gustoća.

 

Boševski: To je ogromna gustoća, ali ta je brojka fascinirala investitore i zbog nje smo ga mi 6 mjeseci morali uvjeravati da bismo na kraju postigli koeficijent 2,76. To je bilo kao da otimamo nekome novce iz džepa. Ali i investitori danas prolaze određenu edukaciju i vide da bi, da smo slučajno napravili koeficijent 3,5, broj prodanih stanova bio jednak ili manji nego kod ovog koeficijenta 2,76.

 

ORIS: Kako je moguće da u hrvatskom urbanizmu imamo takve koeficijente koje, metaforički rečeno, podnosi Manhattan, ali ne podnosi Špansko.

 

Boševski: Danas ih, na sreću, nemamo, ali 90-ih su se dogodile pogreške u Zagrebu, npr na Trnju ili Trešnjevci. Očito je to danak koji jedno društvo u tranziciji mora platiti.

 

Fiolić: Uvijek projektantski proces polazi od urbanizma. Ishodište je urbanizam, prvo makro, pa mikro situacija, pa tek onda dođeš do nečega. Mikrourbanističko projektiranje u Hrvatskoj postoji samo u naznakama, a ne kao dio integralnog razmišljanja o prostoru. Posebno u Zagrebu; tu GUP određuje koeficijente. A to su vrlo općeniti tekstovi, tu mikro projektiranja nema.

 

ORIS: Bez obzira na sve urbanističke probleme vi ste kroz 90-te pokazali da je ozloglašenom tipologijom urbane vile moguće postići kvalitetna stambena rješenja.

 

Boševski: Da ali sada radimo i na drugim tipologijama, npr. na tornjevima. Imamo hrpu problema- Na primjer, prizemlje objekta ne može po GUP-u biti više od 4 m bruto, odnosno 4,5 m ako služi i kao kolni prolaz. U natječajnom radu imamo tornjeve od 38-39 etaža, a visina ulaznog hala cijelog tog ekskluzivnog, korporativnog objekta mora biti zgurana na 4 metra bruto. To znači da morate raditi nekakav horor. Ali, postoji iznimka. GUP kaže da visina smije biti veće ako za tim postoji tehnološka potreba. Sad morate tumačiti da tehnologija ulaznog hala neke zgrade zahtijeva Džamonjinu skulpturu koja je visoka 7 metara i ako tako piše u programu, onda to možete isprojektirati i GUP će to potvrditi. Zbog negativnog iskustva je najlakše odrediti zabranu.

 

ORIS: Zabrana nužno vodi prema osiromašenju.

 

Boševski: Ili prema kojekakvim smicalicama, u čemu smo svjetski prvaci.

 

ORIS: Ja bih se vratio na stambenu tipologiju. Mislim da je POS kao državni poticaj izbacio tipologije koje su refleksija nizozemskih. Ja mislim da se ta tipologija nije u posljednjih 10 godina promijenila od tipologije 50-ih i 60-ih godina. Bez obzira na to što stalno govorimo o nekim drugačijim načinima života i što se čitavo društvo promijenilo, stanovanje je ostalo razmjerno nepromijenjeno.

 

Boševski: To je točno. To je i razmišljanje arhitekta Lenka Pleštine - ti imaš stari tip stanovanja za čovjeka koji zahtijeva najmoderniju tipologiju u gadgetima, mobitelima, u svemu, za čovjeka koji vozi najnoviji automobil.

 

ORIS: Kad gledaš neke vedute Zagreba iz 30-ih godina, vidiš neke zgrade pred kojima su stari oldtimeri. Te zgrade su jako svježe, tada su ili bile malo pretjerano svježe ili je tu nastao neki defekt, nesrazmjer.. Tada su bile update u odnosu na te automobile, pratile su taj trend. Društvena struktura je to tražila.

 

Fiolić: Danas se ništa bitno nije promijenilo osim strukture obitelji koje stanuju u tom stanu. Gubi se klasična tročlana ili četveročlana familija, stan gubi sobnost. Ima jako puno mladih ljudi koji žive u nevjenčanim zajednicama ili mnogo žena koje žive samo sa svojim djetetom. Tu se u strukturi obitelji nešto mijenja, a u klasičnoj strukturi stana se nije apsolutno ništa promijenilo.

 

ORIS: Govorimo li o fleksibilnosti - što je funkcija u stanu striktnije definirana, to je fleksibilnost manja. Dakle, ako je sve definirano do u pola kvadrata i ako je distribucija po sobama i ostalome tako direktno normirana, onda je fleksibilnost manja. Ukoliko je struktura stana otvorenija i neutralnija, fleksibilnost je veća. To ne znači da stijene moraju biti pokretne ili klizne, nego to znači da je organizacija stana drugačije postavljena.

 

Fiolić: Apsolutno se slažem. Ali kod stanova koji se rade za tržište moraš imati definiranu poziciju, recimo, kupaonice ili kuhinje, pa to postaje vrlo upitno.

 

Boševski: Mi sad projektiramo neke primjere gdje se unaprijed izvode instalacije potpuno nevezane za sobnost stana; naprave se 3-4 izvoda više da bi fleksibilnost bila veća. Zanimljivo je ovo što rade Švicarci - vidio sam neke primjere te njihove ‘poticajne stanogradnje’. To je dimenzija 10 x 10 metara prefabricirane prednapregnute konstrukcije i to su stanovi bez ijednog nosivog stupa unutar tlocrta stana. Razdioba je vrlo jednostavna, sa vrlo sofisticiranim pročeljem zbog njihovih propisa za zaštitu od buke i uštede energije. Kod nas bi to bile super vile koje si priušte samo super bogataši. Tamo to mora biti standard. Postoje samo ta 2 čvora i ljudi uglavnom mogu planirati postavu razdjelnih stijena. To je, jednostavno rečeno, participacija. Sve instalacije su u podovima, nema utičnica u zidovima. A to stoji otprilike 2000 švicarskih franaka po m², što je za njihove prilike povoljno.Što se tiče standarda, čini mi se da je neprimjerenije raditi ovako male stanove od 58 m² nego ponuditi neopremljen stan od 100 m².

 

ORIS: Vi ste, osim sa stanovanjem, startali i s interijerima. Da li su vam ti interijeri pomogli ili odmogli u budućem radu. Pretežno se ljudi kad izađu iz interijera i dođu u neko veliko mjerilo pogube jer ne mogu izbalansirati taj odnos.

 

Boševski: Interijer je jednako teško kao projektirati stolac. To je univerzalni problem koji trebaš rješavati i onda vidiš sve svoje nemoći. Kroz interijer se vidi koliko si nemoćan.

ORIS: Kako se materija opire.

 

Boševski: Tako je. Jer je to jako konkretno. Ako to prodješ, to će ti puno pomoći. Mene fascinira Siza i njegov paviljon na Expou u Lisabonu - istokareni okviri, uključujući i letvice i šarafe, svi okovi koje je on projektirao su gotovo rudimentarni, a nasuprot tome imate tehnološki zahtjevnu ovješenu konstrukciju betonske tende. Ta strast za izradom detalja govori o širini njegovog okvira razmišljanja. Čini mi se da arhitekt to mora proći.

 

ORIS: Možda je Scarpa za to najbolji primjer.

 

Boševski: On je esencijalan, nije radio velike projekte, ali to je jedan svijet koji otvara mnogo drugih svjetova.

 

ORIS: Kakvu ulogu igra u vašem radu tendencija prema eksperimentu, istraživačkom stavu u arhitekturi, istraživačkom u smislu istraživanja strukture, teksture, itd. Kao primjer bi se možda mogao uzeti hibridni objekt Ribnjak, gdje reagirate na dosta kompliciran gradski okoliš. Da li biste se u suštini htjeli usmjeriti prema tome, ali su prilike takve da ste više orijentirani, možda ne sasvim svojom voljom, na stambenu izgradnju.

 

Fiolić: Stasali smo na stambenim projektima, a posljednjih se godina to polje djelovanja raširilo. Danas je naša stambena aktivnost sve manja, a sve više ima drugih objekata. Ako se već govori o istraživanjima, mi, moram priznati, pokušavamo načiniti jedan korak dalje. Projektiramo dvije škole, hotele u Zagrebu i Dubrovniku, pravoslavnu crkvu, puno poslovnih objekata koje sada radimo, dakle jedno široko područje. Uvijek je tu veza koja izlazi iz urbanizma - to nas muči još od prvih radova. Kako se mijenjaju funkcije i objekti koje radimo, mijenja se i pokušaj istraživanja što u materijalima, što u strukturama, što u fasadama, što u strukturi objekata generalno. Imamo sad jedan projekt koji je u gradnji, u Sisku - Srednju obrtničku školu sa sportskom dvoranom. Sve više rješavamo inžinjerske probleme u XL dimenzijama. Počela nas je fascinirati ta inženjerija, to arhitekta može dosta ponijeti. Ti novi neboderi koje projektiramo su objekti koji imaju neke svoje konstruktivne zakonitosti. Tu su neka inženjerska znanja koje mi apsolutno nikada nismo učili, nismo imali ni primisli da bismo to mogli raditi. Uvijek je interesantno ako u svakom novom projektu pokušavaš isključiti svog Halla 9000.

 

Boševski: Kad govorimo o natječaju za zagrebački aerodrom, razmišljali smo kako napraviti novu gradnju, a primijeniti primjerenu tehnologiju. Ljudi su kod nas malo i zavedeni; gledaju projekt Sanaa koji su napravili Glass Pavilion, a nitko nije pročitao da je to staklo tehnološki proputovalo cijeli svijet da bi se opet vratilo u Toledo. To je u redu i to mora postojati, ali na neki se način čini da bismo sebe trebali pokušati iskazati jeftinije. Jako lijepe stvari se mogu raditi od vrlo jednostavnih materijala. To znači vratiti se onome da arhitektura bude primjerena, da je dostižna i da ne predstavlja nekakav raskorak između želja i mogućnosti. Za to treba jako puno crtati i truditi se. Najlakše je nacrtati kuću i željeti primijeniti neku high tech tehnologiju koju je netko drugi izmislio.

 

Fiolić: Što se tiče aerodroma, to je gotovo paradigmatski princip natječaja koji se desio u Hrvatskoj - prvi puta tako velik, međunarodni, zavodljiv, a tako promašen. Objekt relativno malih dimenzija privlači svjetsku elitu. Proveo se natječaj koji je inaugurirao tehnologije koje apsolutno nemaju veze s ovom zemljom. Ja ne govorim o sudionicima natječaja nego o principu razmišljanja i žiriranja. Stvara se privid da je sve moguće, a ustvari nije moguće ništa. Suludo je da jedno cijelo društvo razmišlja na način da je ono što se radi u Londonu ili Tokiju moguće i u ovoj zemlji. Nisam siguran da je tek tako moguće transponiranje iskustva.

 

Boševski: Zašto bih ja čovjeku koji prvi put dođe k nama na aerodrom pokazivao finsku tehnologiju, njemačku klimatizaciju, talijanske podove, zašto bi moja prezentacija kazivala da sam ja tehnološki napredniji nego što jesam. Glavna kritika našem radu je bila da je skroman. E sad, zašto skromnost ne bi bila vrlina?

 

ORIS: Meni je Fosterov aerodrom prekrasan, možda najljepši koji sam od njega vidio.

 

Fiolić: Točno, poetičan je, ali sam siguran da bi za 6 mjeseci on znao tu poetiku preseliti u vrlo egzaktni projekt koji se može sagraditi; oni to mogu. Mi nemamo nekakve velike tehnologije. Dakle, tehnologija nije naš resurs, već je naš resurs isključivo prostor prema kojemu baš i ne gajimo respekt.

 

ORIS: To što ste sada rekli ide prema težnji stvaranja određenog identiteta koji će biti stvoren i ograničenim sredstvima.

 

Boševski: Da, najbolja riječ za to je prikladnost - ono što bi nama najviše odgovaralo i u smislu identiteta, i u smislu ekonomije, u svemu. Svoju struku valja braniti najžešće; ona bi mogla biti napadana i kritizirana sa svih mogućih aspekata. Kad je možeš opravdati u jako puno aspekata, onda mi se čini da ima pozitivan pomak i u socijalnom, i u materijalnom smislu i u pogledu primjerenosti. Španjolci ili Norvežani možda imaju takve odnose prema stvarima.

 

ORIS: Zbog toga što imaju dugu tradiciju koja je evolutivna i nema takve prekide kakvi su se događali u Hrvatskoj.

 

Fiolić: Teško možeš pobjeći iz odijela koje nosiš cijeli život. Rado bih navukao neko odijelo i živio u New Yorku.

 

Boševski: neprimjerenu, rigidnu i napravili neke gotičke urnebese jer su imali novaca, jer su bili velika pomorska i mediteranska sila. Možeš se diviti Veneciji, ali je sreća da postoji i ovo kod nas.

 

ORIS: Budžet grada Hvara u 15. stoljeću je bio 1/12 venecijanske palače.

 

Fiolić: Ta mjerila se danas nisu izgubila, uvijek su ista.

 

ORIS: Kao studenti bili ste jako ponosni na tu činjenicu da ste se uspjeli izboriti da radite u tandemu; u to vrijeme su se svi projekti radili više-manje individualno. Vi ste morali nagovoriti profesora Šegvića da radite zajednički. Danas je kolektivni rad imperativ.

 

Fiolić: Arhitektonsko obrazovanje mora imati dozu ludizma, a što znači ludizam? To je ono što je imao pokojni profesor Šegvić. O arhitekturi se razgovaralo isključivo u kontekstu. Nadam se da nas tad inicirana znatiželja nikada neće napustiti.