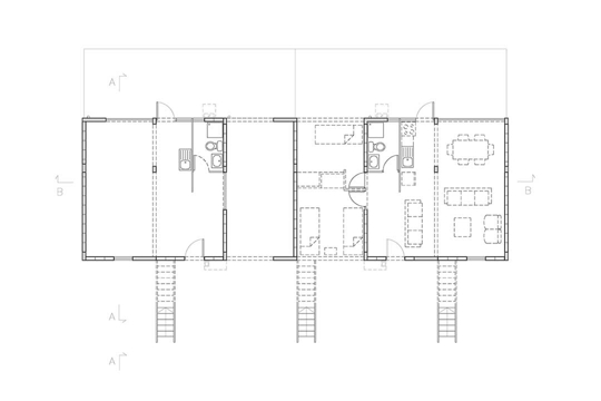
Stambeni kompleks s 93 obitelji; 5205 m2 (714 stanovnika na hektar); lokacija: Av. Prado; cijena: 31.000 UF (Unidad de Fomento) (330 UF pomoći po obitelji + 10 UF vlastite ušteđevine obitelji); stambena površina kuća: 70 m2 (početnih 36 m2 + proširenje 34 m2); površina stana: 72 m2 (početnih 25 m2 + 45 proširenje) [1 UF = 35 $].
Čileanska Vlada nas je zamolila da riješimo sljedeću jednadžbu: kako udomiti 100 obitelji iz Quintae Monroya na onoj istoj površini od 5000 m2 koju ilegalno zauzimaju već 30 godina, a koja se nalazi u samom središtu Iquique, grada u čileanskoj pustinji.
Projekt smo morali provesti unutar okvira postojeće politike stanogradnje oslanjajući se na 7500 $ poticaja kojim je valjalo platiti zemljište, infrastrukturu i samu zgradu. S obzirom na kretanje cijena u čileanskoj građevinskoj industriji, 7500 $ je dovoljno za samo 30 m2. prostora. Usprkos triput većoj cijeni građevinskog zemljišta od one koju si socijalna stanogradnja može priuštiti, cilj nam je bio smjestiti obitelji na istoj lokaciji, tj. ne preseljavati ih na periferiju grada.

Da smo krenuli od sljedeće pretpostavke: 1 kuća=1 obitelj=1 parcela, bili bismo u stanju na toj lokaciji smjestiti svega 30 obitelji. Problem sa samostalnim kućama je u nedovoljnoj iskorištenosti parcele potrebne za njihovu izgradnju. To je razlog zbog koga se kod socijalne stanogradnje traže što jeftinije parcele. Takva su građevinska zemljišta, naravno, daleko od potencijalnih radnih mjesta, obrazovnih institucija, javnog prijevoza i zdravstvenih ustanova koje su u gradu na dohvat ruke. Ovakva politika gradila je socijalne stanove u siromašnim predgrađima stvarajući žarišta ogorčenosti, socijalnih nemira i nejednakosti.
Nastojeći što bolje iskoristiti parcelu, odlučili smo se za kuće u nizu. Međutim, čak i kada je širina kuće, tj. sobe zauzela čitavu širinu parcele, bili smo u stanju smjestiti tek 66 obitelji. Problem je u tome što bi obitelj, u slučaju da želi dodati novu sobu, blokirala izvor svjetla i prozračivanje već izgrađenih prostorija. Osim toga, privatnost bi također bila narušena budući da bi kretanje kroz kuću podrazumijevalo prolaženje kroz ostale prostorije. Time bismo umjesto dobre iskorištenosti prostora dobili natrpanost i zbrku.
Naravno, mogli smo se odlučiti i za gradnju višestambenih zgrada, što bi pridonijelo iskorištenosti zemljišta, ali bi ujedno isključilo mogućnost širenja. Naime, željeli smo da svaka obitelj bude u stanju barem udvostručiti početni stambeni prostor.
KAKO SMO RIJEŠILI PROBLEME
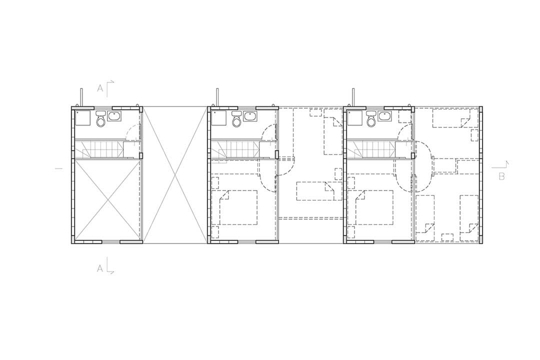
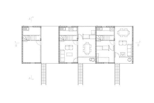
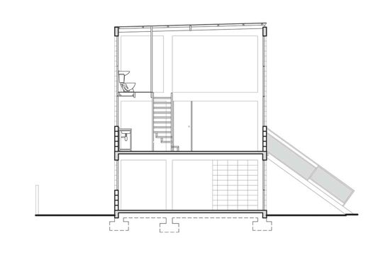
Naš je prvi zadatak bio pronaći nov način sagledavanja problema – umjesto da razmišljamo o najboljoj mogućoj kući za 7500 $ koju bismo izgradili 100 puta, odlučili smo razmišljati o najboljoj mogućoj zgradi koja bi stajala 750.000 $, a koja bi omogućila smještaj 100 obitelji te kasnija proširenja. Ustanovili smo, međutim, da takva zgrada, osim u prizemlju i najvišem katu, onemogućuje proširenja. Stoga smo odlučili napraviti zgradu koja ima samo prizemlje i gornji kat.
O ČEMU JE RIJEČ
Mi smatramo da bi socijalna stanogradnja trebala biti gledana kao ulaganje, a ne kao trošak. Stoga smo morali zajamčiti porast vrijednosti početnog državnog poticaja. Kad netko sam kupuje kuću, nada se da će joj vrijednost s vremenom narasti. Međutim, socijalna stanogradnja u apsolutno neprihvatljivoj mjeri više podsjeća na kupnju automobila, nego na kupnju kuće – njezina se vrijednost svakim danom smanjuje.
Izuzetno je važno da se takvo stajalište promijeni jer Čile u idućih 20 godina namjerava uložiti 10 milijarda dolara da bi riješio problem nedostatka stambenog prostora. Osim toga, poticaj za stanogradnju koji država daje najveća je pomoć namijenjena obiteljima do sada. Stoga bi, uspijemo li postići da se s vremenom vrijednost državnog ulaganja povećava, to moglo biti ključno za izlazak iz siromaštva.Mi iz Elementala smo identificirali niz uvjeta koje valja zadovoljiti prilikom projektiranja kako bi stambena jedinica s vremenom povećala svoju vrijednost – ali bez povećavanja aktualnog državnog poticaja.
Prvo, morali smo postići gustoću naseljenosti (ali bez prenaseljenosti) da bismo mogli platiti građevinsko zemljište koje je zbog svoje lokacije bilo vrlo skupo. Da bismo u tome uspjeli, morali smo se osloniti i na mogućnosti koje je nudio grad te tako učvrstiti obiteljske ekonomije – na koncu konca, atraktivna lokacija igra ključnu ulogu u vrijednosti nekretnine.
Drugo, pokazalo se da je osiguranje dostatnog fizičkog prostora za buduće ‘proširene obitelji’ ključni problem za ekonomski start siromašne obitelji. Između privatnog i javnog prostora uveli smo tzv kolektivni prostor koji okuplja oko 20 obitelji. Kolektivni prostor (zajedničko dobro s ograničenim pristupom) je prijelazna razina udruživanja koja omogućuje opstanak u nestalnim socijalnim uvjetima.
Treće, uzimajući u obzir činjenicu da će oko 50 % volumena svake stambene jedinice izgraditi sami stanari, gradnja je trebala biti dovoljno porozna da objektu dopusti širenje unutar postojeće strukture. Početna gradnja je stoga morala, da bi se izbjegli negativni učinci samogradnje na gradsko okruženje i olakšao proces širenja, pružiti podupirući (a ne ograničavajući) okvir.

I konačno, umjesto projektiranja malih kuća (u 30 m2 sve je malo) projektirali smo kuće za srednju klasu, od koje smo izgradili tek početni dio. To je tražilo promjenu standarda: kuhinje, kupaonice, stube, pregradni zidovi i svi komplicirani dijelovi kuće morali su biti projektirani za konačnu stambenu površinu od 72 m2.
Na kraju, valjalo je odgovoriti na sljedeće pitanje: ako je novac kojim raspolažemo dovoljan za gradnju samo polovice kuće, koju polovicu ćemo prvo izgraditi? Odlučili smo izgraditi dio koji obitelj nikada neće biti u stanju izgraditi sama, bez obzira na to koliko novca ili energije utrošila. Pomoću arhitektonskih alata nastojali smo riješiti nearhitektonska pitanja – pobijediti siromaštvo.